يقع هذا المنزل القنوي في دلفت عند زاوية بارزة على أحد المجاري المائية الشهيرة، ويوفر سبع غرف نوم موزعة على مساحة معيشة أنيقة تبلغ 237 م². يمنح موقع العقار إمكانية الوصول المباشر إلى وسط المدينة النابض بالحياة، بينما تحتفظ بنيته بالطابع التاريخي مع دمج إيقاع الحياة العصرية. جرى تجديد المنزل بعناية فائقة، حيث يتميز بمطبخ عصري ومرافق صحية فاخرة وألواح شمسية مثبتة على سطح تم ترميمه حديثًا—الأصل منه بُني في عام 1898 ويخضع الآن لصيانة رفيعة المستوى.
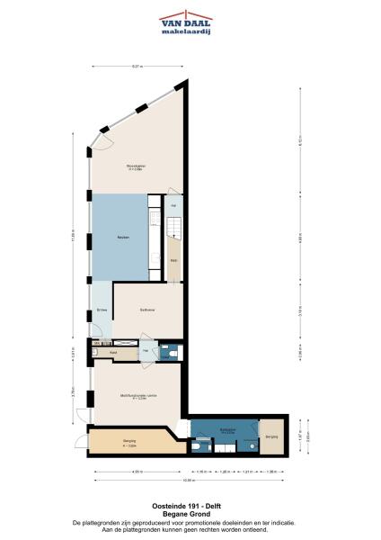
عند الدخول، تحدد الواجهات الزجاجية العالية وأسقف بارتفاع 3,55 متر المطبخ المعيشي الرئيسي. تبرز الزخارف الجصية والنوافذ المعشقة الأصلية الهوية المعمارية للمكان. يضم المطبخ أجهزة مدمجة فاخرة، ويحمل مساحة مخصصة لتناول الطعام والترفيه، وتحيط به منطقتان معيشيتان فسيحتان. يوجد استوديو متكامل مع مدخل خاص وحمام أرضيته مدفأة، يمكن تهيئته بسهولة كجناح للضيوف أو مساحة عمل. يشمل الطابق الأرضي مساحة تخزين واسعة ويوفر وصولاً مباشراً إلى شارع برويرهاوسترات.
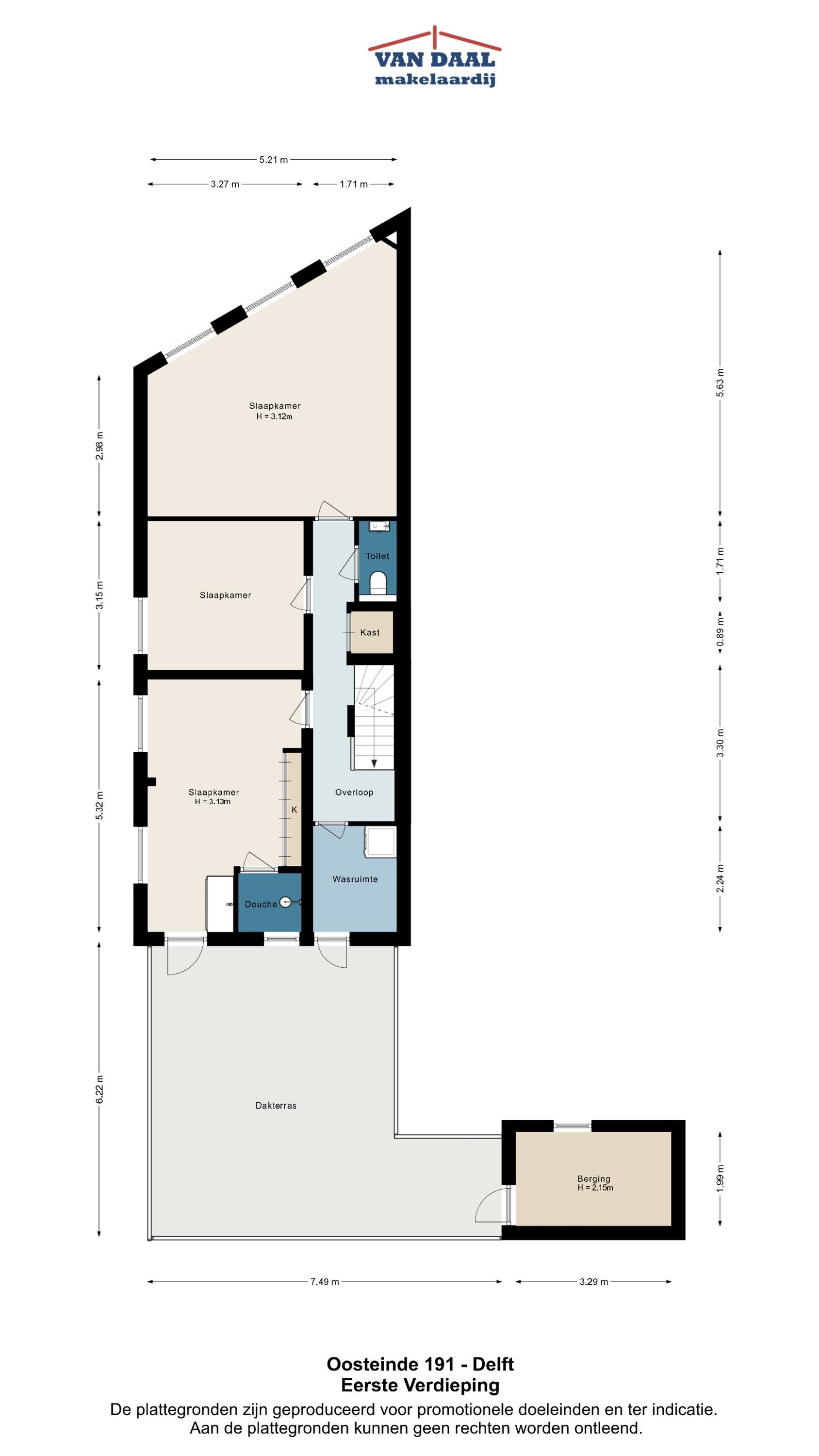
في الطابق الأول، تعكس ثلاث غرف نوم واسعة الطابع التاريخي، وتطل على القناة وتتميز بزجاج ملون. تؤدي غرفة الغسيل إلى حديقة سقفية خاصة، تمثل ملاذًا أخضر نادرًا للاستمتاع بأشعة الشمس والخصوصية. أما الطابق الثاني فيشمل ثلاث غرف نوم إضافية—إحداها ذات عوارض مكشوفة—وحجرة حمام فاخرة تحتوي على حوض للاستحمام ودش منفصل وتفاصيل بتصميم راقٍ.
على أرض حرة الملكية بمساحة 113 م²، وكهرباء مجددة، ونوافذ مزدوجة جزئياً، يقع العقار ضمن المنطقة التاريخية المحمية في دلفت. يقدم هذا المنزل القنوي الفاخر المعروض للبيع في دلفت أسلوب حياة عائلية راقية يلتقي فيها عبق المدينة العريق وحداثة السكن، على بُعد خطوات من المقاهي والمطاعم وساحة بيستينماركت التاريخية.
استكشف Delft مع Baerz، مستشارك الموثوق للعثور على العقارات الشخصية
يتطلب سوق دلفت الحصري خبرة وسرية. يتيح لك المستشارون ذوو الخبرة الوصول لعقارات غير متاحة علنًا ويقدمون مفاوضات استراتيجية وفهمًا عميقًا لطبيعة السوق المحلية. دعمهم لا غنى عنه لمن يبحث عن العقارات النادرة وصفقات سلسة.
تجنب المزالق الشائعة
غالبًا ما يهدر المشترون الدوليون وقتًا ثمينًا أثناء التنقل بين القوائم المكررة أو القديمة أو المضللة عبر الإنترنت، خاصةً أن ما يقرب من 30% من العقارات الفاخرة لا تظهر في السوق على الإطلاق.
يمثل وكلاء البائعين مصالح البائع وليس مصالحك، وحتى مجرد الاستفسار عن عقار قد يؤدي إلى تسجيلك كـ "عميل" لديهم دون موافقتك.
مع Baerz Property Finders & Advisors، يمكنك تجنب هذه المزالق تمامًا.
نحن نعمل حصريًا نيابة عنك، ونقدم لك تمثيلاً مستقلاً، وإرشادًا شفافًا، وإمكانية الوصول إلى كل عقار متاح، بما في ذلك الفرص الخاصة وغير المطروحة في السوق والتي لا يراها الآخرون أبدًا.
هل ترغب في معرفة كيفية الحصول على مستشار عقاري شخصي؟ اتصل بنا لتتعرف على كيفية تمثيل مصالحك وفتح السوق بالكامل أمامك.