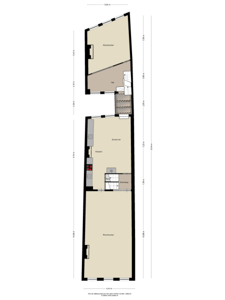
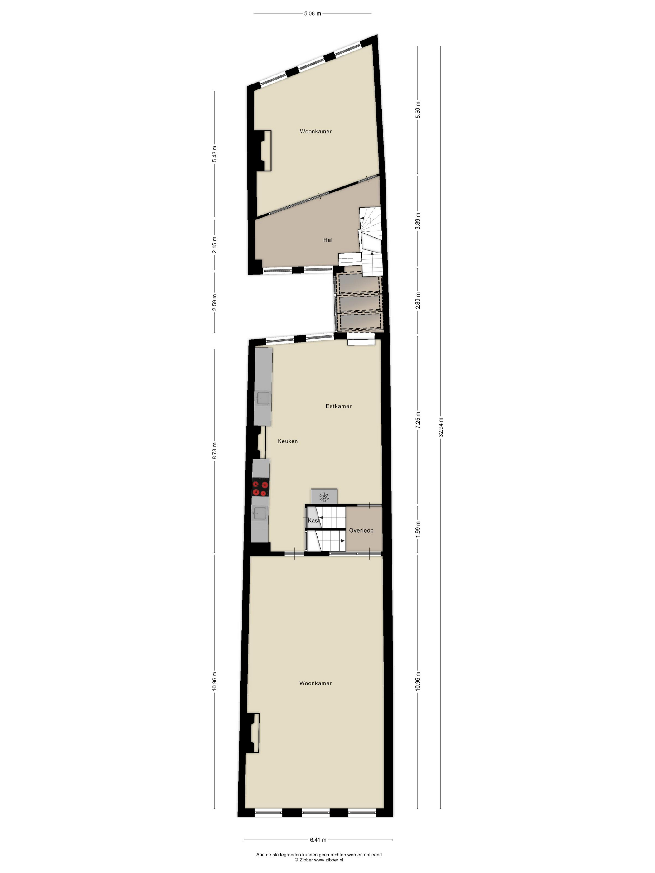
يعرض هذا المنزل التاريخي في لايدن تآلفاً نادراً بين عمارة القرن السابع عشر ووسائل الراحة المعاصرة، ويقع بمحاذاة مياه نهر الراين عند سفح تلة القلعة. خلف واجهته المتواضعة يكشف العقار عن مساحة معيشة تبلغ 437 م² موزعة بين المنزل الرئيسي الأصلي والمبنى الخلفي المستعاد بعناية. تتميز الغرف الفسيحة بارتفاعاتها الشاهقة، بعضها بسقف مرتفع لثمانية أمتار، بعوارض البلوط المكشوفة، ومدافئ الحجر الطبيعي، والزخارف الجصية الفاخرة المحفوظة من حقبة ازدهار المبنى.
تضم الطابق الأول غرفة معيشة بمساحة 70 م² بإطلالة على الراين وساحة البلدية (Stadhuisplein)، بالإضافة إلى مطبخ/غرفة طعام لافتة للنظر بمساحة 50 م²، مع مساحة عمل واسعة وطاولة تتسع لاثني عشر مقعداً، مما يوفر أبعاداً ملائمة للقاءات والراحة اليومية. وتقع غرف النوم في الطوابق العلوية، وتضم سبع غرف وثلاثة حمامات، تتميز جميعها بنوافذ كبيرة وخزائن مدمجة ومساحات لتخزين المفروشات، بما في ذلك جناح رئيسي مع حمام داخلي تحت أسقف درامية.
يرتبط المبنى الخلفي بسلاسة مع الحديقة التي تشكل بذاتها واحة داخل قلب لايدن المحمي من العصور الوسطى. صممت الحديقة للجمع بين الخصوصية والاجتماعية، وتضم غرفة حديقة في الطابق الأرضي مع مطبخ إضافي، وغرفة معيشة ثانية بارتفاع شاهق وإطلالات على القلعة، وبيت ضيافة مستقل. توفر العناصر التقنية مثل التهوية الميكانيكية، ومدخنة المدفأة، وعزل السقف، والتدفئة الأرضية الجزئية، والاتصال بالألياف البصرية، أقصى درجات الراحة العصرية، فيما يرسخ التسجيل كمعلم وطني وموقع محمي في النسيج التاريخي للمدينة شعوراً بالهيبة التاريخية.
خارج الباب، ينبض قلب لايدن بمقاهي التراس والأسواق والمتاحف على مسافة قريبة سيراً على الأقدام، في حين يسهل الوصول إلى المدارس والأندية الرياضية ومحطة لايدن المركزية بالدراجة. توفر تصاريح السكان مواقف للسيارات في وسط المدينة، مع وجود كراجات قريبة للضيوف. إنها فرصة نادرة لامتلاك عقار تم ترميمه بعناية، يجمع بين الأصالة، وسخاء المساحة، والوصول الفوري إلى حياة لايدن الثقافية النابضة.
استكشف Leiden مع Baerz، مستشارك الموثوق للعثور على العقارات الشخصية
تتطلب سوق لايدن فهماً معمقاً للتقاليد المحلية والأطر القانونية والفرص الحصرية. يوفر المستشارون المتميزون وصولاً لمحافظ استثنائية، ومهارة في التفاوض، ودعمًا شاملاً في هيكلة الصفقات. قدرتهم على توقع التغيرات وتحديد الفرص النادرة وحماية مصالح العملاء تضمن ميزة استراتيجية وراحة بال طوال العملية.
تجنب المزالق الشائعة
غالبًا ما يهدر المشترون الدوليون وقتًا ثمينًا أثناء التنقل بين القوائم المكررة أو القديمة أو المضللة عبر الإنترنت، خاصةً أن ما يقرب من 30% من العقارات الفاخرة لا تظهر في السوق على الإطلاق.
يمثل وكلاء البائعين مصالح البائع وليس مصالحك، وحتى مجرد الاستفسار عن عقار قد يؤدي إلى تسجيلك كـ "عميل" لديهم دون موافقتك.
مع Baerz Property Finders & Advisors، يمكنك تجنب هذه المزالق تمامًا.
نحن نعمل حصريًا نيابة عنك، ونقدم لك تمثيلاً مستقلاً، وإرشادًا شفافًا، وإمكانية الوصول إلى كل عقار متاح، بما في ذلك الفرص الخاصة وغير المطروحة في السوق والتي لا يراها الآخرون أبدًا.
هل ترغب في معرفة كيفية الحصول على مستشار عقاري شخصي؟ اتصل بنا لتتعرف على كيفية تمثيل مصالحك وفتح السوق بالكامل أمامك.