Ons kantoor is lid van Baerz & Co Luxury Homes; een internationaal platform dat exclusieve woningmakelaars met elkaar verbindt. Neem contact op met ons secretariaat voor meer informatie over het landelijke aanbod, waarvan u hieronder een selectie kunt bekijken.

METEREN
Blanckestyn 2 0 ong - 4194 CA
هولندا

Arjan Veelers profile image
Arjan Veelers
Directeur
€1,690,000 k.k.
منطقة المعيشة
350m2
حجم الأرض
890m2
غرف النوم
6

الوصف

فيلا جيلدرمالسن الفاخرة في مترن هي دراسة في الأناقة المتزنة والحياة المستدامة العصرية، تقع على الحافة الجنوبية لمدينة جيلدرمالسن ضمن الملاذ الأخضر لمجمع دي بلانتاج. تقدم هذه الفيلا الجديدة مساحة معيشة تبلغ 350 م² على قطعة أرض واسعة بمساحة 890 م²، وتتميز بهندسة معمارية مدروسة، وعزل ممتاز، واتصال هادئ مع المشهد الطبيعي لمنطقة بيتويه.

منذ اللحظة الأولى للدخول، يسيطر الضوء الطبيعي النقي والانسيابية المكانية على الأجواء. غرفة المعيشة متصلة بسلاسة بالتراس المغطى المواجه للجنوب، ما يمنح إيقاعاً مثالياً لتجمعات الأصدقاء لحظات التأمل العميق. المطبخ المعاصر، المجهز بجزيرة وأجهزة فاخرة، يشكل قلب المنزل الاجتماعي، بينما تدعم غرفة الخدمات ومكتب العمل المخصص أنماط الحياة اليومية بكفاءة رصينة. الأرضيات بأكملها من PVC المتين بلون دافئ منزلي، ومزودة بعناية بتجهيزات عالية الجودة من علامات مميزة.

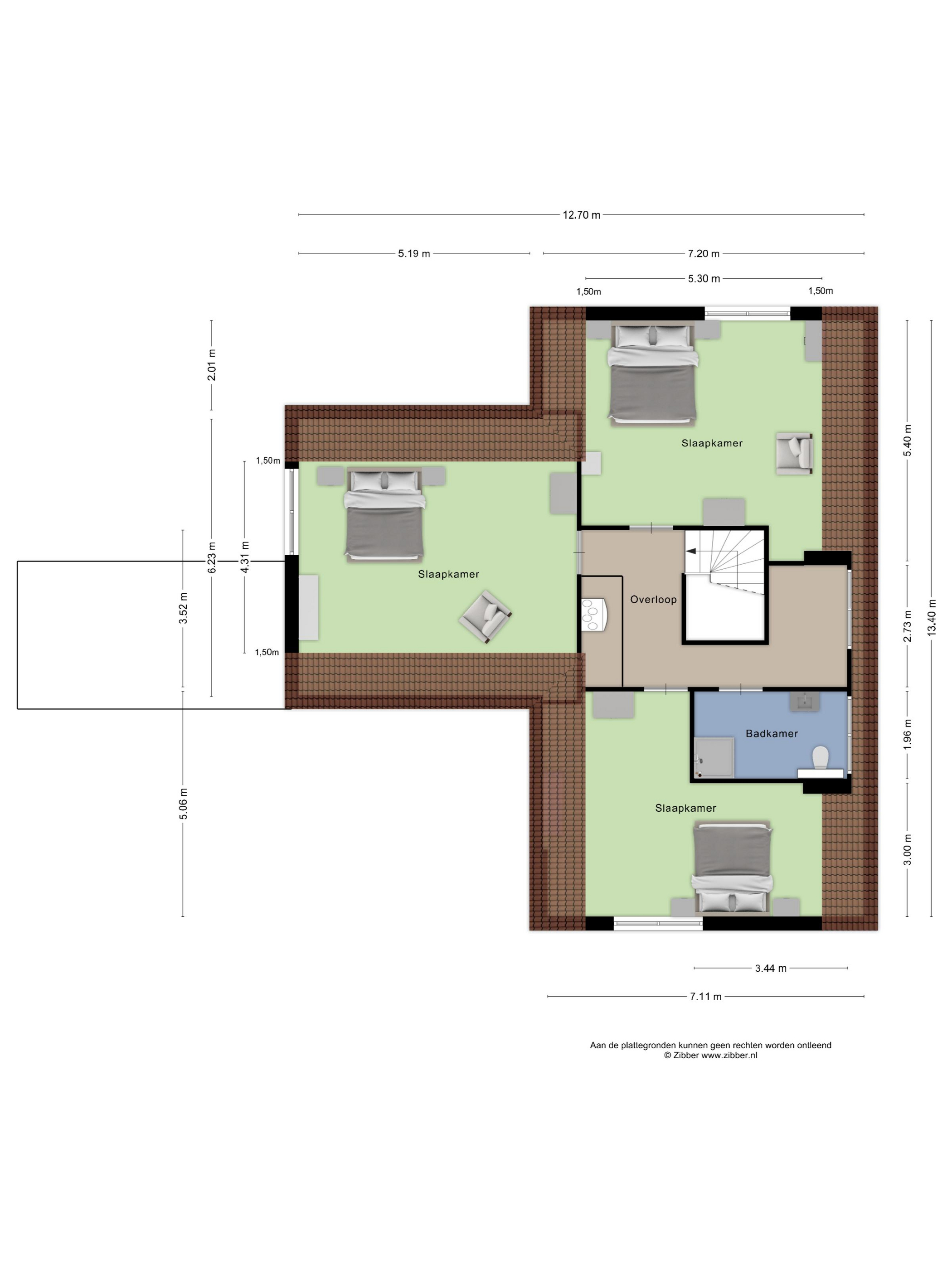
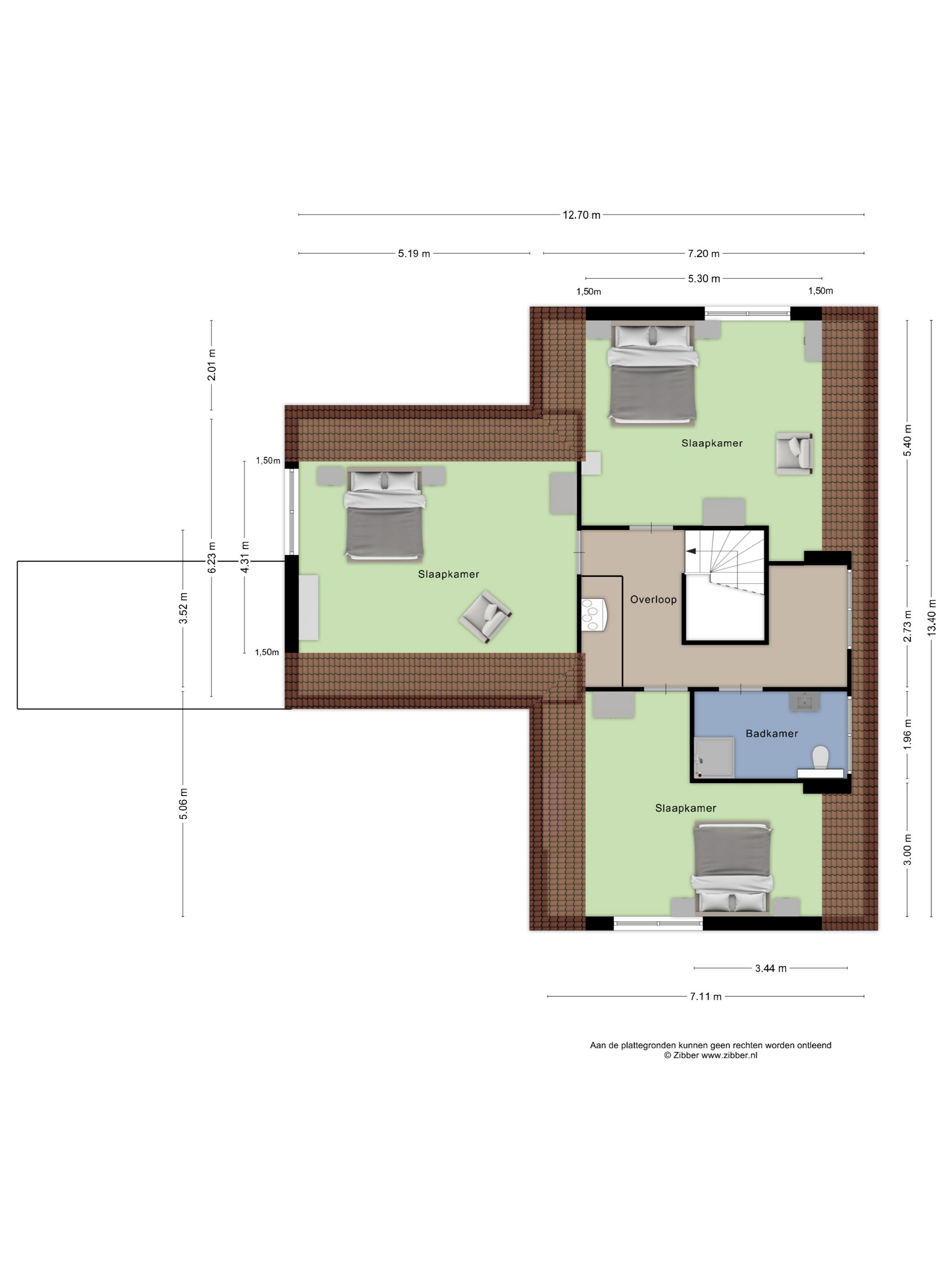
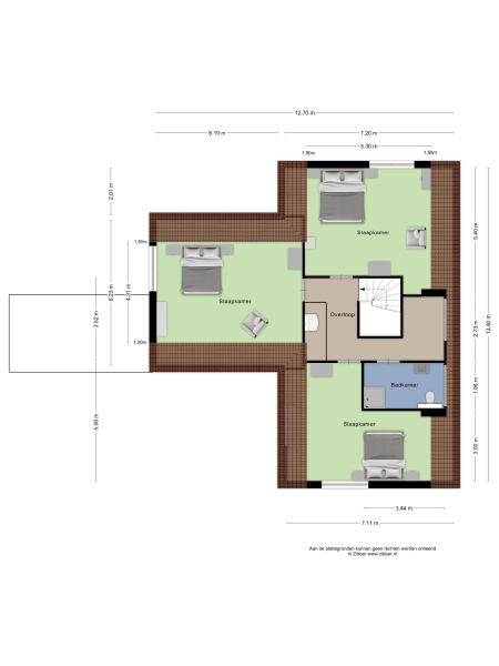
توجد ست غرف نوم وثلاثة حمامات، بما في ذلك جناح رئيسي مع غرفة ملابس وحمام خاص، ما يوفر راحة على عدة مستويات. الطوابق العليا تضم غرف نوم فسيحة، ومساحات مرنة للضيوف أو الإبداع، وحلول تخزين مدروسة بما في ذلك ملحق خارجي بمساحة 16 م² مع علّية. هناك مكانان مخصصان لوقوف السيارات وتجهيزات لمحطة شحن كهربائية لضمان عملية عملية دون تنازل عن الجودة.

تُعرض هذه الفيلا الفاخرة للبيع في مترن دون استخدام الغاز ومع تجهيزها بألواح شمسية، ومضخة حرارية جوفية، وتصنيف طاقة A+++. تدفئة وتبريد أرضي بالإضافة إلى عزل عالي المواصفات تضمن بيئة سكنية هادئة وفعّالة. حديقة العقار، المصممة للخصوصية والاسترخاء، تحيط بالمنزل من جميع الجهات وتدعو لتنسيق حدائق حسب الرغبة.

ضمن دي بلانتاج، يتمتع الساكنون بالقرب من مركز دي بلوك متعدد الوظائف والمدارس والمحلات والسوق المحلي وروابط مواصلات سريعة إلى أوتريخت ودين بوش. الحي ينبض بالمساحات الخضراء، وقريباً سيُنشأ منتزه أثري يعكس التاريخ المتعدد الطبقات للمنطقة. لمن يبحث عن ملاذ حديث بجودة دائمة في هولندا، تجمع فيلا جيلدرمالسن بين الخصوصية والرحابة والإحساس الحقيقي بالمكان.

استكشف Meteren مع Baerz، مستشارك الموثوق للعثور على العقارات الشخصية

يتطلب التعامل مع سوق ميترين الانتقائي وجود مستشارين يدركون خصائص العقار واحتياجات العملاء المميزين. يوفرون الوصول إلى عقارات حصرية وغير مدرجة علنًا، ويضمنون السرية في المفاوضات، ويوفرون رؤى حاسمة حول التقييم والاعتبارات التاريخية وأولويات الاستثمار طويل الأمد.

تجنب المزالق الشائعة

غالبًا ما يهدر المشترون الدوليون وقتًا ثمينًا أثناء التنقل بين القوائم المكررة أو القديمة أو المضللة عبر الإنترنت، خاصةً أن ما يقرب من 30% من العقارات الفاخرة لا تظهر في السوق على الإطلاق.
يمثل وكلاء البائعين مصالح البائع وليس مصالحك، وحتى مجرد الاستفسار عن عقار قد يؤدي إلى تسجيلك كـ "عميل" لديهم دون موافقتك.
مع Baerz Property Finders & Advisors، يمكنك تجنب هذه المزالق تمامًا.
نحن نعمل حصريًا نيابة عنك، ونقدم لك تمثيلاً مستقلاً، وإرشادًا شفافًا، وإمكانية الوصول إلى كل عقار متاح، بما في ذلك الفرص الخاصة وغير المطروحة في السوق والتي لا يراها الآخرون أبدًا.

هل ترغب في معرفة كيفية الحصول على مستشار عقاري شخصي؟ اتصل بنا لتتعرف على كيفية تمثيل مصالحك وفتح السوق بالكامل أمامك.

الميزات

الألواح الشمسية
نقل الملكية
السعر المطلوب
€ 1.690.000 k.k.
الحالة
beschikbaar
القبول
in overleg
البناء
نوع المنزل
Villa
نوع المبنى
vrijstaande woning
فترة البناء
2024
تقييم الطاقة
A+++
نوع السقف
zadeldak
غرف النوم
6
الحمامات
3
المساحات السطحية والحجم
منطقة المعيشة
350 m2
مساحة داخلية أخرى
16 m2
المساحة الخارجية الملحقة بالمبنى
32 m2
الحجم بالأمتار المكعبة
1310 m3
حجم الأرض
890 m2
المرافق
Zonnepanelen
Balansventilatie
In woonwijk
Vrij uitzicht
Landelijk gelegen
Baerz & Co Property Brochure

كتيب

فيديوهات

مخططات الطوابق

DWE Nieuwbouw Makelaars

Vanadiumweg 11
3812 PX Amersfoort

a.veelers@dwe-nieuwbouw.nl
+31 888089000

www.dwe-luxuryhomes.com

طلب معلومات / مشاهدة

Arjan Veelers profile image
Arjan Veelers
Directeur