Ons kantoor is lid van Baerz & Co Luxury Homes; een internationaal platform dat exclusieve woningmakelaars met elkaar verbindt. Neem contact op met ons secretariaat voor meer informatie over het landelijke aanbod, waarvan u hieronder een selectie kunt bekijken.

VEENENDAAL
Zandstraat 35 - 3901 CJ
هولندا

Wistik Zonnenberg profile image
Wistik Zonnenberg
Register Makelaar Taxateur/ Eigenaar
€894,500 k.k.
منطقة المعيشة
180m2
حجم الأرض
340m2
غرف النوم
4

الوصف

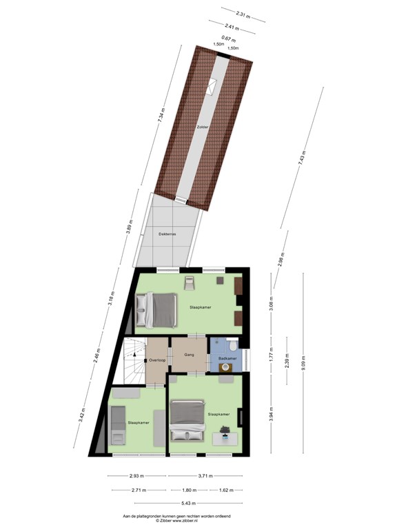
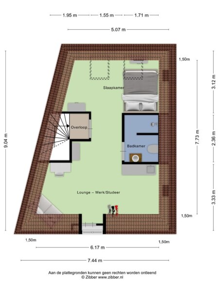
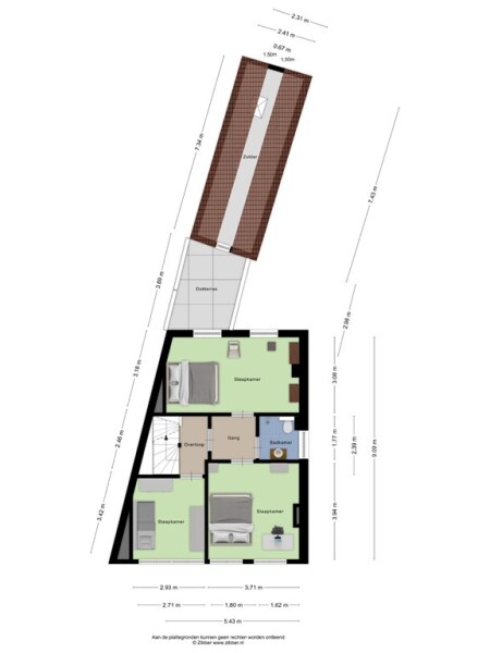
يدعوكم هذا المنزل المنفصل في فايننداال إلى عنوان يجمع بين التاريخ والراحة، ويقع بهدوء في شارع زاندسترات على أطراف مركز المدينة. هذه الفيلا التاريخية، التي بُنيت عام 1908 بمساحة 180 متر مربع، تفيض بهيبة ودفء فوريين. كل غرفة تنبض بتفاصيل أصلية مثل الكرانيش المزخرفة، والدواليب المصممة خصيصًا، وأرضيات الباركيه المصنوعة من خشب البلوط بتصميم متعرج، والأسقف العالية الجذابة، جميعها متوازنة مع لمسات عصرية واضحة. تتدفق المساحات بين ست غرف تضم أربع غرف نوم وحمامين أنيقين، جميعها مصممة بعناية لاحتضان الخصوصية وجمال العيش المشترك.

يستقبلك الطابق الأرضي عبر ردهة فسيحة تقودك إلى جناح معيشة وطعام يبرز بمدافئ من الحقبة الأصلية، وضوء شمس ينفذ عبر نوافذ عالية بأطر منزلقة ومصاريع أصلية، إلى جانب أحدث سبل الراحة مثل الأجهزة المدمجة والتوسعة المتكاملة. المطبخ المطل على الحديقة يجمع بين الأصالة والعملية، ويفتح على حديقة خلفية مشمسة واسعة تواجه الجنوب، توفر عزلة هادئة بين أشجار التلياء والسرو والجوز. وتدعو مناطق الجلوس المتعددة إلى جلسات ممتدة أو لحظات هادئة؛ كما توفر البوابة الخلفية المزدوجة وموقف السيارات داخل الأرض ميزة نادرة في قلب المدينة.

في الطوابق العليا، تتمتع غرف النوم بالضوء الطبيعي وتنظيم مدروس، وتترافق مع شرفة على السطح وطابق علوي واسع أشبه بدور علوي بملحق مطبخ وحمام خاص. يكمل خشب البلوط المتين والبلاط الطبيعي والعوارض المكشوفة مع التقنيات الحديثة مثل نظام التدفئة العالي الكفاءة وخدمة الإنترنت بالألياف البصرية لتمزج بحرفية بين الحداثة والطابع الكلاسيكي. يتوفر موقف لسيارتين على الأقل ضمن قطعة الأرض البالغة مساحتها 340 متر مربع، مع سهولة الوصول إلى مرافق المدينة والمقاهي والمدارس ومساحات الطبيعة الخضراء في أوتريختسه هوفيلروخ على بُعد دقائق فقط.

للباحثين عن فيلا فاخرة للبيع في فايننداال، يُعد هذا العنوان مزيجًا فريدًا بين الطابع المعماري الخالد ووسائل الراحة الحديثة في قلب هولندا.

استكشف Veenendaal مع Baerz، مستشارك الموثوق للعثور على العقارات الشخصية

يستفيد المشترون المميزون من الخبرة المحلية والتوجيه المناسب في سوق فينيندال الدقيق، حيث يمنحهم الخبراء المحليون وصولاً حصرياً للعروض الخاصة والدخول إلى شبكة الثقة، مع إدارة جميع التفاصيل التنظيمية والكشف عن عقارات نادرة الوصول إلى السوق العام. يعزز التفاوض المتقدم والرؤية العميقة لكل معاملة العقارية الموازاة بين الأهداف الشخصية والاستثمارية ويقلل المفاجآت.

تجنب المزالق الشائعة

غالبًا ما يهدر المشترون الدوليون وقتًا ثمينًا أثناء التنقل بين القوائم المكررة أو القديمة أو المضللة عبر الإنترنت، خاصةً أن ما يقرب من 30% من العقارات الفاخرة لا تظهر في السوق على الإطلاق.
يمثل وكلاء البائعين مصالح البائع وليس مصالحك، وحتى مجرد الاستفسار عن عقار قد يؤدي إلى تسجيلك كـ "عميل" لديهم دون موافقتك.
مع Baerz Property Finders & Advisors، يمكنك تجنب هذه المزالق تمامًا.
نحن نعمل حصريًا نيابة عنك، ونقدم لك تمثيلاً مستقلاً، وإرشادًا شفافًا، وإمكانية الوصول إلى كل عقار متاح، بما في ذلك الفرص الخاصة وغير المطروحة في السوق والتي لا يراها الآخرون أبدًا.

هل ترغب في معرفة كيفية الحصول على مستشار عقاري شخصي؟ اتصل بنا لتتعرف على كيفية تمثيل مصالحك وفتح السوق بالكامل أمامك.

الميزات

نقل الملكية
السعر المطلوب
€ 894.500 k.k.
الحالة
Available
القبول
In Concert
المرجع
08144
البناء
نوع المنزل
Mansion
نوع المبنى
Detached House
فترة البناء
1908
نوع السقف
composite
غرف النوم
4
الحمامات
2
المساحات السطحية والحجم
منطقة المعيشة
180 m2
مساحة داخلية أخرى
5 m2
المساحة الخارجية الملحقة بالمبنى
10 m2
مساحة التخزين الخارجية
5 m2
الحجم بالأمتار المكعبة
654 m3
حجم الأرض
340 m2
المرافق
Cable Tv
Fluetube
Fibreopticcable
Not Furnished
Garden
Internetconnection
Phoneline
Skylight
Storageroom
Not Upholstered
Ventilation
Baerz & Co Property Brochure

كتيب

فيديوهات

مخططات الطوابق

Zonnenberg Makelaardij

Kerkewijk 108
3904 JG Veenendaal

info@zonnenbergmakelaardij.nl
+31 318 559600

www.zonnenbergmakelaardij.nl

طلب معلومات / مشاهدة

Wistik Zonnenberg profile image
Wistik Zonnenberg
Register Makelaar Taxateur/ Eigenaar