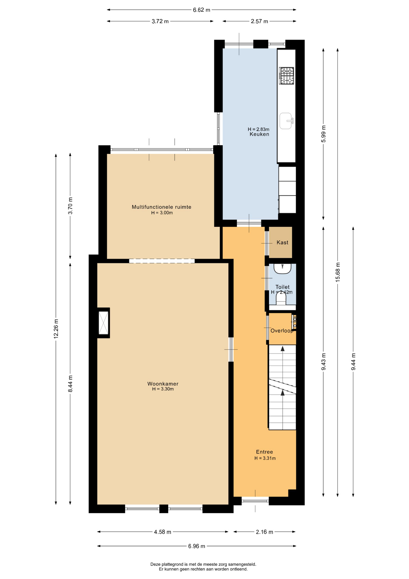
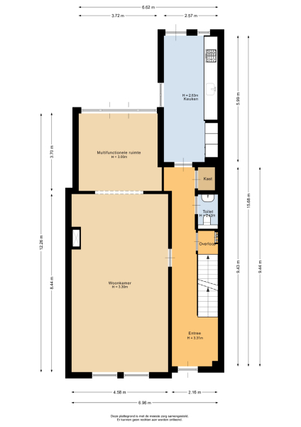
تاون هاوس فينلو هو مثال بارز على عمارة العشرينيات ويقع في قلب المدينة؛ يجمع بين الطابع التاريخي وراحة المعيشة العصرية، ويطل بإطلالة مميزة على حديقة الروزاريوم. تمتد هذه الإقامة على مساحة 225 م² موزعة على ثلاثة طوابق، وتضم خمس غرف نوم وحمامين وتستفيد من ضوء طبيعي وافر في جميع أنحاء المكان. من المدخل الواسع الذي يتميز بأرضية مكسوة ببلاط بيانو كارارا الرخامي حتى غرفة المعيشة الرحبة المكسوة بباركيه فرنسي من خشب البلوط بتنفيذ متقن، ينبعث من كل مساحة لمسة رقي وصدق تاريخي.
تتميز الطبقة الرئيسية بإطلالات مفتوحة على الروزاريوم، مع سقوف عالية مزينة بزخارف أصلية ومدفأة تعمل بالغاز وتقنيات متطورة مدمجة بسلاسة مثل التكييف وإنارة قابلة للتعتيم. أما الأبواب الفرنسية الخلفية فتنفتح على حديقة مصممة من قبل مهندس معماري، لتوفر ملاذًا خاصًا يضم أكثر من تراس، وأسطح من خشب بادوك، وساحة مرصوفة، ومسبح مدفأ، تحيط بها الجدران لضمان الخصوصية التامة على بُعد دقائق فقط من مركز فينلو.
في الأعلى، يفتح جناح رئيسي واسع على شرفة تطل على حدائق المدينة، بينما توفر الفراغات المرنة خيارات لمساحات إضافية للنوم أو للعمل والدراسة. تم تجديد الحمامات باستخدام أرضيات مدفأة وتجهيزات فاخرة ليتجلى فيها أجواء الفخامة الهادئة. كما توفر الكفاءة الطاقية الفائقة، بفضل علامة A++، وخمسة عشر لوح طاقة شمسية تولد 6,000 كيلوواط/ساعة، ومضخة حرارية وزجاج ثلاثي الطبقات—وهي مميزات نادرة في عقار بهذا العراقة.
وبين العملية والأجواء الراقية—قبو مخصص للتخزين، تدفئة تحت الأرض للحمامات، تكييف هواء، وخيار استئجار مرآب—يوفر هذا المنزل الرفيع في فينلو حياة هادئة تمنح التصميم والخصوصية والراحة الحضرية التامة.
استكشف Venlo مع Baerz، مستشارك الموثوق للعثور على العقارات الشخصية
تتطلب صفقات العقارات الفاخرة فهمًا دقيقًا للمخزون المحلي وأنظمة البناء والمشاريع المستقبلية. يمنحك المستشارون الخبراء وصولاً حصريًا إلى عروض خارج السوق ويفضلون التفاوض بسرية لمواكبة التطورات. التوجيه ضروري للحصول على أفضل العقارات أو شروط استثمار مميزة.
تجنب المزالق الشائعة
غالبًا ما يهدر المشترون الدوليون وقتًا ثمينًا أثناء التنقل بين القوائم المكررة أو القديمة أو المضللة عبر الإنترنت، خاصةً أن ما يقرب من 30% من العقارات الفاخرة لا تظهر في السوق على الإطلاق.
يمثل وكلاء البائعين مصالح البائع وليس مصالحك، وحتى مجرد الاستفسار عن عقار قد يؤدي إلى تسجيلك كـ "عميل" لديهم دون موافقتك.
مع Baerz Property Finders & Advisors، يمكنك تجنب هذه المزالق تمامًا.
نحن نعمل حصريًا نيابة عنك، ونقدم لك تمثيلاً مستقلاً، وإرشادًا شفافًا، وإمكانية الوصول إلى كل عقار متاح، بما في ذلك الفرص الخاصة وغير المطروحة في السوق والتي لا يراها الآخرون أبدًا.
هل ترغب في معرفة كيفية الحصول على مستشار عقاري شخصي؟ اتصل بنا لتتعرف على كيفية تمثيل مصالحك وفتح السوق بالكامل أمامك.