Ons kantoor is lid van Baerz & Co Luxury Homes; een internationaal platform dat exclusieve woningmakelaars met elkaar verbindt. Neem contact op met ons secretariaat voor meer informatie over het landelijke aanbod, waarvan u hieronder een selectie kunt bekijken.

AMSTERDAM
Bundlaan 256 - 1031 KA
Die Niederlande

Floor Neomagus profile image
Floor Neomagus
Real Estate Agent
€1,000,000 k.k.
Wohnbereich
137m2
Grundstücksgröße
N/A
Schlafzimmer
3

Beschreibung

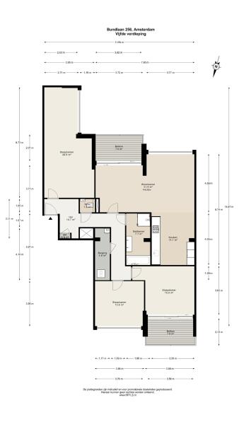
Das Apartment Amsterdam steht für zeitgemäßes Wohnen im neu entwickelten Amsterdam-Noord, mit diskretem Luxus am Ufer des IJ. Diese 137 m² große bezugsfertige Residenz, 2021 im renommierten Komplex 'The Grid' fertiggestellt, bietet drei großzügig geschnittene Schlafzimmer, einen lichtdurchfluteten Wohnbereich und eine herausragende Energieklasse A+++. Große Fenster durchfluten jeden Raum mit Tageslicht, während Fußbodenheizung und eine moderne Wärmepumpe ganzjährig für Komfort sorgen.

Die offene Küche verbindet sich harmonisch mit dem nach Süden ausgerichteten Wohnbereich und führt zu einer Terrasse, die den Außenbereich hereinholt. Ein zweiter Balkon auf der Rückseite erweitert das Wohnerlebnis und fängt die ruhige Atmosphäre der Nachbarschaft ein. Das geräumige Bad bietet eine Badewanne, eine begehbare Dusche und ein Doppelwaschbecken. Hochwertige Bodenbeläge und durchdämmte Isolierung unterstreichen den Fokus auf nachhaltige Details.

Bewohner profitieren von einem privaten Parkplatz, einem über 7 m² großen Abstellraum sowie einem einladenden Foyer, gesichertem Fahrradabstellraum und Paketlieferraum. 'The Grid' ist strategisch optimal angebunden: schnelle Fährverbindung zum Hauptbahnhof Amsterdam, Nähe zur Nord/Süd-Metro und zur A10. In der Umgebung befinden sich Supermärkte, Schulen, renommierte Cafés und Kulturorte wie das EYE Filmmuseum. Diese Wohnung zum Verkauf in Amsterdam ist Rückzugsort und Bühne urbanen Lebens zugleich und bietet gehobenes Wohnen in einem der dynamischsten Viertel der Stadt.

Entdecken Sie Amsterdam mit Baerz, Ihrem vertrauenswürdigen persönlichen Immobilienfinder und Berater

Der Zugang zum Luxusimmobilienmarkt von Amsterdam erfordert tiefgreifendes lokales Know-how, Diskretion und Verhandlungsgeschick. Erstklassige Berater verschaffen Zugang zu privaten Angeboten, erklären komplexe Besitzrechte und erkennen Werte in einem Markt, in dem Opportunitäten selten sichtbar werden. Beratungsteams prüfen jedes Objekt sorgfältig und vertreten Ihre Interessen souverän – sie stärken Ihre Verhandlungsposition, begleiten Transaktionen nahtlos und wahren Ihre Privatsphäre.

Häufige Fallstricke vermeiden

Internationale Käufer verlieren oft wertvolle Zeit, weil sie sich durch doppelte, veraltete oder irreführende Online-Angebote kämpfen müssen – besonders da fast 30% aller Luxusimmobilien überhaupt nicht auf dem Markt erscheinen.
Makler des Verkäufers vertreten die Interessen des Verkäufers, nicht Ihre, und schon eine einfache Anfrage kann dazu führen, dass eine Agentur Sie ohne Ihre Zustimmung als deren „Kunden“ registriert.
Mit Baerz Property Finders & Advisors umgehen Sie all diese Fallstricke vollständig.
Wir handeln ausschließlich in Ihrem Interesse, bieten unabhängige Vertretung, transparente Beratung und Zugang zu jedem verfügbaren Objekt – einschließlich privater und off-market Angebote, die andere nie zu sehen bekommen.

Neugierig, wie Sie Ihren eigenen Personal Property Advisor sichern können? Kontaktieren Sie uns, um zu erfahren, wie wir Ihre Interessen vertreten und Ihnen den gesamten Markt öffnen können.

Merkmale

Eigentumsübertragung
Verkaufspreis
€ 1.000.000 k.k.
Status
beschikbaar
Annahme
direct
Bau
Art des Hauses
Tussenverdieping
Gebäudetyp
appartement
Bauzeitraum
2021
Energieausweis
A+++
Dachtyp
plat dak
Schlafzimmer
3
Badezimmer
1
Flächen und Volumen
Wohnbereich
137 m2
Andere Innenräume
0 m2
Außenbereich am Gebäude
16 m2
Externer Lagerraum
7 m2
Volumen in Kubikmetern
443 m3
Einrichtungen
Lift
Schuifpui
Balansventilatie
In woonwijk
Baerz & Co Property Brochure

Broschüre

Videos

Grundrisse

Heeren Makelaars

Stadionweg 75
1077 SE Amsterdam

info@heerenmakelaars.nl
+31 204702255

www.heerenmakelaars.nl

Information / Besichtigungsanfrage

Floor Neomagus profile image
Floor Neomagus
Real Estate Agent