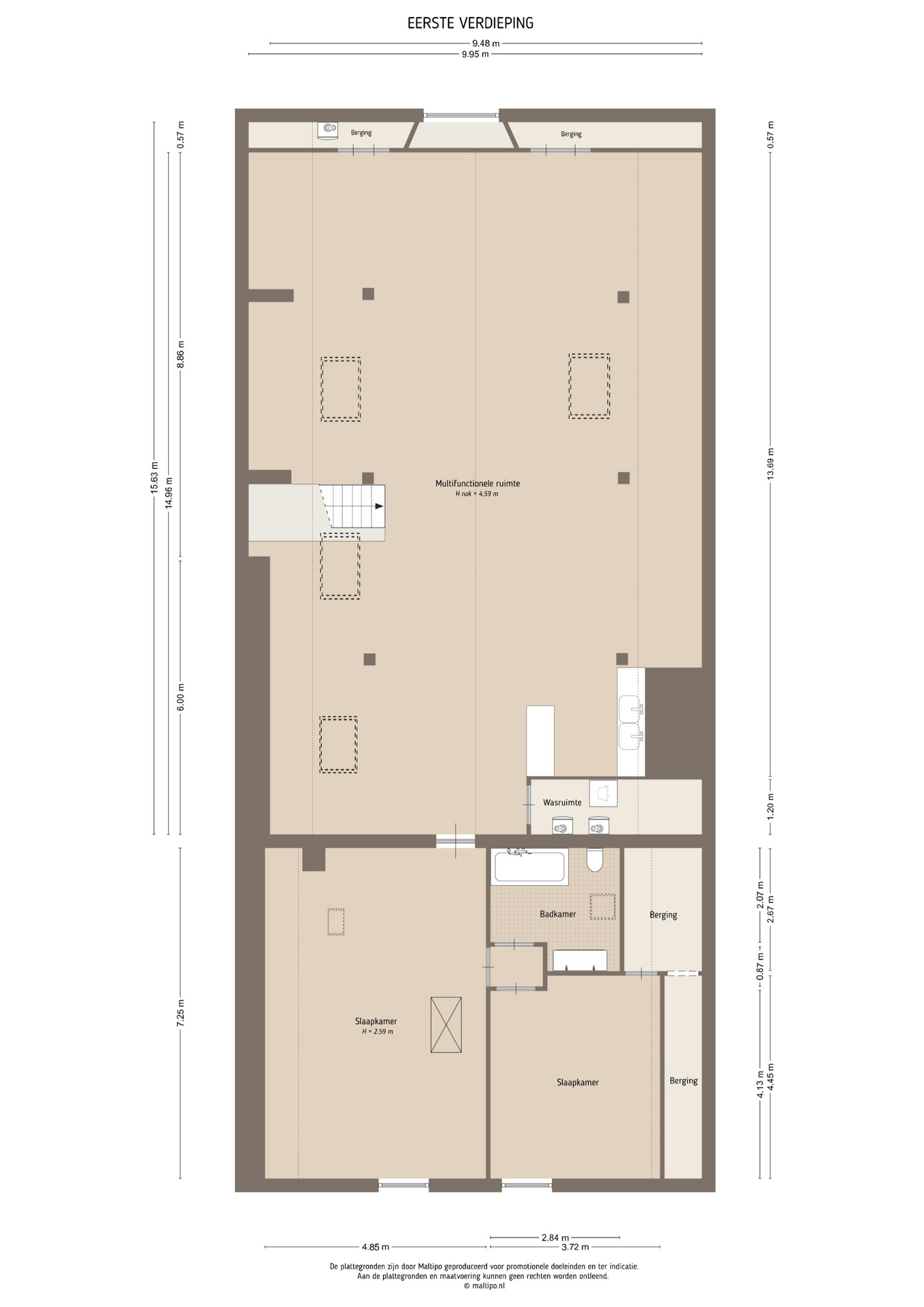
Das Bauernhaus Hellouw präsentiert sich als dezente, doch beeindruckende Erscheinung am Rande des Betuwe-Dorfes; sein Baujahr 1917 prägt jedes durchdachte Detail. Das Anwesen auf einem 4.910 m² großen Grundstück bietet 403 m² Wohnfläche, fünf Schlafzimmer und zwei Bäder. Großzügige Proportionen und originale Stilelemente bestimmen das Interieur, wo Sandsteinkamine und Fachwerkbalken den Räumen eine angenehme Schwere verleihen. Im Erdgeschoss befindet sich ein geräumiges, gartenseitiges Wohnzimmer in der ehemaligen Scheune, eine Landhausküche mit antiken Fliesen, ein Weinkeller sowie ein Ensemble ebenerdiger Räume: ein Schlafzimmer mit Kamin, Ankleide und Büro – alle mit Blick ins private Grün.
Über dem hinteren Flügel offenbart das Obergeschoss ein offenes Loft mit 4,5 Meter hohem First und Abstellraum, während der vordere Flügel zwei weitere Schlafzimmer und ein Badezimmer beherbergt. Jeder Aspekt ist auf Komfort ausgerichtet: Fußbodenheizung, Klimaanlage, mechanische Belüftung und Isolierverglasung.
Auch das Grundstück selbst ist auf Diskretion und Ökologie ausgelegt: Blumenbeete, alte Weiden, ein Obstgarten mit Äpfeln, Birnen, Pflaumen und Quitten sowie ein Teich im Gehölz schaffen ein parkähnliches Rückzugsgebiet, das von heimischer Tierwelt besucht wird. Das isolierte Nebengebäude mit Holzofen und französischen Türen erweitert den Nutzungsspielraum – als Atelier, Gästehaus oder ruhiges Büro.
Die Lage Hellouws in der Betuwe ermöglicht ein ruhiges Leben auf dem Land, umgeben von Naturschutzgebieten und Flusswanderwegen; städtische Angebote und tägliche Annehmlichkeiten von Gorinchem bis Utrecht sind dennoch mühelos erreichbar. Dieses Bauernhaus verbindet Geschichte, Landschaft und Privatsphäre mit zurückhaltender Leichtigkeit und ist eine Antwort auf das Bedürfnis nach Authentizität und Raum im Herzen der Niederlande.
Entdecken Sie Hellouw mit Baerz, Ihrem vertrauenswürdigen persönlichen Immobilienfinder und Berater
Der umkämpfte Markt setzt auf Insiderwissen und vorausschauende Verhandlungen. Lokale Berater verschaffen Zugang zu exklusiven Off-Market-Angeboten, kennen komplexe Restaurierungsauflagen und ermöglichen grenzübergreifende Abschlüsse. Expertenvertretung ist essenziell, um Deals gemäß lokalen und internationalen Standards sicher zu verhandeln.
Häufige Fallstricke vermeiden
Internationale Käufer verlieren oft wertvolle Zeit, weil sie sich durch doppelte, veraltete oder irreführende Online-Angebote kämpfen müssen – besonders da fast 30% aller Luxusimmobilien überhaupt nicht auf dem Markt erscheinen.
Makler des Verkäufers vertreten die Interessen des Verkäufers, nicht Ihre, und schon eine einfache Anfrage kann dazu führen, dass eine Agentur Sie ohne Ihre Zustimmung als deren „Kunden“ registriert.
Mit Baerz Property Finders & Advisors umgehen Sie all diese Fallstricke vollständig.
Wir handeln ausschließlich in Ihrem Interesse, bieten unabhängige Vertretung, transparente Beratung und Zugang zu jedem verfügbaren Objekt – einschließlich privater und off-market Angebote, die andere nie zu sehen bekommen.
Neugierig, wie Sie Ihren eigenen Personal Property Advisor sichern können? Kontaktieren Sie uns, um zu erfahren, wie wir Ihre Interessen vertreten und Ihnen den gesamten Markt öffnen können.