Die Villa Uithoorn bietet eine außergewöhnliche Balance aus großzügigem Raum und stilvollem Wohnen im begehrten Wohnviertel Legmeer-West. Schon beim Eintreffen begrüßt Sie das 290 m² große Raumkonzept mit Helligkeit, Privatsphäre und Vielseitigkeit. Die Zufahrt setzt den ruhigen Ton des Anwesens und bietet Platz für mehrere Fahrzeuge sowie eine ruhige Straße, die das Haus in eine entspannende Atmosphäre einbettet.
Im Entrée wird durchdachte Raumaufteilung und unauffällige Staufläche sichtbar. Das Hauptwohnzimmer ist geprägt von natürlichem Licht und einem nahtlosen Übergang zur großzügigen, sonnigen Gartenfläche von 445 m² dank französischer Türen. Mehrere Terrassen, ein Teich und ruhige Ecken laden sowohl zur Entspannung als auch zum geselligen Beisammensein ein. Die offene Küche ist hochwertig ausgestattet, verfügt über eine großzügige Kochinsel und Premium-Geräte, die Funktionalität und eine einladende Atmosphäre vereinen. Ein separates multifunktionales Zimmer mit eigenem Zugang kann flexibel als Büro, Atelier oder Fitnessbereich genutzt werden und bietet Menschen, die Wert auf Selbstständigkeit und kreativen Freiraum legen, ideale Möglichkeiten.
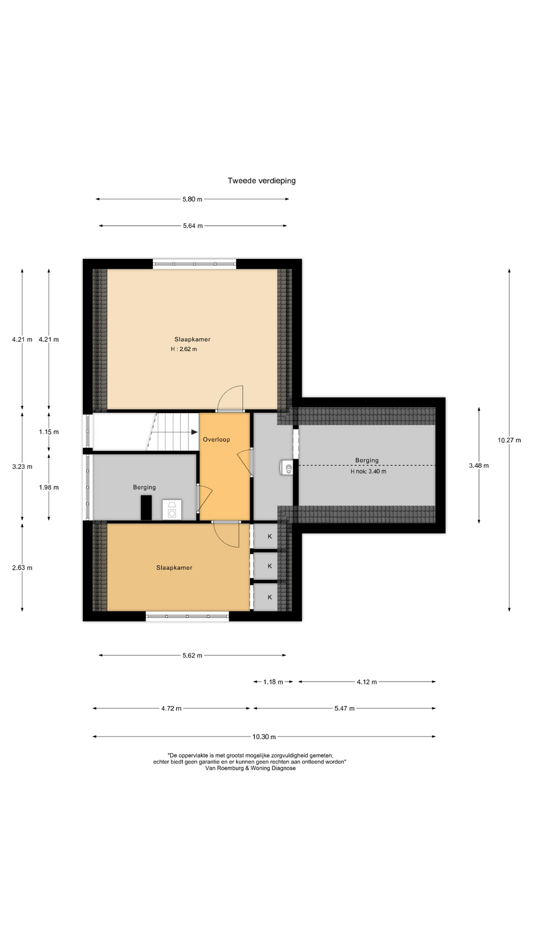
Im Obergeschoss gruppieren sich drei Schlafzimmer um einen ruhigen Flur, ergänzt durch ein elegantes Badezimmer und eine zusätzliche Gästetoilette, die Komfort und Privatsphäre unterstreichen. Im Dachgeschoss eröffnet sich weiteres Potenzial mit zwei zusätzlichen Schlafzimmern und reichlich Stauraum – perfekt für wachsende Familien oder Sammler.
Im gesamten Haus sorgen Materialien wie französischer Eichenboden mit Fußbodenheizung für ein Gefühl leiser Luxusqualität. Die Garage ist mit einem elektrischen Rolltor, Heizung und möglichem Arbeitsplatz ausgestattet – sie verbindet sich direkt mit dem Haus. Energieeffizienz der Klasse A zeigt sich in 18 Solarpanels sowie einer Hybrid-Wärmepumpe und unterstützt einen nachhaltigen, modernen Lebensstil.
Die Nähe zu schnellen Tramverbindungen nach Amsterdam sowie eine breite Auswahl an Schulen, Parks und Sportvereinen verbinden die Stadtanbindung mit dem entspannten Lebensrhythmus von Uithoorn. Die Villa steht nicht nur für Größe und exzellentes Handwerk, sondern auch für eine Adresse, an der Ruhe, Lebensqualität und Alltagstauglichkeit harmonisch vereint sind.
Entdecken Sie Uithoorn mit Baerz, Ihrem vertrauenswürdigen persönlichen Immobilienfinder und Berater
Die Komplexität des Uithoorner Marktes – von diskreten Objekten bis zu ständig sich ändernden Regularien – macht Expertenrat unverzichtbar. Seriöse Berater liefern Einblicke, übernehmen die gezielte Suche und begleiten durch alle Transaktionsphasen. Ihr Zugang zu besonderen Möglichkeiten verschafft Mandanten einen klaren Vorteil.
Häufige Fallstricke vermeiden
Internationale Käufer verlieren oft wertvolle Zeit, weil sie sich durch doppelte, veraltete oder irreführende Online-Angebote kämpfen müssen – besonders da fast 30% aller Luxusimmobilien überhaupt nicht auf dem Markt erscheinen.
Makler des Verkäufers vertreten die Interessen des Verkäufers, nicht Ihre, und schon eine einfache Anfrage kann dazu führen, dass eine Agentur Sie ohne Ihre Zustimmung als deren „Kunden“ registriert.
Mit Baerz Property Finders & Advisors umgehen Sie all diese Fallstricke vollständig.
Wir handeln ausschließlich in Ihrem Interesse, bieten unabhängige Vertretung, transparente Beratung und Zugang zu jedem verfügbaren Objekt – einschließlich privater und off-market Angebote, die andere nie zu sehen bekommen.
Neugierig, wie Sie Ihren eigenen Personal Property Advisor sichern können? Kontaktieren Sie uns, um zu erfahren, wie wir Ihre Interessen vertreten und Ihnen den gesamten Markt öffnen können.