Diese Doppelhaushälfte in Valkenburg liegt direkt am Wasser und bietet ruhiges Wohnen am Ufer, mitten im Herzen der Randstad. Das Anwesen umfasst 162 m² elegant gestalteten Wohnraum auf einem 655 m² großen Grundstück, vereint durch einen architektonisch gestalteten Garten und einen zehn Meter langen privaten Bootssteg an der Alten Rijn mit komfortablem Zugang Richtung Leiden und den Kagerplassen. Aus dem sonnigen Garten gelangen Sie direkt ans Wasser, Bootfahren wird Teil des Alltags, und der Valkenburger See ist fußläufig erreichbar.
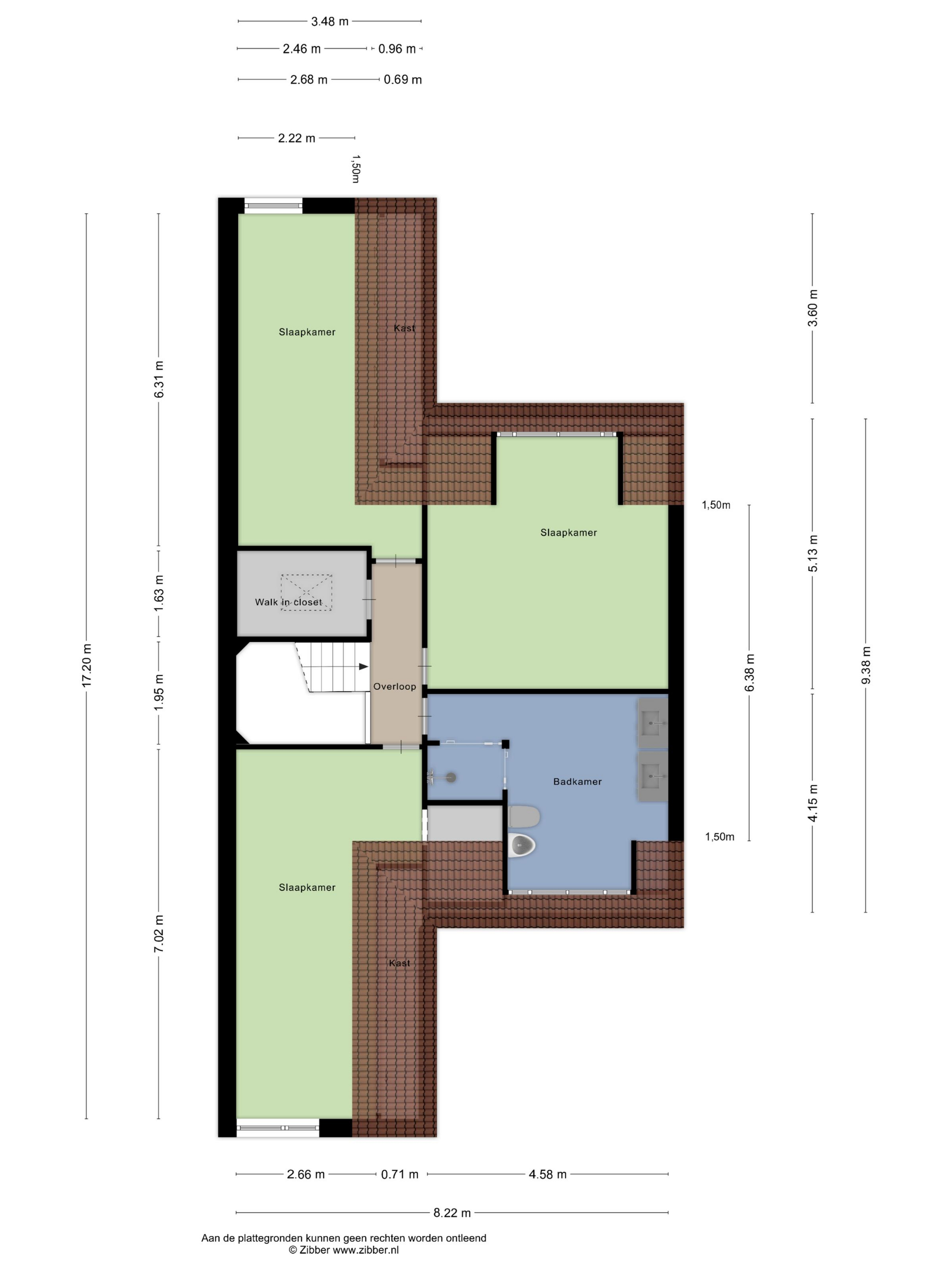
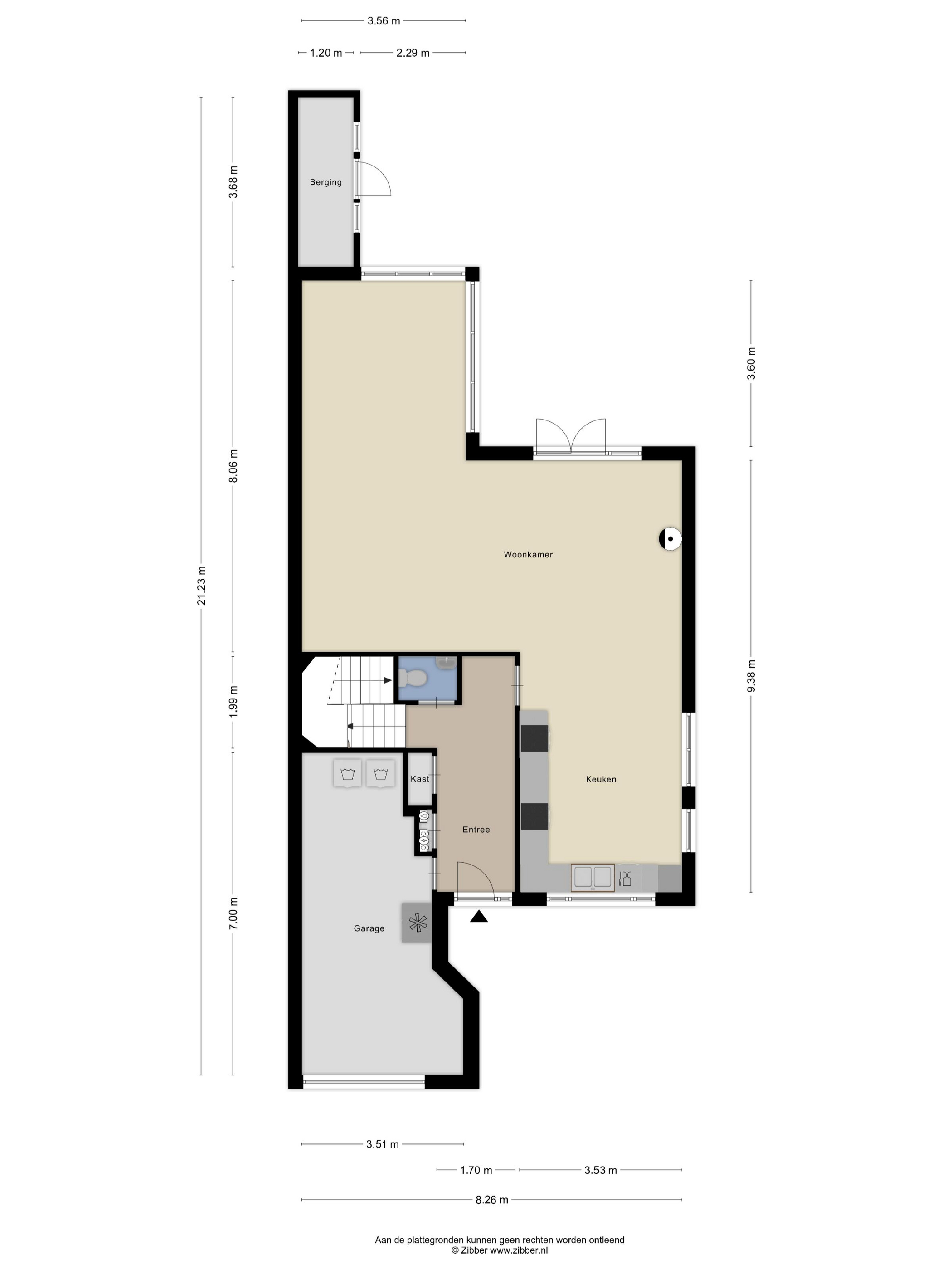
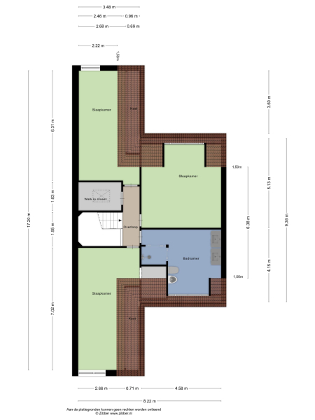
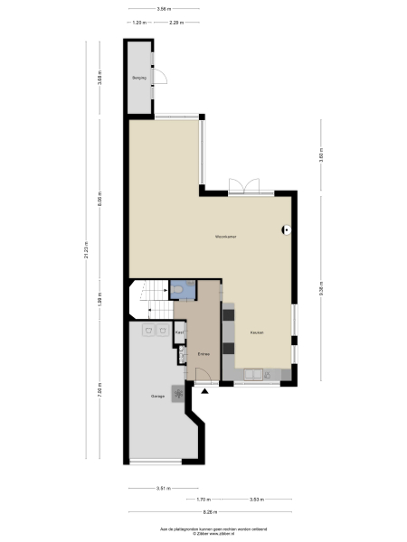
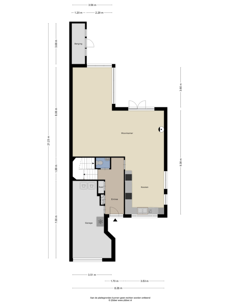
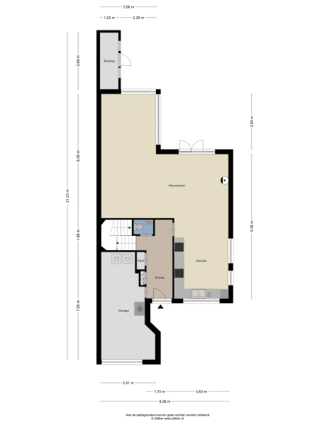
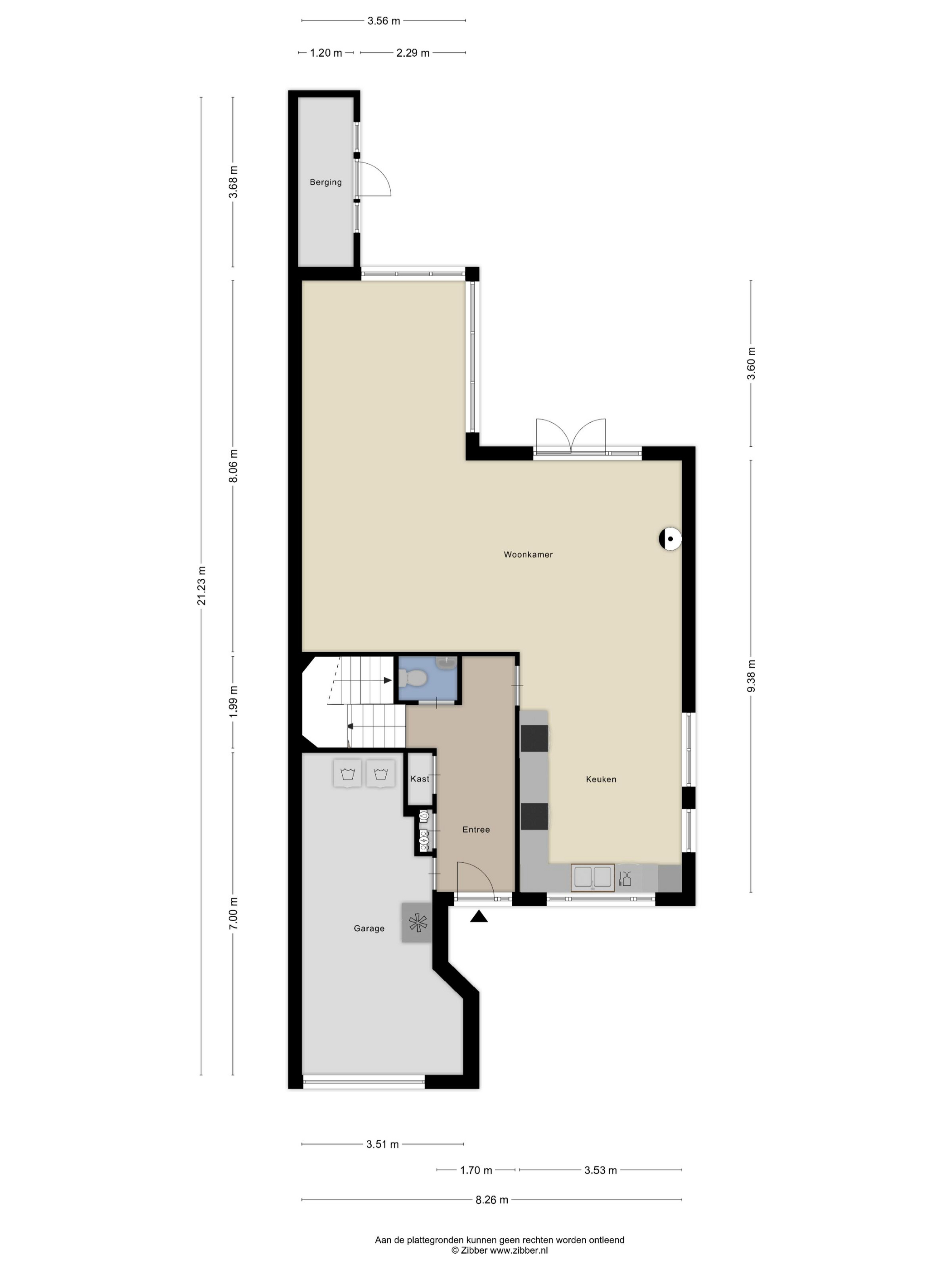
Innen empfängt Sie die Villa mit einer großzügigen Diele, die in ein lichtdurchflutetes Wohnzimmer führt. Große Fensterfronten und französische Türen lassen den Blick auf Garten und Wasser eindrucksvoll wirken, ergänzt durch einen Gaskamin und Fußbodenheizung im gesamten Erdgeschoss. Die Küche bietet Raum zum Kochen und für Begegnungen, während die angeschlossene Garage mit elektrischem Tor und eigenen Anschlüssen ausgestattet ist. Im Obergeschoss befinden sich drei Schlafzimmer sowie ein luxuriöses Bad mit Fußbodenheizung und begehbarer Dusche aus 2022, die den privaten Bereich abrunden. Ein begehbarer Kleiderschrank und ein großzügiger Stauraum im Dachgeschoss sorgen für zusätzliche Flexibilität, zudem lässt sich problemlos ein viertes Schlafzimmer realisieren.
Die angelegte Vorgarten- und Rückgartenfläche bietet sonnige und schattige Bereiche, unterstützt von automatischer Beregnungsanlage, einem Schuppen direkt am Wasser und der Privatsphäre eigener Parkplätze für drei Autos. Mit Energieeffizienzklasse B, HR++ Verglasung und gesicherten Ausstattungen verbindet dieses Haus Komfort mit Sicherheit. Diese exklusive Villa zum Verkauf in Valkenburg liegt nur wenige Minuten vom Zentrum Leidens entfernt, nahe internationaler Schulen, sowie weniger als zwanzig Minuten von Amsterdam, Schiphol und Den Haag, perfekt vernetzt für Familien- und Berufsleben. Hier bestimmen Raum, Licht und die leise Präsenz des Wassers das luxuriöse Wohnen.
Entdecken Sie Falkenburg mit Baerz, Ihrem vertrauenswürdigen persönlichen Immobilienfinder und Berater
Der Wert erfahrener, ortskundiger Berater liegt in Valkenburgs vielfältiger Bausubstanz und diskreten Off-Market-Chancen. Experten bieten Einblicke in Geschichte und Potenzial der Lagen, verschaffen Zugang zu unveröffentlichtem Angebot und sichern mit Verhandlungsgeschick und Netzwerken, etwa zu Denkmalschutzarchitekten, einen klaren Vorteil.
Häufige Fallstricke vermeiden
Internationale Käufer verlieren oft wertvolle Zeit, weil sie sich durch doppelte, veraltete oder irreführende Online-Angebote kämpfen müssen – besonders da fast 30% aller Luxusimmobilien überhaupt nicht auf dem Markt erscheinen.
Makler des Verkäufers vertreten die Interessen des Verkäufers, nicht Ihre, und schon eine einfache Anfrage kann dazu führen, dass eine Agentur Sie ohne Ihre Zustimmung als deren „Kunden“ registriert.
Mit Baerz Property Finders & Advisors umgehen Sie all diese Fallstricke vollständig.
Wir handeln ausschließlich in Ihrem Interesse, bieten unabhängige Vertretung, transparente Beratung und Zugang zu jedem verfügbaren Objekt – einschließlich privater und off-market Angebote, die andere nie zu sehen bekommen.
Neugierig, wie Sie Ihren eigenen Personal Property Advisor sichern können? Kontaktieren Sie uns, um zu erfahren, wie wir Ihre Interessen vertreten und Ihnen den gesamten Markt öffnen können.