Baerz & Co is een landelijk samenwerkingsverband van zorgvuldig geselecteerde boutique luxury makelaars. Samen vormen wij één netwerk, met één gedeeld aanbod. De woningen die u op onze website ziet, zijn afkomstig van alle aangesloten kantoren binnen Baerz & Co. Daardoor is niet ieder object rechtstreeks door ons kantoor in verkoop, maar door een gespecialiseerde collega binnen ons netwerk. Heeft u een woning gevonden die u aanspreekt en wilt u meer informatie? Dan brengen wij u graag persoonlijk in contact met de betreffende verkoopmakelaar, zodat u direct en zorgvuldig wordt begeleid.

AMSTERDAM
Ceintuurbaan 253 3 - 1074 CZ
Netherlands

Dirk Gerwig profile image
Dirk Gerwig
Real Estate Agent
€1,595,000 k.k.
Living Area
241m2
Plot Size
N/A
Bedrooms
4

Description

Elegant and very spacious apartment (approx. 241 m²) across the top three floors of a magnificent national monument on the Ceintuurbaan! This exceptionally spacious residence spans the top three floors of a beautifully preserved Rijksmonument and features a generous open-plan living area with wood-burning stove, four bedrooms, two bathrooms, and a wonderfully sunny south-facing balcony. Enjoy stunning views towards the Amstel River and the added benefit of owning freehold property—no leasehold involved.

Location & Accessibility

Ceintuurbaan 253 is ideally located in the highly sought-after Oud Zuid district of Amsterdam, right on the edge of De Pijp and just steps from the Amstel River. It’s one of the most desirable areas in the city. A wide variety of excellent cafés and restaurants are just around the corner. Across the river, you’ll find beloved spots like De Ysbreeker, Bam Boa, and Café Hesp with their sunny waterfront terraces. Strolling along the picturesque Weesperzijde is a daily treat. Specialty coffee bars are within walking distance, and you’re spoiled for choice when it comes to gourmet food, fresh produce, and delicacies, with both the Albert Cuyp Market and the charming Utrechtsestraat nearby. Grocery shopping is convenient too, with options such as Albert Heijn, Lidl, and Foodmarqt Ekoplaza.

Accessibility is excellent: tram and bus stops are just around the corner, and both Amstel Station and De Pijp Metro Station (North/South Line) / Wibautstraat are just minutes away by bike. By car, you’re only a few minutes from the A10 Ring Road, with direct access to the A1, A2, and A4. Parking is available by permit or paid parking directly in front of the building. Cycling offers effortless access to every corner of the city.

Layout

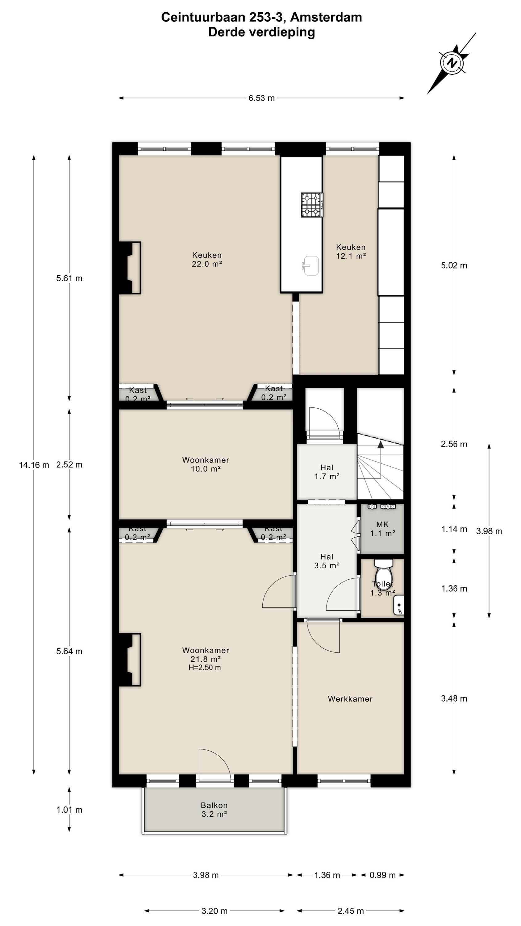
Elegant communal entrance with a stylish monumental staircase. Private entrance on the third floor.

Third Floor

From the hallway—equipped with custom-made wardrobe cabinets—you enter the sunlit living room, complete with a wood-burning stove and an original natural stone mantelpiece. At the front of the home is a cozy study area and access to a wide, sunny south-facing balcony. Centrally located is a custom-built intermediate space with climate-controlled wine fridge, also ideal as a library or reading nook. This connects the living and dining areas via beautiful original sliding doors.
The modern open kitchen, located at the bright rear side of the home, boasts a unique island with a Dekton countertop and a copper backsplash featuring Portuguese 3D tiles. Luxury appliances include an induction cooktop with integrated extractor, (steam) oven with sous-vide and plate-warming functions, large refrigerator and separate freezer, dishwasher, and a Quooker tap with sparkling water function. The expansive dining area spans an impressive 35 m², perfect for unforgettable gatherings with family and friends.

Fourth Floor

A spacious landing provides access to the first three bedrooms. At the front, you’ll find the luxurious master suite, complete with custom-fitted wardrobes, a walk-in closet, a freestanding solid surface bathtub, separate toilet, and an en-suite bathroom featuring double rainfall showers and a large double-sink vanity. At the rear are two playful and well-sized bedrooms, each with a mezzanine level. The second bathroom includes a Jee-O walk-in shower, vanity with sink, and a toilet. There’s also a separate laundry room with space for washer and dryer.

Fifth Floor

This level features a spacious landing with original exposed wooden beams—perfect as a music room, workspace, or gaming area. The fourth bedroom and a convenient storage room are located at the front. There’s also an additional washbasin on this floor. A staircase leads to the roof, where you can enjoy views of Carré Theatre and even the Rijksmuseum. This characteristic building, designed by architect A.C. Boerma, is constructed of brick accented with limestone blocks and bands. The facade boasts three elegant wooden bay windows adorned with authentic ornaments and fantasy figures. Throughout the home, you’ll find beautiful hardwood flooring, high ornamental ceilings, and original stained-glass transom windows. We invite you, like the current residents, to fall in love with this truly exceptional and spacious home.

Key Features:

- Apartment right of approx. 241 m² (measured in accordance with NEN2580)
- Four well-sized bedrooms (with the potential for a fifth)
- Sunny south-facing balcony (approx. 4 m²)
- Fully renovated throughout
- The front façade has recently been fully maintained and repainted
- Registered national monument (Rijksmonument)
- Eligible for government subsidies for maintenance due to monument status
- Situated on freehold land (no leasehold)
- Professionally managed homeowners’ association (VvE), with an active maintenance plan (MJOP)
- VvE consists of 4 members
- Monthly VvE contribution: €379
- Transfer date to be determined in consultation

This information has been compiled with due care. However, no rights can be derived from any inaccuracies, incompleteness, or the consequences thereof. All measurements and surface areas are indicative. Buyers are responsible for their own due diligence on all matters relevant to their decision-making. The real estate agent acts on behalf of the seller. We advise you to engage an expert (NVM) purchasing agent to guide you through the acquisition process. Should you have specific requirements regarding the property, we advise you to make these known to your purchasing agent in time and conduct your own investigation. If you choose not to hire a professional representative, the law deems you sufficiently knowledgeable to assess all relevant matters independently. NVM terms and conditions apply.

Features

Transfer of ownership
Asking Price
€ 1.595.000 k.k.
Status
beschikbaar
Acceptance
in overleg
Construction
Kind of house
Bovenwoning
Building type
dubbel bovenhuis
Construction period
1885
Roof type
plat dak
Bedrooms
4
Bathrooms
2
Surface Areas And Volume
Living Area
241 m2
Other indoor space
0 m2
Exterior space attached to the buildinge
4 m2
Volume in cubic meters
797 m3
Facilities
Mechanische ventilatie
Tv kabel
Rookkanaal
Dakraam
Glasvezel kabel
Natuurlijke ventilatie
In centrum
Vrij uitzicht
Open ligging
Aan vaarwater
Baerz & Co Property Brochure

Brochure

Videos

Floor Plans

Gerwig Makelaardij

Dannestraat 7
3621 AE Breukelen

info@gerwig.nl
+31 346 26 25 43

www.gerwig.nl

Information / Viewing request

Dirk Gerwig profile image
Dirk Gerwig
Real Estate Agent

Buying a Luxury Property in Amsterdam

Amsterdam offers a cosmopolitan lifestyle defined by heritage, connectivity, and discreet luxury. Residents benefit from a robust international community, curated services, and vibrant culture. The city’s enduring appeal lies in its blend of history, sophistication, and progressive spirit.