Ons kantoor is lid van Baerz & Co Luxury Homes; een internationaal platform dat exclusieve woningmakelaars met elkaar verbindt. Neem contact op met ons secretariaat voor meer informatie over het landelijke aanbod, waarvan u hieronder een selectie kunt bekijken.

AMSTERDAM
Warmondstraat 85 H - 1058 KS
Netherlands

Steijn Schothorst profile image
Steijn Schothorst
Real Estate Agent
€1,250,000 k.k.
Living Area
120m2
Plot Size
122m2
Bedrooms
3

Description

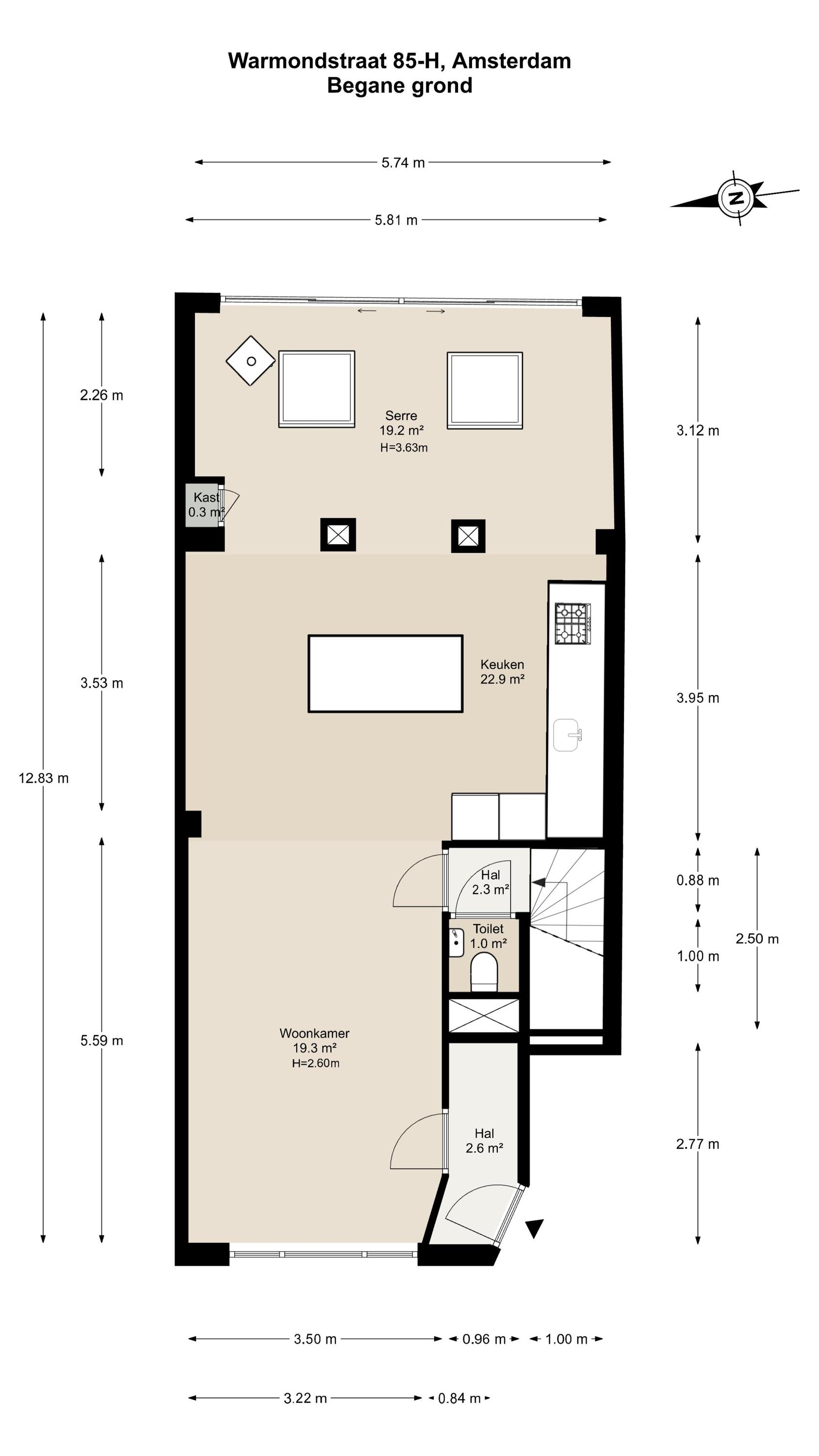
This dubbel benedenhuis Amsterdam offers 120 m² of luminous, refined living space on Warmondstraat in the established Hoofddorppleinbuurt. The double ground-floor configuration blends generous volume with comfort, delivering three well-proportioned bedrooms and a modern bathroom. The main living room merges smoothly with an open kitchen equipped with a stylish island and integrated appliances, while a rear extension with skylights draws natural light deep into the heart of the home. Floor-to-ceiling sliding glass doors open onto an east-facing garden of approximately 32 m², complemented by a convenient storage shed and the sense of private outdoor space rarely found in the city.

Descending via a central staircase, the lower level features three tranquil bedrooms. The primary bedroom is positioned at the front, and the two rear bedrooms offer flexible space for children or home working. The sleek bathroom includes a walk-in shower, generous bathtub, double sink, and toilet. A utility room and additional storage enhance liveability.

This property holds energy label A, is set on freehold land, and enjoys an active Homeowners Association. Set in a quiet yet vibrant Amsterdam-Zuid street, parks, schools, boutiques, and cafes—from Vondelpark to Drovers Dog—are all within reach. Immediate access to the A10, tram lines, local amenities, and a short connection to Schiphol make this dubbel benedenhuis Amsterdam uniquely suited for those valuing privacy, light, and city convenience.

Explore Amsterdam with Baerz, Your Trusted Personal Property Finder & Advisor

Navigating Amsterdam’s luxury market calls for deep local intelligence, discretion, and negotiation expertise. Top advisors provide access to private listings, clarify nuanced ownership rules, and pinpoint value in a market where opportunities seldom reach public view. Advisory teams offer rigorous asset vetting and representation, strengthening your position during negotiations, ensuring seamless transactions, and protecting your privacy throughout the process.

Features

Transfer of ownership
Asking Price
€ 1.250.000 k.k.
Status
verkocht onder voorbehoud
Acceptance
in overleg
Construction
Kind of house
Dubbel benedenhuis
Building type
appartement
Construction period
1931
Energy rating
A
Roof type
samengesteld dak
Bedrooms
3
Bathrooms
1
Surface Areas And Volume
Living Area
120 m2
Other indoor space
0 m2
External storage space
5 m2
Volume in cubic meters
428 m3
Plot Size
122 m2
Facilities
Tv kabel
Natuurlijke ventilatie
Aan bosrand
Aan water
Aan park
Aan rustige weg
In woonwijk
Aan vaarwater
Baerz & Co Property Brochure

Brochure

Videos

Heeren Makelaars

Stadionweg 75
1077 SE Amsterdam

info@heerenmakelaars.nl
+31 204702255

www.heerenmakelaars.nl

Information / Viewing request

Steijn Schothorst profile image
Steijn Schothorst
Real Estate Agent