 
	        		 
								The best of both worlds comes together here. The architectural beauty of a stately mansion combined with exceptional living comfort. We warmly welcome you to Hoogbraak 48 in Baarle-Nassau. A high-quality villa situated in a prime location, close to all daily amenities as well as nature. The property boasts a living area of no less than 466 m², sits on a generous plot of 2,270 m² of private land, and carries a favorable energy label A.
Through the neatly landscaped front garden, you reach the stately entrance of the home. Upon entering, it is immediately clear that careful thought has been given to the sightlines in and around the property. The hallway features a meter cupboard, a guest toilet, a cloakroom, a staircase to the upper floor, and provides access to the living areas.
GROUND FLOOR
The ground floor is divided into three living spaces that, through open connections, form a cohesive whole. What immediately stands out is the abundance of natural daylight, which, combined with the high ceilings, creates a pleasant atmosphere.
The living room is fitted with parquet flooring, a built-in gas fireplace, recessed lighting, and a garden door. Large windows at the front, side, and rear allow plenty of natural light and offer a delightful view of the garden.
The dining room, centrally located, also has parquet flooring and a garden door leading directly to the veranda. Especially in good weather, the veranda serves as a seamless extension between indoor and outdoor living.
The heart of this home is undoubtedly the beautiful kitchen-living area. With its open design, this is the perfect spot for the family to come together. The large island in the center provides space for both cooking and seating.
The kitchen is equipped with a modular BORA system with 2 induction hobs, 2 built-in extractors, a teppanyaki plate, a Quooker tap, 2 refrigerators, a freezer, a steam oven, a conventional oven, a dishwasher, and a wine climate cabinet.
Adjacent to the kitchen is the multifunctional side wing of the house, featuring a utility room, office, garden room, guest toilet, attic space, and a back entrance with direct access to the driveway. With its own entrance, this wing is ideally suited for use as a guest or care residence, or as a home office/practice.
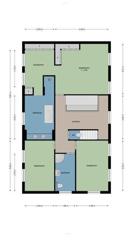
From the main hallway staircase, you reach the landing, bedrooms, and bathrooms on the first floor.
FIRST FLOOR
Bedroom 1, located at the front of the house, serves as the master suite. Overlooking the garden, it offers a true oasis of calm. This suite includes a walk-in closet and a complete bathroom with a walk-in shower, freestanding bathtub, and double washbasins with vanity.
Bedroom 2, also at the front of the house.
Bedroom 3, located at the rear of the property.
The second bathroom features a wall-mounted toilet, shower, and wide washbasin with vanity. The landing also provides access to an additional separate toilet.
As with the living areas downstairs, the upper floor benefits from high ceilings, which, together with the influx of daylight, ensures a very pleasant living experience.
A closed staircase on the landing leads to the large attic.
ATTIC
Currently, the attic is set up as one large multifunctional space. It includes connections for a washing machine and houses the central heating system. It is possible to create additional bedrooms here, potentially with a small bathroom.
GARDEN & SURROUNDINGS
The beautifully landscaped garden surrounds the house and is perfect for those who love outdoor living. It features a spacious lawn, borders with mature planting, fruit trees, lighting, a terrace with veranda, an irrigation system, and various cozy seating areas. There is also space to install a greenhouse. Additionally, the property includes a driveway with ample parking, preparations for a charging station, and a garage with double doors.
The veranda comes equipped with recessed lighting and heaters, making it a cozy place for long summer evenings with family and friends—a perfect setting to create new memories.
LIVING IN BAARLE
The village of Baarle consists of the Dutch municipality of Baarle-Nassau and the Belgian municipality of Baarle-Hertog. It lies in the green triangle between Breda, Tilburg, and Turnhout. Baarle is often called the most curious village in the world due to its unique layout of 30 enclaves: 22 Belgian and 8 Dutch, earning it the title of “World Capital of Enclaves.”
Living in Baarle means living in a village with a wide range of amenities. It has Dutch and Belgian childcare centers, primary schools, football and tennis clubs, doctors’ practices, as well as Dutch hockey and athletics clubs, a secondary school, and several supermarkets such as Albert Heijn, Jumbo, and Aldi. Hospitality, bakeries, drugstores, and shops are also abundant.
For nature lovers, Baarle is an excellent location, offering beautiful walking and cycling routes and access to stunning natural areas.
DETAILS
•	Completed in 2009
•	Energy label A, valid until 05/10/2026
•	Living area: 466 m²
•	Plot size: 2,270 m²
•	Gross volume: 1,854 m³
•	Preparation for heat recovery system available
•	Possibility for home office/practice
•	Suitable for live-in parents (care residence)
•	Move-in ready, high comfort level, and well-maintained
•	NEN 2580 measurement report available
•	Conveniently located near major roads in the green triangle Breda–Tilburg–Turnhout
•	Close to all amenities as well as nature
Van Baarle Makelaardij has compiled the information in this advertisement with the utmost care. Despite this diligence, the published information may be incomplete or incorrect. Van Baarle Makelaardij accepts no liability for any inaccuracies, omissions, or consequences thereof. You are welcome to help us keep the information accurate. Any errors or suggestions may be reported to us by phone or email.
