Ons kantoor is lid van Baerz & Co Luxury Homes; een internationaal platform dat exclusieve woningmakelaars met elkaar verbindt. Neem contact op met ons secretariaat voor meer informatie over het landelijke aanbod, waarvan u hieronder een selectie kunt bekijken.

Woonboerderij for sale in DE HOEF

DE HOEF de Hoef Westzijde 47 - 1426 AT The Netherlands


John Korver profile image
John Korver
Real Estate Agent
+31 6 23 21 84 94
welkom@korvermakelaars.nl

Korver makelaars
Stationsweg 12
3641RG Mijdrecht
NETHERLANDS
+31 297 25 04 21
www.korvermakelaars.nl
welkom@korvermakelaars.nl

Living area
400m2
Plot size
4885m2
Bedrooms
7

Description

Rural Living with the City at Your Feet – A Dream Location in De Hoef

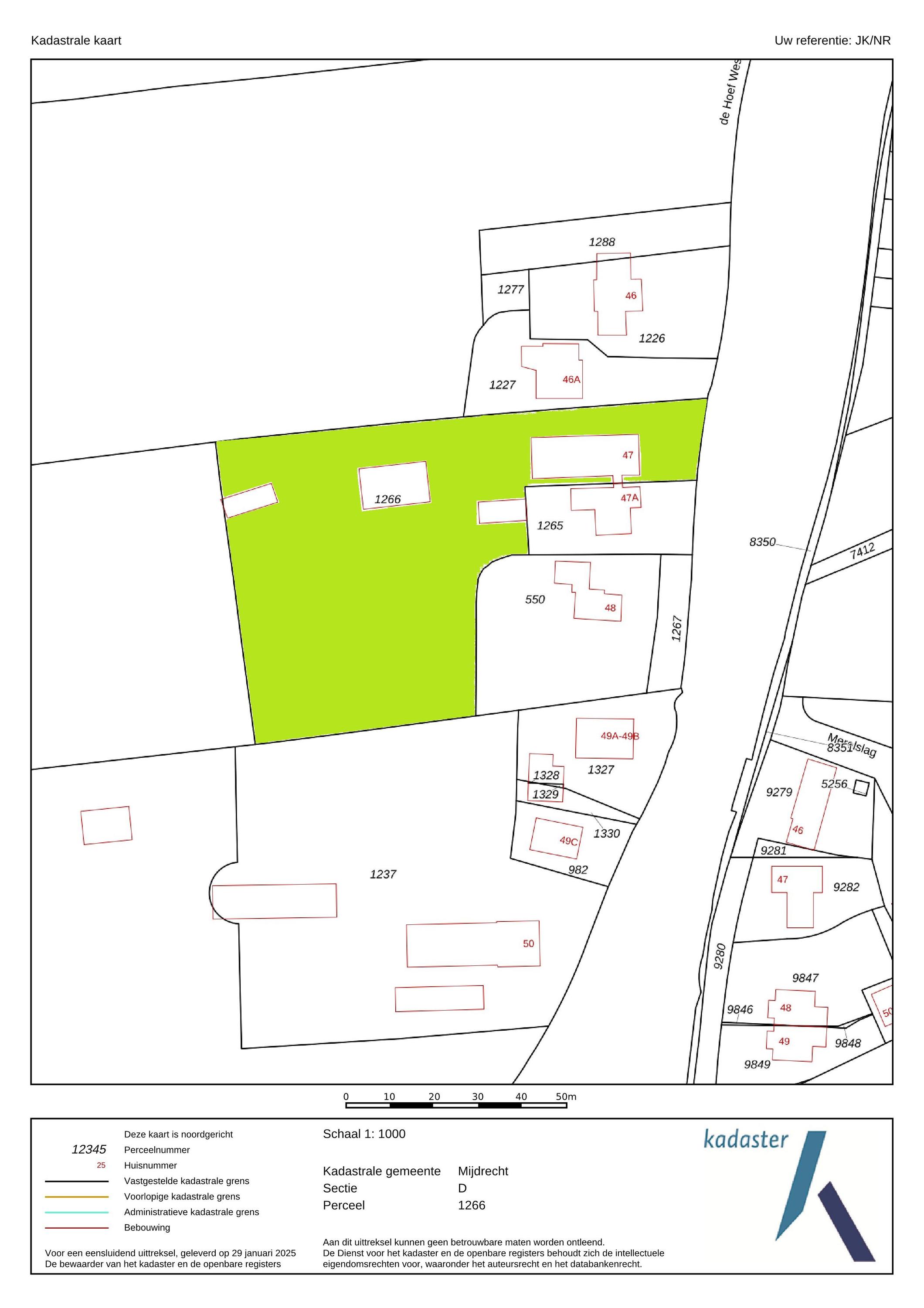
Welcome to this extraordinary, detached, thatched country house, beautifully situated on the picturesque banks of the Kromme Mijdrecht River in idyllic De Hoef, just outside Amsterdam. A place where peace, space, and natural beauty meet comfort, style, and accessibility. From the moment you drive onto the property, it all comes together: the charm of the thatched roof, the sweeping views, and that undeniable sense of home. It’s also a dream come true for horse lovers and owners, with the potential to purchase the adjacent 1.8-hectare paddock.

This exclusive property is not just a house – it’s a place with soul and character. Every detail has been lovingly restored, styled, and maintained – you can feel it the moment you step inside. Original features and modern finishes go hand in hand. The thatched roof was recently renewed and, together with the rest of the house, forms a harmonious whole where quality and atmosphere blend effortlessly. The rooms are warm, spacious, and inviting – perfect for both intimate gatherings and absolute privacy. Whether you're reading by the fireplace, enjoying long dinners while watching the sunset, or waking up to birdsong and the gentle ripple of water – this is living at its finest.

Step outside and you'll find a sprawling backyard with ample space for lounging, playing, gardening, or simply soaking in the serene views over the water and greenery. And the water? It’s not just for show – here you can swim, paddleboard, canoe, or explore the area by boat. Imagine starting your day with a refreshing dip or a peaceful morning cruise on the Kromme Mijdrecht.

And yet, you’re in the heart of the Randstad. The location is surprisingly convenient: you’re just minutes away from the A2, A4, A9, and A10. Schiphol, the Zuidas, Amsterdam, and other major cities are within easy reach. Everything you need – from schools and shops to sports facilities and public transport – is close by, while at home, you enjoy tranquility and open space every single day.

This home offers the best of both worlds: the freedom and charm of the countryside, combined with the dynamism and convenience of urban life. A rare find in a truly exceptional location.

Come see it, come feel it – this isn’t just a house; it’s a lifestyle.

Layout

GROUND FLOOR
You enter this remarkable farmhouse via the side façade into a spacious hallway with a stunning light-filled mezzanine that immediately emphasizes the home’s height and openness. The hall features a large coat area and a luxurious toilet, with a striking stone washbasin. Behind one of the cabinets, you’ll find the central heating system, along with the meter cupboard. A stylish staircase leads to the upper floor. From the hall, you can access all the main rooms on the ground floor.

To the right, the former stable has been transformed into an impressive living room and kitchen. Original stable windows and charming wooden shutters to the former hayloft pay homage to the home's agricultural past. The concrete floor has underfloor heating, and sturdy gymnastic rings hang from the ceiling – a playful invitation to let your inner child roam free. Picture yourself swinging through the space with sunlight pouring in through tall windows – whether it’s your children playing or you taking a break from gravity, these unique details add real personality.

The rear wall boasts large steel French doors that open up the home to the garden, with additional side doors for easy access.

The centerpiece of the living room is the large open fireplace, framed by a custom-made wood storage unit that subtly integrates the television – a bespoke piece by Don Zweedijk of De Mogelijkheidcollectie, blending art and functionality perfectly.

The kitchen is nothing short of spectacular. A copper bar with a built-in professional fridge with seven drawers is a highlight – perfect for culinary enthusiasts. The generous countertop houses an impressive Viking range with four gas burners and a griddle. A central island with a natural stone top offers a dishwasher and ample storage, while a bold overhead rack keeps pots, pans, and utensils within reach and on display.

Back in the hallway, to the left, is a charming bedroom or office, cleverly designed with built-in closets and a private entrance – ideal for working from home or accommodating guests with privacy.

The raised room (“opkamer”) is reached via a staircase, under which you'll find the original cheese cellar. A clever bit of craftsmanship: part of the staircase lifts to reveal the cellar, where original wooden cheese trays remain – silent witnesses to the home’s artisanal past. The room above exudes atmosphere and history, making it perfect as a cozy TV room, home office, or playroom.

At the front of the house is a spacious bedroom spanning the entire width of the home. This peaceful room includes a large built-in wardrobe and a stylish en-suite bathroom with a sliding door to the shower area, offering both a luxurious rain shower and a handheld one. The modern vanity ties in beautifully with the overall interior.

What makes this bedroom truly exceptional is the panoramic view over the Kromme Mijdrecht. Imagine waking up with the sun shimmering on the water or winding down while the light fades over the river – true peace at any time of day.

FIRST FLOOR
A wide, bright staircase brings you to a generous landing bathed in daylight. The mezzanine provides a stunning visual connection to the lower level and lets light flow freely through the home. This floor radiates character and craftsmanship with a playful layout and rich materials.

The former hayloft is now an impressive primary suite. A dormer window brings in plenty of light, while the adjacent walk-in closet is a dream come true. The open-plan bathroom adds style and edge, featuring a zinc bathtub as the focal point, a spacious zinc shower tray with rain shower, and a stone basin vanity. A separate toilet offers privacy.

Another bedroom with dormer window features a custom wardrobe – a work of art in itself, designed by artist Daan van den Berg. This room combines practical use with artistic flair.

A third bedroom offers charm and warmth with a skylight for fresh air and natural light – ideal as a child’s room, home office, or guest room.

There’s also a second bathroom, functionally designed with a classic granite floor, a skylight, connections for washer and dryer, a walk-in shower, toilet, and all the essentials for daily use.

At the front is a fourth, full-width bedroom – a true showpiece with a unique window and a built-in box bed created by artist Rob Vrijen. Old doors from the original farmhouse are integrated into the surrounding cabinets – a beautiful nod to the home’s history.

A fixed ladder leads to the large attic, stretching almost the full length of the home – currently used as a cozy guest space, full of charm and potential.

The main house has a living area of 336 m².

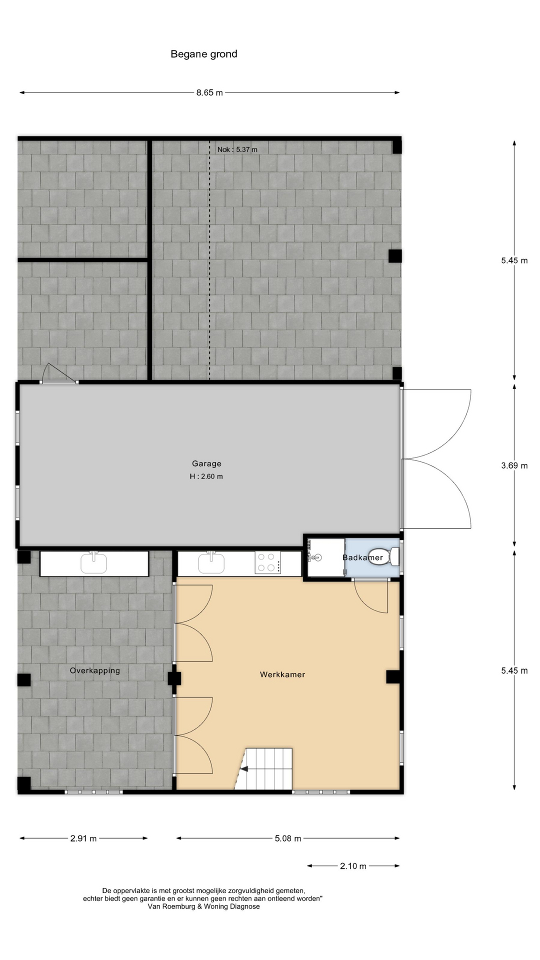
OUTBUILDING
To the side of the house is a versatile and characterful outbuilding. Begin under the covered area, where a unique outdoor kitchen immediately catches the eye. The countertop seamlessly runs from outside to inside, serving as both outdoor and indoor workspace – a stylish, practical detail.

Double doors lead into the current office space, equipped with a neat kitchenette, gas cooktop, and sink. There’s also a compact bathroom with shower and toilet.

Upstairs, you’ll find a guest living area, cleverly arranged with a custom storage cabinet – another design by Rob Vrijen, featuring repurposed old doors from the farmhouse, blending heritage with contemporary style.

In the center is a spacious garage with double doors. On the other side is another covered area (currently used for storage) and a carport with an electric charging station. This side offers as much space as the other – meaning it could easily be converted into a second guest, work, or living area.

Total living space of the outbuilding: 64 m².

FORMER STABLE
To the rear left of the home stands the former horse stable (41 m²) – a charming structure with a renewed roof and both water and electricity. It’s now used as a storage space, but its solid foundation offers plenty of potential: a workshop, creative studio, or hobby space – the choice is yours.

THE GARDEN
Surrounding the home is a garden that feels like your own private nature reserve – expansive, green, and surprisingly low-maintenance. It’s a place to unwind, for children to explore, and to enjoy the seasons in all their glory.

At the back, the garden opens up with a scenic seating area overlooking the fields. Enjoy morning coffee in the sun, alfresco dinners on warm summer evenings, or lose yourself in the landscape – this is tranquility, space, and freedom at its best.

The garden has a woodland feel, with mature trees, playful sightlines, and a natural layout that’s both inviting and manageable. And yes – there’s even a treehouse with a zipline – the ultimate playground for kids (and secretly for adults too).

To the side lies a recently renewed gravel driveway, adding to the tidy appearance while offering ample parking.

The front garden is equally enchanting – mature trees provide shade and ambiance. But perhaps the most spectacular feature is the home’s location on the Kromme Mijdrecht. Here, you have your own private dock – a dream come true for water lovers. Dive into the river, hop on a SUP board, take a canoe trip, or enjoy a relaxing boat ride. Outdoor living is second nature here.

This garden isn’t just an outdoor area – it’s a true extension of the home: a living space rich in character and possibilities.

What makes this property truly unique?

A protected municipal monument – offering heritage charm and historical significance.

Waterfront living – with a private dock on the Kromme Mijdrecht for swimming, paddling, and boating.

Historical character with modern comfort – original stable windows, cheese cellar, and repurposed farm doors meet stylish finishes.

Thatched and spacious – a newly replaced (2024) thatched roof, impressive floor area, and full character throughout.

Spectacular kitchen and living areas – featuring a Viking stove, copper bar, fireplace with artistic shelving, and underfloor heating.

Extensive outbuilding – with outdoor kitchen, guest quarters, garage, carport, and potential for second living space.

Show-stopping garden – woodland style, with fields in view, a treehouse with zipline, and sunny terrace by the water.

Optional purchase of 1.8 hectares of adjacent pasture land.

Countryside feel with city access – nestled in nature, yet perfectly connected to Amsterdam, Schiphol, and Utrecht.

The Location
Set back from the road for peace and privacy, yet close enough for convenience, De Hoef is a charming village with about 900 residents, a primary school, and an active community with sports, theater, and billiards. The community center hosts events and a gymnasium. Across the river is the cozy pancake restaurant De Strooppot, also available for events. Nearby towns like Mijdrecht, Uithoorn, and Nieuwveen offer additional amenities, and the surrounding countryside is perfect for walking, cycling, and boating.

Features

Transfer of ownership
price
€ 2.695.000 k.k.
Status
beschikbaar
Acceptance
in overleg
Construction
Kind of house
Woonboerderij
Building type
vrijstaande woning
Construction period
1880
Roof type
zadeldak
Bedrooms
7
Bathrooms
4
Surface Areas And Volume
Living area
400 m2
Other indoor space
32 m2
Exterior space attached to the building
35 m2
External storage space
76 m2
Volume in cubic meters
1485 m3
Plot size
4885 m2
facilities
Aan rustige weg
Vrij uitzicht
Beschutte ligging
Aan vaarwater
Landelijk gelegen
Baerz & Co Property Brochure

Brochure

Information / Viewing request

Videos

Photos

Floor Plans