Ons kantoor is lid van Baerz & Co Luxury Homes; een internationaal platform dat exclusieve woningmakelaars met elkaar verbindt. Neem contact op met ons secretariaat voor meer informatie over het landelijke aanbod, waarvan u hieronder een selectie kunt bekijken.

Woonboerderij for sale in EEMNES

EEMNES Wakkerendijk 190 - 3755 DH The Netherlands


Marquiette Schaap profile image
Marquiette Schaap
Real Estate Agent
+31 (0)35 76 35 424
hello@artoflivingbymar.com

Art of Living by Marquiette & Partners

Living area
264m2
Plot size
10840m2
Bedrooms
5

Description

Wakkerendijk 190, Eemnes

Rural charm, character, and freedom – unique countryside living just 10 minutes from Laren and Blaricum

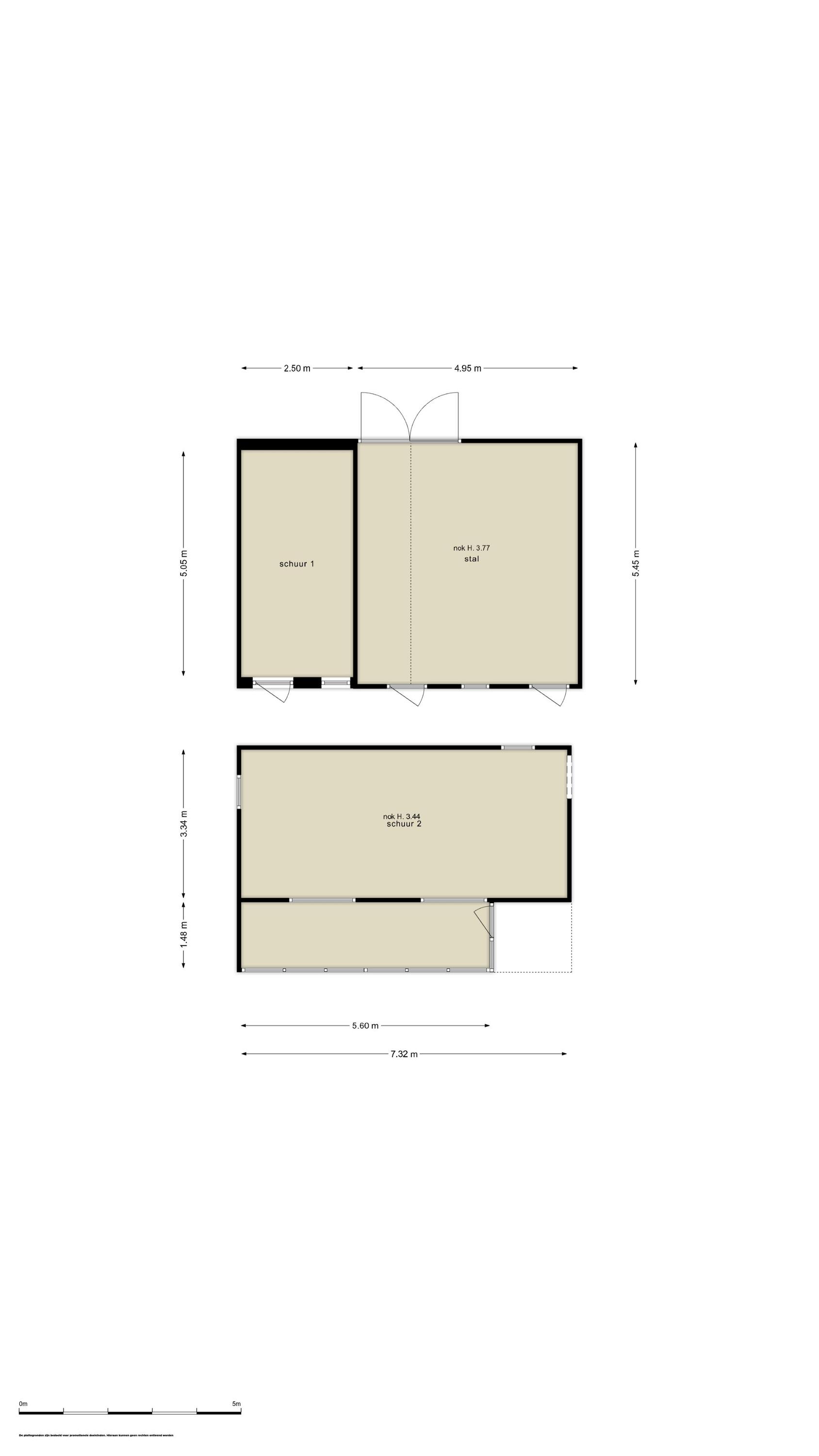
At the end of a long driveway – shared only in part with two other residences – an electric gate opens to reveal your very own slice of paradise. Tucked away behind mature weeping willows lies this charming thatched farmhouse, set on approximately 1.1 hectares of land. With 264 m² of living space and two outbuildings (each approx. 40 m² – a former stable and a barn), this home invites you into a picture-perfect rural dream. The property also features a former outdoor riding arena with lighting.

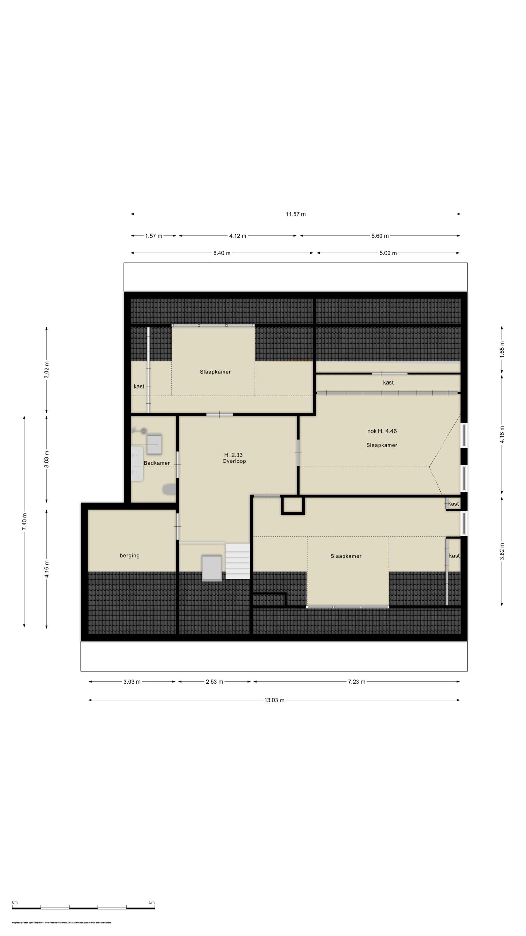
Step inside to a spacious hallway that immediately feels warm and welcoming. At the front of the home, you’ll find a cozy study – perfect for peaceful remote work or curling up with a good book. Also on this level is a generous bedroom with an en-suite bathroom, complete with vanity, bathtub, walk-in shower, and laundry connections. A separate toilet is also located on the ground floor.

As you move further into the home, the back opens up to a surprisingly large and bright living room, where a fireplace sets the tone for cozy winter evenings. This space flows seamlessly into the dining area and modern open-plan kitchen, fitted with high-quality Miele built-in appliances – together forming the heart of the home with a view of the deep garden and vast landscape beyond. No painting can match the beauty of this view. A nearby utility room offers extra storage and convenience.

Upstairs, you'll find everything you need for family life or guests: a charming master bedroom with vaulted ceilings and built-in wardrobes, where waking up to sweeping views of the meadows ensures a tranquil start to your day. Two additional children’s bedrooms and a second bathroom (with shower, toilet, and vanity) complete the upper floor – providing space, comfort, and functionality for all, along with ample storage.

Outside, the true countryside lifestyle awaits. A large vegetable garden, two freestanding barns (one with former horse stables), and plenty of room for ponies, horses, or even a collection of classic cars. Whether you’re an animal lover, a hands-on hobbyist, or simply in search of space for your passions – this property offers endless possibilities.

In short, with a ground-floor bedroom, this home is perfect for a wide range of lifestyles – including multi-generational or semi-independent living.

And yes – with an energy label B, it’s also surprisingly comfortable and sustainable.

A rare place where privacy and freedom meet, and where the dream of rural living becomes reality.

Features

Transfer of ownership
price
€ 1.725.000 k.k.
Status
verkocht onder voorbehoud
Acceptance
in overleg
Construction
Kind of house
Woonboerderij
Building type
twee onder een kapwoning
Construction period
1896
Energy rating
B
Roof type
zadeldak
Bedrooms
5
Bathrooms
2
Surface Areas And Volume
Living area
264 m2
Other indoor space
0 m2
External storage space
73 m2
Volume in cubic meters
1030 m3
Plot size
10840 m2
facilities
Mechanische ventilatie
Alarminstallatie
Rookkanaal
Dakraam
Open ligging
Buiten bebouwde kom
Landelijk gelegen
Baerz & Co Property Brochure

Brochure

Information / Viewing request

Videos

Photos