Baerz & Co is een landelijk samenwerkingsverband van zorgvuldig geselecteerde boutique luxury makelaars. Samen vormen wij één netwerk, met één gedeeld aanbod. De woningen die u op onze website ziet, zijn afkomstig van alle aangesloten kantoren binnen Baerz & Co. Daardoor is niet ieder object rechtstreeks door ons kantoor in verkoop, maar door een gespecialiseerde collega binnen ons netwerk. Heeft u een woning gevonden die u aanspreekt en wilt u meer informatie? Dan brengen wij u graag persoonlijk in contact met de betreffende verkoopmakelaar, zodat u direct en zorgvuldig wordt begeleid.

GEERTRUIDENBERG
Brandestraat 30 - 4931 AW
Netherlands

Dirk Gerwig profile image
Dirk Gerwig
Real Estate Agent
€1,275,000 k.k.
Living Area
268m2
Plot Size
374m2
Bedrooms
5

Description

This classic, luxurious, and fully modernised townhouse with rear house is located on the edge of the beautiful, characteristic, and iconic market square of Geertruidenberg.

This spacious property offers, among other things, a large living room, an atmospheric and generous living/dining kitchen, as well as 7 (bed)rooms and 2 bathrooms.

At the rear of the house is a beautiful, sunny garden with a large (fully insulated) garage, which, in addition to accommodating two cars, provides an abundance of storage space. The living area is 268 m² and includes a large, monumental vaulted cellar.

The property is in excellent condition — move-in ready and exceptionally comfortable! It features air conditioning, a heat recovery ventilation system (WTW), a security system with cameras, a "smart" Homey system, and much more.

The townhouse is within walking distance of shops, restaurants, primary schools, and various amenities. Major roads are nearby, and cities such as Breda and Rotterdam are accessible within approximately 30 minutes.

GROUND FLOOR

ENTRANCE HALL
Beautiful, authentic hallway featuring the meter cupboard (updated with 14 circuit breakers and earth leakage protection) and guest toilet.

TOILET
Toilet room with wall-mounted toilet, concealed cistern, and a small sink.
Through one of the many authentic panel doors, you access the spacious living room.

LIVING ROOM
Spacious L-shaped living room with several built-in cabinets and charming character features such as a natural stone fireplace and a large open wall cabinet (circa 1800). The floor is laid with solid oak floorboards, and the room features a stunning beamed ceiling.
Through a 3.5-meter-high classic partition wall with panel doors, you enter a connecting hallway.

INTERMEDIATE HALLWAY
This hallway contains a steel spiral staircase with an open view up to the ridge. Space has been allocated for an indoor staircase to the multifunctional basement. From this hallway, there is also access to:

LIVING/DINING KITCHEN
Charming living/dining kitchen with stylish design, including a Belgian bluestone worktop with double porcelain sink, Quooker with sparkling water, 90cm-wide gas stove, double oven, extractor hood, steam oven, and refrigerator.
The custom-built kitchen is set in an L-shape and offers fantastic views of the garden. The central area, laid with antique bluestone church tiles, accommodates a large dining table.
There is also an authentic built-in cabinet from 1800 and a beautiful beamed ceiling.

Behind this cabinet wall is a large pantry/utility room with connections for laundry appliances.

A rear hallway connects the main house to the rear house, and a door provides access to the garden.

FIRST FLOOR

LANDING
Spacious landing with skylights, an open view of the staircase, and a beautiful spatial effect offering various usage possibilities.

BEDROOM I
Front bedroom with visible original roof structure and custom-built wardrobe.

MASTER BEDROOM / BEDROOM II
Master bedroom located at the rear with built-in closet and beautiful views of the spacious back garden.
Beams and roof construction remain visible here as well.

BEDROOM III
Front bedroom with exposed roof trusses.

BATHROOM I
Luxurious bathroom featuring a bathtub, walk-in shower with two thermostatic mixers and shower heads, double sink in vanity unit, and wall-mounted toilet with concealed cistern. A large Velux skylight allows abundant natural light.

The first floor is finished with smooth plastered walls and pine floorboards (with insulating underflooring).

SECOND FLOOR

LANDING
Landing with pleasant workspace (suitable for laundry/ironing), directly under the impressive original roof structure (dated 1556!).

The central heating system and mechanical ventilation are also located on this floor, along with connections for laundry appliances.

BEDROOM V
Front-facing bedroom with a view of the beautiful church tower in front of the house.

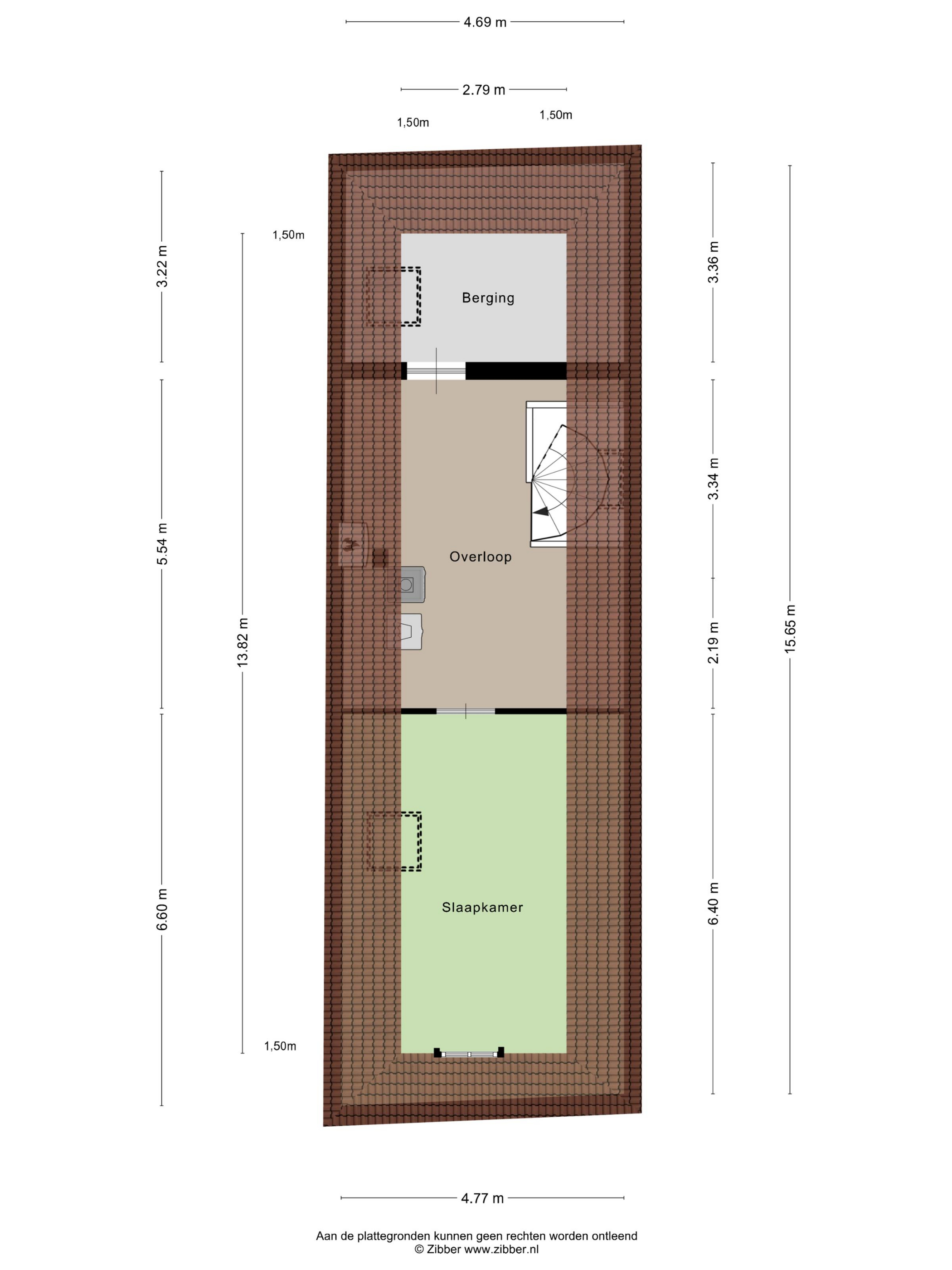
STORAGE ROOM
Rear-facing storage room with loft and skylight. This space could be converted into an additional bedroom.

The second floor is finished with plastered walls and wooden floorboards.

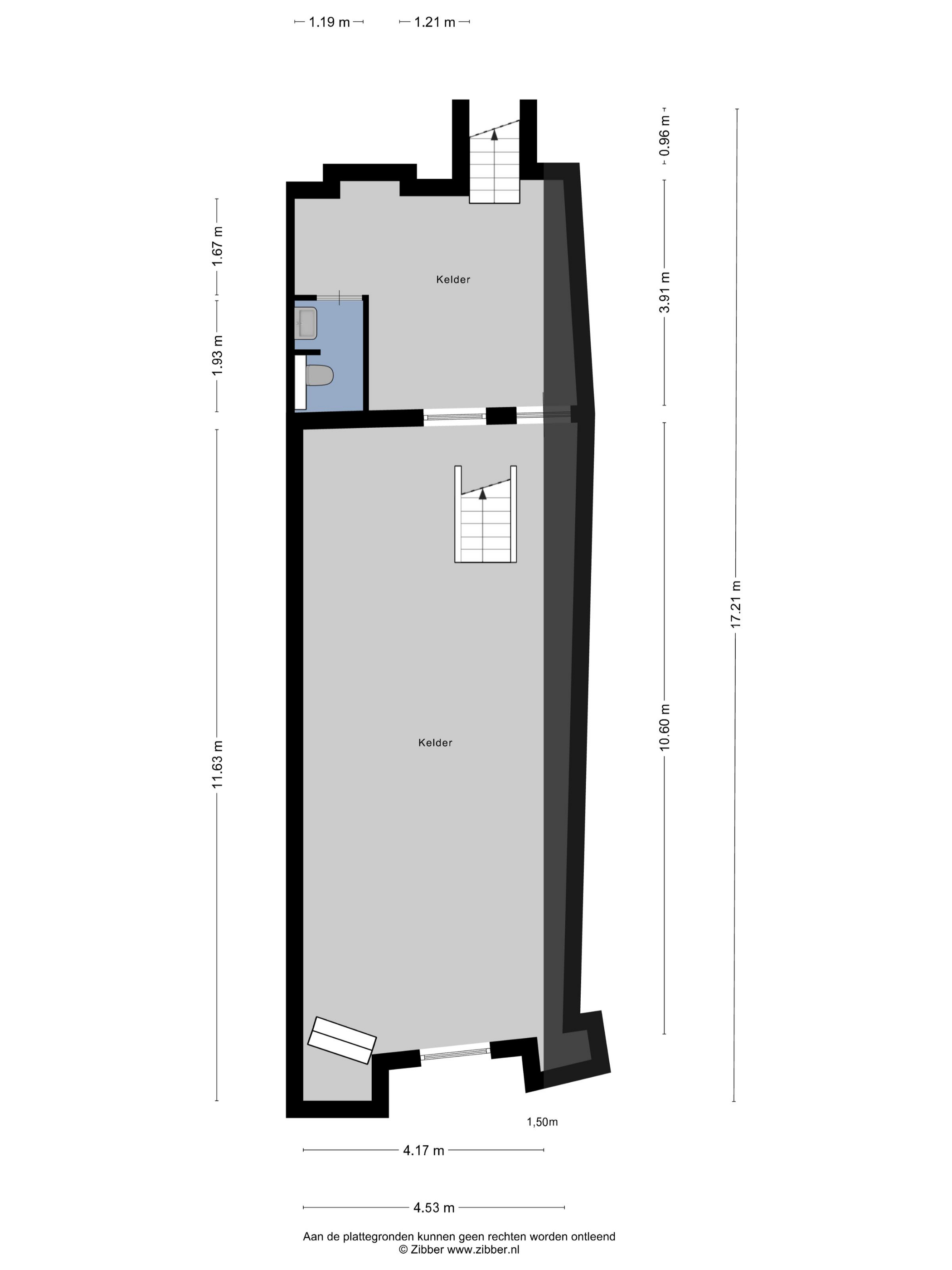
BASEMENT

Stunning vaulted cellar with hallway (separate entrance!), a separate storage cellar, toilet room, kitchenette with tap, and a cosy bar area.
This space can be accessed from both the street and the garden.

The cellar features an insulated polished concrete floor with underfloor heating. The vaulted ceiling and authentic water well add to the atmospheric, nostalgic ambiance.

Thanks to a thorough renovation, the cellar offers numerous usage possibilities. It is suitable for workshops, training sessions, hobby activities, a home gym, or simply hosting a social gathering.

GROUND FLOOR – REAR HOUSE

The rear house (with a French-style roof) exudes old-world charm with unique brick detailing and old terracotta floor tiles.

This part of the house is ideal for multigenerational living, a home office, or a student living at home.
It includes its own facilities: a cosy, spacious, garden-facing living room, as well as a bedroom and bathroom.

Originally built to house soldiers who lived and boarded with the family, the rear house (or "soldier’s house") is now a fully integrated part of the main house while maintaining a self-contained character.
It features pine flooring, a beautiful marble fireplace, and a staircase hidden behind a characteristic wall with cabinet doors.
French doors open onto the garden. A deep built-in cupboard houses the Remeha central heating boiler.

FIRST FLOOR – REAR HOUSE

BEDROOM IV
Bedroom with pine flooring and smooth plastered walls. The beautiful original roof structure is fully visible in this room as well.

BATHROOM II
(Guest) bathroom with shower, wall-mounted toilet with concealed cistern, and a sink.

GARAGE

Fully insulated garage with fixed staircase to the first floor and two electric sectional doors, accessible from the street via a right of way.
The garage accommodates two cars and includes extra storage space and an EV charging point.
Access to the rear of the property is available through the garage.
The upper floor of the garage is also fully insulated and has full standing height. Adding dormer windows or roof windows would allow for various additional uses.

GARDEN

Deep, beautifully landscaped garden (recently redesigned), facing the sunny southwest, featuring two terraces and lush plantings.

The terraces offer lovely sunny and shaded spots, surrounded by an abundance of flowers, plants, and shrubs.
This is a truly atmospheric garden with a nearly Provençal feel, enhanced by views of the house and the monumental church tower.

FURTHER INFORMATION

The property is fully modernised and well insulated; electricity, plumbing, and sewage systems were completely replaced in 2005. The electrical system is extensive and includes three-phase power in both the house and the garage;

Windows and frames have been replaced with Win-Twin frames and Ruysdael glass (special monument glass with sound and heat insulation);

All walls are finished with smooth plasterwork;

Authentic features have been preserved or replaced in original style;

Kitchen and sanitary fittings have been updated;

High-end flooring throughout the house: oak floorboards, pine floorboards, and antique bluestone church tiles;

The basement has been fully modernised;

A water softener has been installed;

The property is well insulated and has been awarded energy label A;

Both the house and the basement feature a heat recovery ventilation (WTW) system for optimal comfort.

Features

Air conditioning
Transfer of ownership
Asking Price
€ 1.275.000 k.k.
Status
beschikbaar
Acceptance
in overleg
Construction
Kind of house
Herenhuis
Building type
tussenwoning
Construction period
1556
Energy rating
A
Roof type
zadeldak
Bedrooms
5
Bathrooms
2
Surface Areas And Volume
Living Area
268 m2
Other indoor space
49 m2
Exterior space attached to the buildinge
15 m2
External storage space
65 m2
Volume in cubic meters
1122 m3
Plot Size
374 m2
Facilities
Mechanische ventilatie
Tv kabel
Airconditioning
Aan rustige weg
In centrum
In woonwijk
Beschutte ligging
Baerz & Co Property Brochure

Brochure

Videos

Floor Plans

Gerwig Makelaardij

Dannestraat 7
3621 AE Breukelen

info@gerwig.nl
+31 346 26 25 43

www.gerwig.nl

Information / Viewing request

Dirk Gerwig profile image
Dirk Gerwig
Real Estate Agent

Buying a Luxury Property in Geertruidenberg

Geertruidenberg extends an invitation to those valuing distinguished heritage, tranquil living, and refined services. Its discreet environment appeals to international buyers seeking both community and privacy in a historically rich riverside setting.