Ons kantoor is lid van Baerz & Co Luxury Homes; een internationaal platform dat exclusieve woningmakelaars met elkaar verbindt. Neem contact op met ons secretariaat voor meer informatie over het landelijke aanbod, waarvan u hieronder een selectie kunt bekijken.

Grachtenpand for sale in LEIDEN

LEIDEN Dwars Koornbrugsteeg 8 - 2311 EL The Netherlands


Michiel de Jong RM profile image
Michiel de Jong RM
Real Estate Agent
+31 715161000
info@graalmakelaardij.nl

Graal Makelaardij

Living area
332m2
Plot size
204m2
Bedrooms
8

Description

A beautiful home in a prime location with a stunning view!

This beautiful monumental property is located in the heart of Leiden. Originally, the house consisted of two front houses overlooking the Rhine and a rear house with an alleyway entrance. The current owners have combined them into one, offering a wealth of possibilities. Not only in terms of living space, but also in terms of layout:

- There are no fewer than seven bedrooms, five of which each have their own bathroom. No queues for showers in the morning, and overnight guests can also enjoy their own time in the morning.

- Ample outdoor space, a rare commodity in the city center. In addition to the spacious roof terrace adjacent to the kitchen/diner, there are two more roof terraces.

- A paradise for food and cooking enthusiasts. Not only because of the very spacious kitchen/diner and the fully equipped second kitchen, but especially because of the location: a butcher, (French) baker, Asian grocery store, cheese shop, cooking shop, wine shops, and much more are within walking distance. And even more importantly: there's a market right outside on Wednesdays and Saturdays!

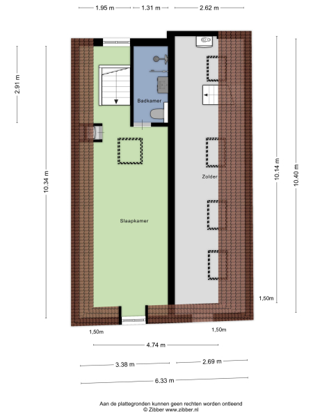
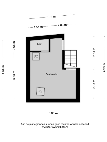
- (A great deal of) storage space. Not only is there a basement currently used as a workshop, but also a cellar. And then there's a very spacious attic. These add another dimension to the 332 m² of living space.

The house is large with spacious rooms, high ceilings, and plenty of natural light, yet it's laid out in such a way that every space feels homely. It takes a little getting used to, but that's precisely what makes the house so charming and more than worth discovering for yourself.
SPECIAL FEATURES

- National monument (subsidy options available!)
- Protected cityscape
- Ouderdomsclausule applies
- Independent technical inspection available
- The house will be converted into a single apartment by means of a Splitsingsakte

Features

Transfer of ownership
price
€ 1.375.000 k.k.
Status
beschikbaar
Acceptance
in overleg
Construction
Kind of house
Grachtenpand
Building type
tussenwoning
Construction period
1650
Roof type
samengesteld dak
Bedrooms
8
Bathrooms
5
Surface Areas And Volume
Living area
332 m2
Other indoor space
49 m2
Exterior space attached to the building
26 m2
Volume in cubic meters
1400 m3
Plot size
204 m2
facilities
Mechanische ventilatie
Tv kabel
Rookkanaal
Glasvezel kabel
Aan water
In centrum
In woonwijk
Vrij uitzicht
Baerz & Co Property Brochure

Brochure

Information / Viewing request

Videos

Photos

Floor Plans