Baerz & Co is een landelijk samenwerkingsverband van zorgvuldig geselecteerde boutique luxury makelaars. Samen vormen wij één netwerk, met één gedeeld aanbod. De woningen die u op onze website ziet, zijn afkomstig van alle aangesloten kantoren binnen Baerz & Co. Daardoor is niet ieder object rechtstreeks door ons kantoor in verkoop, maar door een gespecialiseerde collega binnen ons netwerk. Heeft u een woning gevonden die u aanspreekt en wilt u meer informatie? Dan brengen wij u graag persoonlijk in contact met de betreffende verkoopmakelaar, zodat u direct en zorgvuldig wordt begeleid.

OLDENZAAL
Hoge Haerlaan 29 - 7573 BV
Netherlands

Dirk Gerwig profile image
Dirk Gerwig
Real Estate Agent
€1,295,000 k.k.
Living Area
244m2
Plot Size
751m2
Bedrooms
5

Description

Wonen op een toplocatie in Oldenzaal; Deze onder architectuur gebouwde fantastische jaren ’30-woning uit 1928 combineert de grandeur van toen met het comfort van nu. De eerste aanblik is al om verliefd op te worden. De karakteristieke uitstraling wordt binnen versterkt door een heerlijke lichtinval en de prachtige bewaarde authentieke details.

Wonen aan de Hoge Haerlaan betekent genieten van rust en ruimte, met alle dagelijkse voorzieningen binnen handbereik. Vanuit het huis wandel je zo het buitengebied van Oldenzaal in, terwijl je binnen enkele minuten in de levendige binnenstad staat.

Indeling:
Blijvend uitzicht over het buitengebied;
Begane grond: Na de overdekte entree kom je via de vestibule met garderobe binnen in een ruime hal. De hal geeft toegang tot alle ruimtes op de begane grond; de eerste kamer met een mooie erker momenteel ingericht als thuiskantoor; het toilet met fonteintje; de woonkamer; de woonkeuken en het achter portaaltje. Het mooie trappenhuis, met bordestrappen geeft toegang eerste etage

De ruime woonkamer heeft door de vele raampartijen en de karakteristieke erker een prachtige lichtinval. Vanuit de aangrenzende serre is er blijvend vrij uitzicht over het weiland. Zowel vanuit de woonkamer als vanuit de serre openen openslaande tuindeuren naar de royale tuin.

Sfeervolle woonkeuken & buitenleven;
Vanuit de hal bereik je de ruime, sfeervolle keuken, met openslaande deuren naar de tuin. De keuken is uitgerust met diverse inbouwapparatuur, waaronder een 6-pits gasfornuis met oven, afzuigkap, combi- oven, koelkast, vriezer, vaatwasser en een Quooker. Vanuit de keuken bereik je de ruime kelder (met stahoogte) en een praktische bijkeuken met extra aanrechtblad, spoelbak en aansluitingen voor wasmachine en droger. Vanuit de bijkeuken betreedt u het heerlijk overdekte terras met gezellige houtkachel en terrasverwarming. De mooi aangelegde tuin biedt volop groen, privacy en meerdere terrassen om op elk moment van de dag van de zon te genieten.
De ruime garage biedt veel opbergruimte en een plek voor een auto.

Slapen met uitzicht;
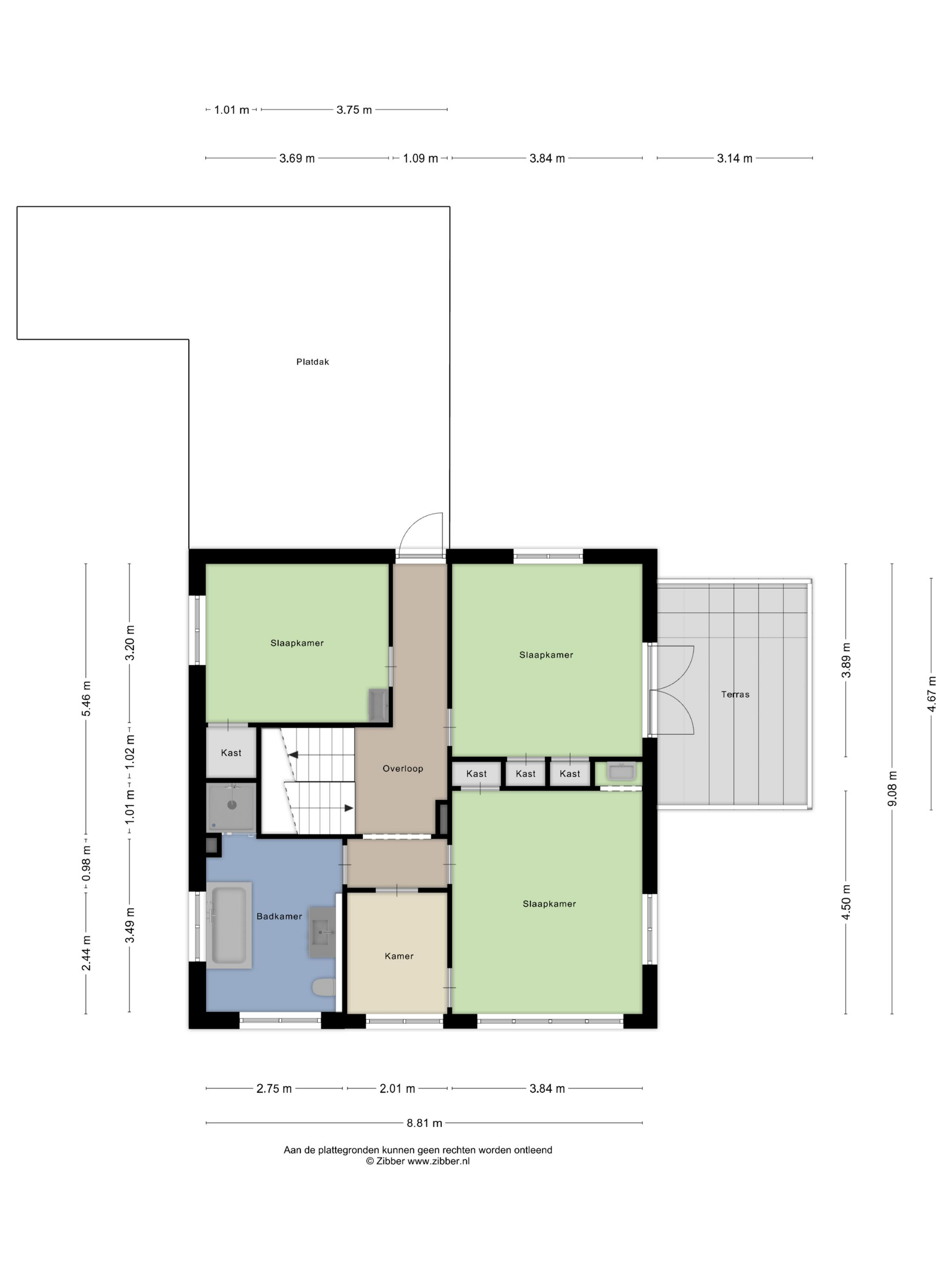
Eerste verdieping: het mooie trappenhuis geeft toegang tot een ruime overloop waaraan de eerste drie slaapkamers liggen, allen voorzien van wastafels en vaste kasten. Vanuit de master-bedroom kom je tevens op een ruim balkon waar je prachtig uitkijkt over het buitengebied van Oldenzaal. Grenzend aan de overloop vind je de eerste ruime badkamer welke is voorzien van een wastafel met wastafelmeubel, toilet, ligbad en doucheruimte. De kleinste kamer op de eerste etage is ingericht als kastenkamer en heeft een verbinding met de voorste slaapkamer.

Tweede verdieping: de bordestrap geeft vervolgens toegang tot een mooie sfeervolle tweede verdieping met twee slaapkamers, een badkamer met wastafelmeubel en douche. Daarnaast is er dankzij de knieschotten op de slaapkamers en de overloop voldoende opbergruimte.

Bijzonderheden:
* Bouwjaar 1928
* Kaveloppervlakte 751 m² * Woonoppervlakte 244 m²
* Onder architectuur gebouwd door C. Hardeman, stadsarchitect van Oldenzaal;
* Vrijstaande karakteristieke jaren ’30 woning;
* De woning is volledig gerenoveerd in 2003 en voorzien van vele authentieke sfeerelementen;
* Voorzien van 5 slaapkamers;
* Vloerverwarming in de keuken, bijkeuken en badkamer;
* Ruime woonkeuken met luxe inbouwapparatuur;
* Voorzien van 2 badkamers;
* Energielabel C;
* Tuin rondom, gelegen op het zuidoosten;
* Bij koop is een waarborgsom/bankgarantie van 10% van de koopsom vereist!
* Interesse in deze woning? Schakel direct uw aankoopmakelaar in. Uw NVM-aankoopmakelaar komt op voor uw belang en bespaart u tijd, geld en zorgen. Adressen van collega NVM-aankoopmakelaars in Twente vindt u op Funda en op de website van nvmtwente.

Disclaimer
De informatie is door ons met de nodige zorgvuldigheid samengesteld, echter aan de inhoud hiervan kunnen geen rechten worden ontleend. Alle opgegeven maten en oppervlakten zijn indicatief, kunnen afwijken van de werkelijke situatie en zijn uitsluitend bedoeld om een indruk te geven van de indeling. Onzerzijds wordt geen enkele aansprakelijkheid aanvaard voor enige onvolledigheid, onjuistheid of anderszins, dan wel de gevolgen daarvan.

Features

Solar panels
Transfer of ownership
Asking Price
€ 1.295.000 k.k.
Status
beschikbaar
Acceptance
in overleg
Construction
Kind of house
Eengezinswoning
Building type
vrijstaande woning
Construction period
1928
Energy rating
C
Roof type
tentdak
Bedrooms
5
Bathrooms
2
Surface Areas And Volume
Living Area
244 m2
Other indoor space
11 m2
Exterior space attached to the buildinge
34 m2
External storage space
29 m2
Volume in cubic meters
948 m3
Plot Size
751 m2
Facilities
Tv kabel
Glasvezel kabel
Zonnepanelen
Natuurlijke ventilatie
Aan rustige weg
In woonwijk
Baerz & Co Property Brochure

Brochure

360 Panoramas

360°
360 Panorama - Hoge Haerlaan 29
360°
360 Panorama - Hoge Haerlaan 29
360°
360 Panorama - Hoge Haerlaan 29
360°
360 Panorama - Hoge Haerlaan 29
360°
360 Panorama - Hoge Haerlaan 29
360°
360 Panorama - Hoge Haerlaan 29
360°
360 Panorama - Hoge Haerlaan 29
360°
360 Panorama - Hoge Haerlaan 29
360°
360 Panorama - Hoge Haerlaan 29
360°
360 Panorama - Hoge Haerlaan 29
360°
360 Panorama - Hoge Haerlaan 29
360°
360 Panorama - Hoge Haerlaan 29
360°
360 Panorama - Hoge Haerlaan 29
360°
360 Panorama - Hoge Haerlaan 29
360°
360 Panorama - Hoge Haerlaan 29
360°
360 Panorama - Hoge Haerlaan 29
360°
360 Panorama - Hoge Haerlaan 29
360°
360 Panorama - Hoge Haerlaan 29
360°
360 Panorama - Hoge Haerlaan 29
360°
360 Panorama - Hoge Haerlaan 29
360°
360 Panorama - Hoge Haerlaan 29
360°
360 Panorama - Hoge Haerlaan 29
360°
360 Panorama - Hoge Haerlaan 29
360°
360 Panorama - Hoge Haerlaan 29

Floor Plans

Gerwig Makelaardij

Dannestraat 7
3621 AE Breukelen

info@gerwig.nl
+31 346 26 25 43

www.gerwig.nl

Information / Viewing request

Dirk Gerwig profile image
Dirk Gerwig
Real Estate Agent

Buying a Luxury Property in Oldenzaal

Oldenzaal offers an inviting blend of privacy, cultural richness, and world-class amenities. Its exclusive homes, supportive community, and international outlook attract discerning residents seeking comfort, security, and understated elegance.