Beautiful Country Living with Comfort and Tranquility—Yet Close to the City
That’s exactly what you’ll find in this stunning semi-detached traditional Dutch farmhouse ("stolpboerderij") built in 2005, located along the Slingerdijk near Alkmaar. The moment you drive onto the property, you’ll immediately feel the unique blend of space, luxury, and rural charm.
The home is surrounded by a beautifully landscaped garden, facing south and west, with multiple terraces that allow you to enjoy either sun or shade throughout the day. Thanks to the clever positioning of the terraces, you’ll also enjoy complete privacy. With no fewer than five bedrooms and a modern bathroom, there’s plenty of space for the entire family.
The inviting living room—with views over the manicured garden—and the spacious kitchen together form the heart of the home. In the garden, there’s also a separate guest house, ideal for visitors, a B&B, or use as a home office or hobby space. This is a truly unique location where the best of country living and modern comfort come together.
Surroundings
The home is tucked away behind greenery on the Slingerdijk, on the edge of the Schermerpolder near the picturesque village of Oterleek. Here you live surrounded by peace, nature, and open space—yet the amenities of Alkmaar, Heerhugowaard, and Langedijk are just a short drive away. Major roads towards the Randstad are easily accessible (just 2 minutes to the Alkmaar ring road), and Alkmaar Noord train station is only 15 minutes away by bike. Several primary schools are also within cycling distance. Whether you enjoy biking, hiking, boating, or simply soaking in the views—this is the perfect setting.
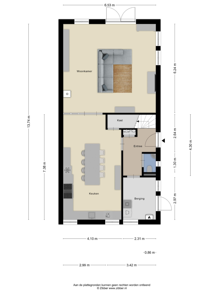
Layout
Upon arrival, you’re greeted by a long driveway and a beautifully landscaped front garden with colorful plants. The entrance leads into a spacious hallway with a staircase, a guest toilet, and access to the generous living room. This cozy and light-filled space features a wood-burning stove, French doors to the garden, and large windows throughout.
The country-style kitchen is equipped with modern built-in appliances and offers enough space for a large dining table, perfect for entertaining. Stylish folding doors can separate the kitchen from the living area if desired. Also on the ground floor is a practical utility room with laundry connections.
The first floor offers three spacious bedrooms and a modern bathroom with a bathtub, walk-in shower, toilet, and double sink. On the landing, you’ll find two large built-in wardrobes offering ample storage.
The second floor includes two additional large bedrooms, perfect for guests, a home office, or a playroom. A loft ladder leads to the attic, providing even more storage space.
Guest House
Next to the main residence is a charming detached guest house with its own living room, open kitchen, bathroom, and a large upstairs bedroom. Ideal for guests, older children, or as a B&B, this space offers a wide range of possibilities. The views from here are simply breathtaking—open fields as far as the eye can see. The municipality has issued a B&B permit for this guest house, and it is highly popular among tourists.
Key Features
Built in 2005, excellently maintained
Very spacious plot with lots of privacy
Multiple terraces offering sun and shade throughout the day
Fully equipped guest house with official B&B permit
Large shed with attic (access via loft ladder) for ample storage
Rural setting yet close to cities and all amenities
In short: A unique opportunity to live in a modern farmhouse that combines the charm of the past with the comforts of today, surrounded by peace, space, and nature, but with the conveniences of city life within easy reach.
Would you like to experience this extraordinary place in person? Contact our office, we’d be delighted to show you around!