Baerz & Co is een landelijk samenwerkingsverband van zorgvuldig geselecteerde boutique luxury makelaars. Samen vormen wij één netwerk, met één gedeeld aanbod. De woningen die u op onze website ziet, zijn afkomstig van alle aangesloten kantoren binnen Baerz & Co. Daardoor is niet ieder object rechtstreeks door ons kantoor in verkoop, maar door een gespecialiseerde collega binnen ons netwerk. Heeft u een woning gevonden die u aanspreekt en wilt u meer informatie? Dan brengen wij u graag persoonlijk in contact met de betreffende verkoopmakelaar, zodat u direct en zorgvuldig wordt begeleid.

VEENENDAAL
Bilzekruid 11 - 3903 GN
Netherlands

Dirk Gerwig profile image
Dirk Gerwig
Real Estate Agent
€985,000 k.k.
Living Area
175m2
Plot Size
571m2
Bedrooms
3

Description

Spacious Detached Home with Office, Large Garden, and a 57 m² Garage

The moment you drive up the driveway, you’ll feel it: peace, abundant space, and quality. This spacious detached home offers approximately 175 m² of living area and sits on a 571 m² plot. It has been impeccably maintained and exudes class from the very first glance. Inside, you’ll find a bright living room, a cozy live-in kitchen, a ground-floor office, and two very large bedrooms. A practical utility room and a second bathroom complete the living comfort. The surprisingly large 57 m² garage offers countless possibilities—from hobby space to storage, or even an additional workspace or bedroom. Surrounding the house is a beautifully landscaped garden with multiple seating areas, mature planting, a pond, and ample privacy. Here, you’ll enjoy outdoor living without sacrificing comfort or accessibility. This home combines solid craftsmanship with functional luxury—an exceptional opportunity for those seeking a tranquil setting with plenty of extra space in reserve.

The Neighborhood

This home is located in the sought-after Petenbos area. You’ll live in a quiet, generously laid-out cul-de-sac with lots of greenery. Primary schools, supermarkets, and sports facilities are all nearby. Nature reserve Prattenburg is within walking/cycling distance, as are Veenendaal’s shopping center and the NS train station. You’ll live freely here, yet never remotely. The surroundings are characterized by tidy, detached homes on generous plots—a pleasant and safe place where neighbors greet each other. With the nearby ring road and the A12, you’re quickly on your way to Utrecht, Arnhem, or Amersfoort.

Ground Floor

The covered entrance leads to a generous hallway with cloak area, utility meter cupboard, staircase, and a neat WC with small washbasin. From the hall—finished with a natural stone floor—you access the living room and the study.

The inviting living room is notably bright thanks to the large bay window at the front and the wide side window. The seating area around the open fireplace offers a cozy spot for long evenings with family or friends. Toward the rear there is space for a large dining area next to the open kitchen. The kitchen features a U-shaped layout with a peninsula, cream-colored fronts, dark worktop, and full suite of built-in appliances: induction hob, slide-out extractor, combi-microwave, oven, fridge-freezer, and dishwasher. Adjoining is the practical utility room with laundry connections, storage, and a back door to the terrace. Finally, there is an additional room on the ground floor—ideal as a home office, hobby room, or playroom. From this room you have internal access to the bathroom—with shower, toilet, and washbasin—convenient for those wishing to live on one level or to host guests.

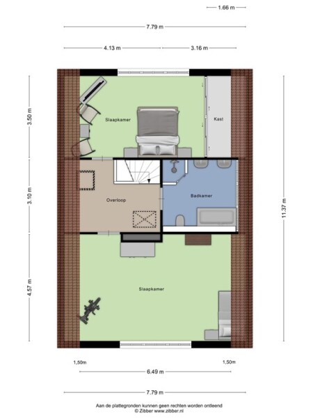
First Floor

The landing on the first floor is surprisingly spacious and provides access to two comfortable bedrooms. The front bedroom is extra large with a view over the quiet street. At the rear is another full-size bedroom with a built-in wall wardrobe. The bathroom is fresh and functional, fitted with a bathtub, separate shower, double washbasin, second toilet, and a large window for abundant daylight.

Second Floor

A loft ladder leads to the attic level: a generous storage attic with standing height in the middle, twin roof windows, and plenty of storage options.

Outdoor Space

The garden all around is immaculately maintained. At the front, the wide driveway offers parking for multiple cars; under the carport your car is sheltered. From here you also have direct access to the garage, with overhead door and side door—a particularly spacious and multifunctional area of no less than 57 m². Ideal for daily use, safely storing bicycles, carrying out DIY projects, or setting up a large work or hobby room with its own entrance. The rear garden is a delight: a large sun terrace with decorative paving, manicured lawn, a pond, and borders full of color and variety. Thanks to mature hedges, trees, and the woodland to the rear, you’ll enjoy peace and privacy. Whether you want to have breakfast outdoors, read under the tree, or host guests on a summer evening—you can do it all here. With direct access from the living room, utility room, and garage, the garden is also extremely practical in layout.

General Information
- Property type: Detached
- Year built: 1997
- Number of rooms: 3
- Number of bedrooms: 2 (potential to expand)
- Number of bathrooms: 2
- Parking: On private driveway
- Features: Dormer / garage
- Garden orientation: Southeast
- Garden access: Side, via the garage, and via the house

Technical Details
- Hot water: Remeha Calenta 40C
- Heating: Remeha Calenta 40C
- Underfloor heating: Ground floor
- Gas fireplace
- Features: Loft
- Natural ventilation: Present
- Insulation: Full—roof / cavity walls / floor
- Double glazing: Throughout
- Connections: Fiber-optic cable
- Window frames: Wood

Would You Like to Take a Look Inside?

For more information about this property, please contact our office in Veenendaal.

You are most welcome! The best impression of this home is, of course, gained during a viewing. We schedule viewings in consultation with both seller and buyer and take ample time so you can explore and experience the property at your leisure.

Note: Every effort has been made to compile this information with the utmost care. No rights can be derived from any inaccuracies or omissions in the data or drawings provided.

Features

Garage
Transfer of ownership
Asking Price
€ 985.000 k.k.
Status
Available
Acceptance
In Concert
Construction
Kind of house
Single Family House
Building type
Detached House
Construction period
1997
Energy rating
B
Roof type
front gable
Bedrooms
3
Bathrooms
2
Surface Areas And Volume
Living Area
175 m2
Other indoor space
57 m2
Exterior space attached to the buildinge
18 m2
Volume in cubic meters
862 m3
Plot Size
571 m2
Facilities
Cable Tv
Fluetube
Fibreopticcable
Garage
Garden
Skylight
Baerz & Co Property Brochure

Brochure

Videos

Gerwig Makelaardij

Dannestraat 7
3621 AE Breukelen

info@gerwig.nl
+31 346 26 25 43

www.gerwig.nl

Information / Viewing request

Dirk Gerwig profile image
Dirk Gerwig
Real Estate Agent

Buying a Luxury Property in Veenendaal

Veenendaal offers a harmonious balance of tranquility, urban sophistication, and diverse amenities. The community values privacy, green living, and international connections, all supported by advanced property services catering to a discerning global clientele.