Ons kantoor is lid van Baerz & Co Luxury Homes; een internationaal platform dat exclusieve woningmakelaars met elkaar verbindt. Neem contact op met ons secretariaat voor meer informatie over het landelijke aanbod, waarvan u hieronder een selectie kunt bekijken.

WILNIS
Oudhuijzerweg 62 - 3648 AD
Netherlands

Dirk Gerwig profile image
Dirk Gerwig
Real Estate Agent
€1,745,000 k.k.
Living Area
330m2
Plot Size
3074m2
Bedrooms
7

Description

Oudhuijzerweg 62 and 62a – A Once-in-a-Lifetime Opportunity in Wilnis!

Sometimes, dreams really do come true: a place that captures your heart the moment you arrive. Where the peaceful sound of water greets you, where the windmill stands tall like a silent guardian, and where every day feels like a holiday. Tucked on the edge of the charming village of Wilnis, accessed via your very own characteristic drawbridge, lie two extraordinary semi-detached homes – a rare find in an enchanting setting.

These two properties share a spacious plot surrounded by water, greenery, and tranquility. Here, you’ll enjoy complete privacy while remaining connected to nature, the nearby village, and major cities just a short drive away. Amsterdam, Utrecht, Hilversum, or Amstelveen? All within reach. But the real question is: will you ever want to leave?

This is your unique chance to purchase two homes for the price of one – ideal for dual living or as a multi-generational residence. The choice is yours.

OUDHUIJZERWEG 62
Let’s begin the tour with the larger home. From the moment you step into the spacious hallway, you’ll know – this is no ordinary house. Light pours in from the skylight above the staircase, and the hallway leads to a cloakroom, stair closet, toilet, and the inviting living room.

The living room is the heart of the home, offering a stunning view of the water behind the property through large sliding glass doors. With its open, airy feel, this space blends comfort and charm. The tiled floor is fitted with underfloor heating, and additional warmth is provided by a convector trench heater and radiators.

At the front, double glass doors open to a versatile space – currently a home office, but easily transformed into a bedroom thanks to the adjacent bathroom with shower and sink. Perfect for ground-floor living or guest accommodation.

The open-plan kitchen boasts a picture-perfect view and is equipped with everything you need: fridge, freezer, cool drawer, dishwasher, combination microwave-oven, induction cooktop, and a Quooker hot water tap. It’s an ideal space for cooking, entertaining, and relaxing.

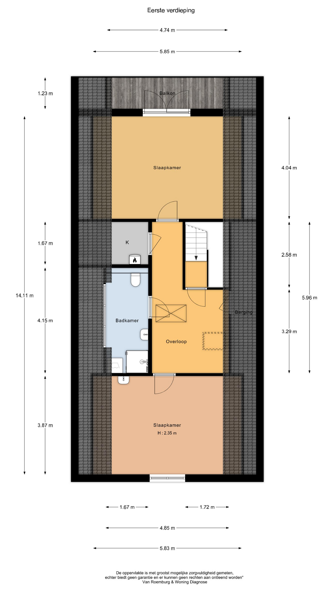
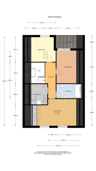
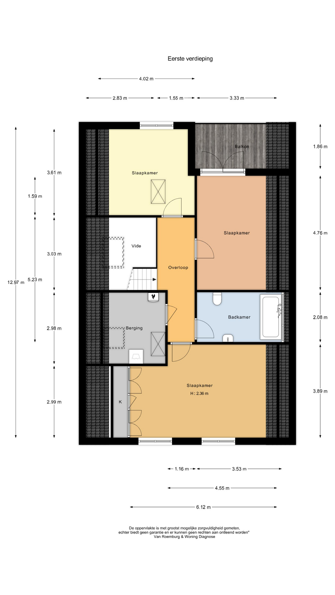
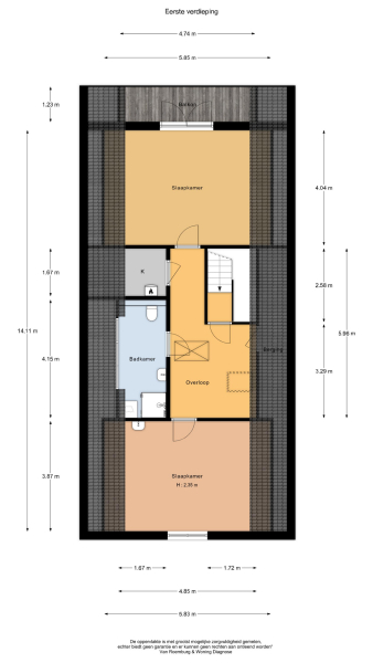
Upstairs, you’ll find three generously sized bedrooms, a laundry room, and a bathroom ready for your personal touch. One bedroom even features French doors to a balcony overlooking the water. Multiple attic spaces provide ample storage, neatly tucked away on the top floor.

Step outside through the kitchen to the covered terrace – your go-to spot for morning coffee or a glass of wine at sunset. The well-maintained garden stretches all the way to the water and offers space for both relaxation and adventure. From here, you can sail to the Vinkeveense Plassen in just 30 minutes.

Key features:

Living area: 180 m²

Other indoor space: 22 m²

Attached outdoor space: 14 m²

Volume: 803 m³

OUDHUIJZERWEG 62A
The second home is just as charming, full of character and potential. You’re welcomed into a spacious hallway and a bright living room with large windows, a cozy gas fireplace, and warm wood laminate flooring. The rear sunroom is a true highlight: bright, inviting, and offering sliding doors to the garden – perfect for year-round enjoyment.

The open kitchen is functional and inviting, fitted with an induction cooktop, fridge, freezer, dishwasher, and combination microwave-oven. Toward the rear, you’ll find a large bedroom (currently used as a walk-in closet) with a sink, a generous pantry, and a second toilet.

Upstairs, two large bedrooms and a bathroom await. The rear bedroom features French doors opening to a balcony with breathtaking views of the water and surrounding countryside. This is a place you’ll never want to leave.

This home also includes a laundry room with central heating system, washing machine/dryer connections, and extra storage. An attic is accessible via pull-down stairs.

The rear of the home includes an integrated garage, accessible from the hallway and the garden. At the front, four large double doors open to allow indoor parking for two vehicles.

Key features:

Living area: 150 m²

Other indoor space: 38 m²

Attached outdoor space: 6 m²

Volume: 656 m³

The shared backyard is a green oasis brimming with possibilities – from sunbathing on the terrace and taking a dip in the water, to mooring your boat or enjoying a good book under the waterside canopy. The garden features a large shed for tools, old animal enclosures (ideal for chickens, sheep, or goats), and even a boathouse with a hoisting installation ready for your sloop.

And there’s more: a hidden bonus lies at the back – an extra plot accessible via a small bridge. Whether you envision keeping animals, starting a vegetable garden, planting an orchard, or creating a peaceful retreat – the space and freedom are here.

An Extraordinary Lifestyle Awaits
This dual residence offers not just space and comfort, but also beauty, freedom, and endless potential. Whether you’re looking to live with multiple generations, set up a home office or studio, or simply find an exceptional place to call home – this opportunity is truly one-of-a-kind. Come see it for yourself. Let the views mesmerize you, feel the peace, and envision the possibilities.

About Wilnis
Wilnis is a village in the province of Utrecht, part of the municipality of De Ronde Venen.

Key features:

Location: In the green heart of the Netherlands, surrounded by polders and waterways. Ideally situated near Utrecht and Amsterdam.

Nature: Known for its rural charm and scenic walking and cycling routes. Surrounded by water, including the Amstel River.

Living environment: A blend of modern and historic homes, popular with families seeking peace and easy access to the city.

Amenities: Schools, shops, and sports facilities are available. The renowned Veldzijde Golf Course is within walking distance.

Water activities: The nearby Vinkeveense Plassen offer crystal-clear water for swimming, boating, and water sports.

In short: Wilnis is the perfect place to enjoy the peaceful beauty of the Dutch countryside without sacrificing access to urban convenience.

Features

Transfer of ownership
Asking Price
€ 1.745.000 k.k.
Status
beschikbaar
Acceptance
in overleg
Construction
Kind of house
Villa
Building type
geschakelde woning
Construction period
1975
Energy rating
C
Roof type
mansarde dak
Bedrooms
7
Bathrooms
3
Surface Areas And Volume
Living Area
330 m2
Other indoor space
60 m2
Exterior space attached to the buildinge
20 m2
Volume in cubic meters
1459 m3
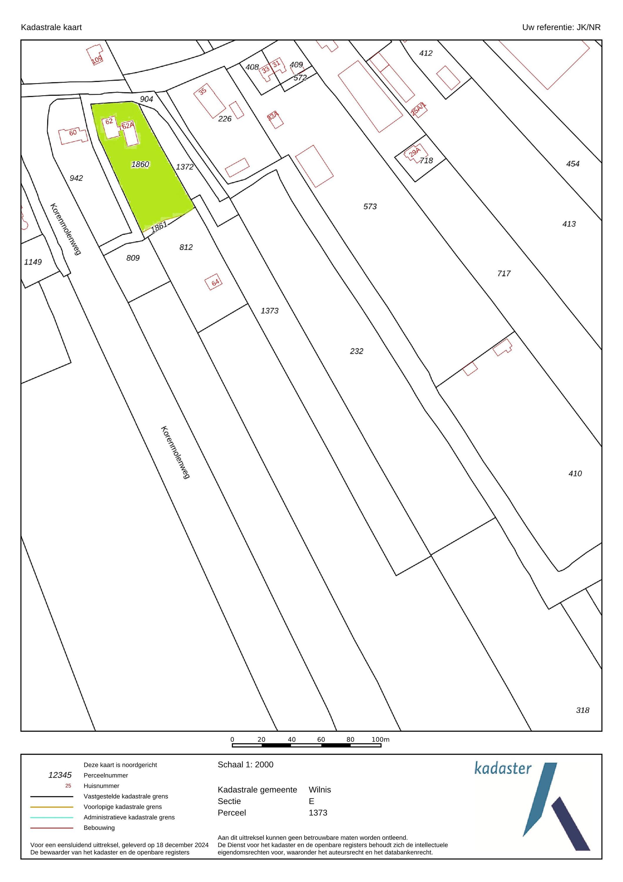
Plot Size
3074 m2
Facilities
Aan water
Aan rustige weg
Vrij uitzicht
Aan vaarwater
Baerz & Co Property Brochure

Brochure

Videos

Floor Plans

Gerwig Makelaardij

Dannestraat 7
3621 AE Breukelen

info@gerwig.nl
+31 346 26 25 43

www.gerwig.nl

Information / Viewing request

Dirk Gerwig profile image
Dirk Gerwig
Real Estate Agent

Buying a Luxury Property in Wilnis

Wilnis attracts an international community of discerning residents, offering refined amenities and a peaceful lifestyle. With expert advisory services, exclusive properties, and cultural richness, Wilnis promises enduring appeal for sophisticated homeowners and investors.