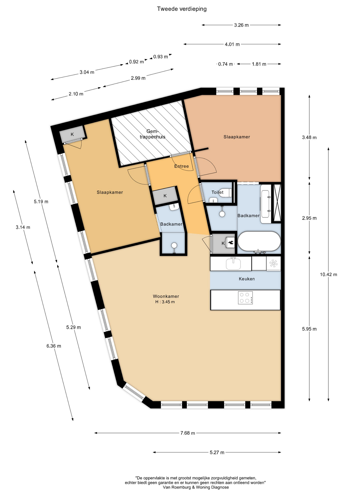
L’Appartement Amsterdam propose un lieu de vie prêt à emménager de 87 m², situé au deuxième étage d’un immeuble emblématique à l’angle de Nieuwe Spiegelstraat et Keizersgracht. Cet appartement contemporain atteint un niveau de vie en ville rarement égalé, associant une vue panoramique sur le canal à un intérieur raffiné et une excellente efficacité énergétique, attestée par son label A+. Les larges fenêtres encadrent la vue historique sur le canal, baignant l’espace de lumière naturelle, tandis qu’une rénovation soignée confère un luxe discret à chaque recoin.
Le séjour ouvert se distingue par sa hauteur sous plafond, instaurant une impression d’espace et de calme. Au centre, une cuisine moderne avec îlot en travertin et électroménager haut de gamme, incluant une plaque à induction avec hotte intégrée et un Quooker, offre un cadre idéal pour le quotidien et recevoir. Deux grandes chambres disposent chacune de la climatisation et de leur salle de bains privative, embellies par des robinetteries en laiton soigneusement choisies et du carrelage zellige. Les espaces de rangement témoignent du même soin du détail, avec un bon d’achat de 10 000 € permettant une personnalisation supplémentaire.
À quelques pas du Rijksmuseum et du cœur culturel de la ville, cet appartement bénéficie d’un terrain en pleine propriété, vous affranchissant de toute préoccupation liée à un bail emphytéotique. Entièrement rénové avec des matériaux de qualité, isolé par du double et du vitrage HR, équipé d’une ventilation mécanique et d’un chauffage central, il incarne un havre de paix au-dessus de la ville. Sa situation, son orientation et son atmosphère concentrent le meilleur de la vie amstellodamoise.
Découvrez Amsterdam avec Baerz, votre conseiller et chasseur immobilier personnel de confiance
Pour naviguer le marché de prestige d’Amsterdam, il faut s’appuyer sur une connaissance pointue de la ville, la discrétion et des compétences avérées en négociation. Les meilleurs conseillers accèdent à des biens confidentiels, expliquent les subtilités réglementaires et identifient la valeur où l’opportunité ne se montre que rarement. Les équipes conseil opèrent une sélection poussée et assurent la représentation, renforçant votre position, assurant le bon déroulé de la transaction et veillant au respect de votre vie privée à chaque étape.
Évitez les pièges courants
Les acheteurs internationaux perdent souvent un temps précieux à naviguer entre des annonces en ligne dupliquées, obsolètes ou trompeuses, d’autant que près de 30% des propriétés de luxe ne sont jamais mises sur le marché.
Les agents du vendeur représentent les intérêts du vendeur, pas les vôtres, et une simple demande d’information peut entraîner votre inscription comme “client” auprès d’une agence sans votre consentement.
Avec Baerz Property Finders & Advisors, vous évitez totalement ces écueils.
Nous agissons exclusivement en votre nom, en vous offrant une représentation indépendante, des conseils transparents et un accès à toutes les propriétés disponibles, y compris les opportunités privées et off-market que les autres ne voient jamais.
Curieux de savoir comment obtenir votre propre Conseiller Immobilier Personnel ? Contactez-nous pour découvrir comment nous pouvons défendre vos intérêts et vous ouvrir l’accès à l’ensemble du marché.