Cette maison mitoyenne à Delft offre une surface habitable de 176 m² sur une parcelle généreuse de 254 m², constituant un véritable havre pour les familles en quête d'espace et de convivialité. La propriété s’inscrit dans une rue recherchée et adaptée aux enfants, agrémentée de jardins paysagers à l’avant et d’une ambiance communautaire vivante. Résolument contemporaine, la maison séduit par sa conception durable, dotée de panneaux solaires en toiture, du chauffage urbain et d'une classe énergétique A.
Le rez-de-chaussée accueille avec une allée privée et une terrasse ensoleillée qui ouvre sur un intérieur lumineux. Une porte industrielle vitrée dévoile un vaste séjour baigné de lumière, prolongeant naturellement vers une cuisine ouverte avec îlot central et équipements intégrés. Des portes coulissantes permettent de prolonger l’espace de vie sur la terrasse, tandis que la vue sur le jardin arrière installe un dialogue doux entre intérieur et extérieur. Exposée plein sud, la parcelle offre une grande terrasse, une serre, un abri en bois et une jetée au bord de l’eau.
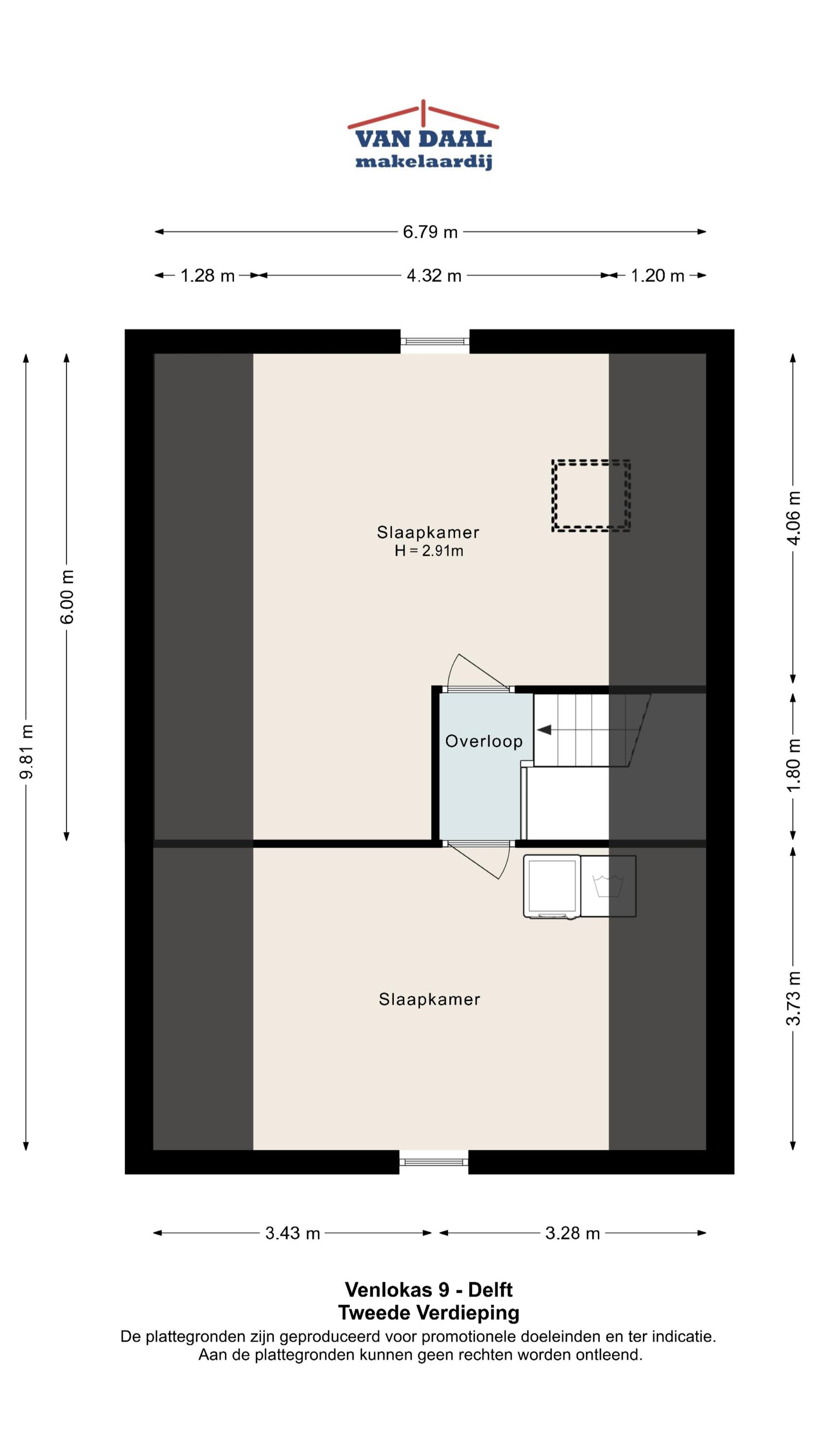
Un escalier baigné de lumière dessert le premier étage, qui accueille quatre chambres paisibles, toutes bénéficiant de portes surélevées et d’un apport lumineux équilibré. La salle de bains centrale dispose d'une douche de plain-pied, d'une baignoire et d'une double vasque, complétée par un second WC séparé pour plus de confort. Le deuxième niveau s’avère modulable, proposant une grande cinquième chambre et une sixième pièce polyvalente, actuellement aménagée pour la buanderie et le rangement, mais prête à accueillir une seconde salle de bains si besoin. Les menuiseries en PVC avec vitrage HR++ soulignent l’attention portée à l’isolation, secondée par une ventilation équilibrée dans toute la maison.
À quelques minutes à vélo du centre de Delft et de la gare, avec écoles et crèches à proximité, cette maison mitoyenne allie praticité et inspiration discrète, répondant aux attentes d’une grande famille dans un cadre pensé pour l’art de vivre contemporain.
Découvrez Delft avec Baerz, votre conseiller et chasseur immobilier personnel de confiance
Se repérer sur ce marché exclusif requiert discrétion et expertise. Les conseillers expérimentés donnent accès à des biens confidentiels, mènent des négociations avisées et maîtrisent parfaitement le contexte culturel et réglementaire local. Leur accompagnement est essentiel pour accéder à un inventaire rare et sécuriser chaque étape.
Évitez les pièges courants
Les acheteurs internationaux perdent souvent un temps précieux à naviguer entre des annonces en ligne dupliquées, obsolètes ou trompeuses, d’autant que près de 30% des propriétés de luxe ne sont jamais mises sur le marché.
Les agents du vendeur représentent les intérêts du vendeur, pas les vôtres, et une simple demande d’information peut entraîner votre inscription comme “client” auprès d’une agence sans votre consentement.
Avec Baerz Property Finders & Advisors, vous évitez totalement ces écueils.
Nous agissons exclusivement en votre nom, en vous offrant une représentation indépendante, des conseils transparents et un accès à toutes les propriétés disponibles, y compris les opportunités privées et off-market que les autres ne voient jamais.
Curieux de savoir comment obtenir votre propre Conseiller Immobilier Personnel ? Contactez-nous pour découvrir comment nous pouvons défendre vos intérêts et vous ouvrir l’accès à l’ensemble du marché.