Ons kantoor is lid van Baerz & Co Luxury Homes; een internationaal platform dat exclusieve woningmakelaars met elkaar verbindt. Neem contact op met ons secretariaat voor meer informatie over het landelijke aanbod, waarvan u hieronder een selectie kunt bekijken.

HAAFTEN
Steenweg 2 - 4175 AD
Les Pays-Bas

Jeanette van Haaften profile image
Jeanette van Haaften
Real Estate Agent
€1,500,000 k.k.
Surface habitable
437m2
Superficie du terrain
1930m2
Chambres
6

Description

La Woonboerderij Haaften incarne une parfaite harmonie entre tranquillité, espace et durabilité. Cette ferme de type T, transformée par un architecte et labellisée A++, propose une surface habitable de 437 m², composés de six chambres et trois salles de bains, le tout sur un terrain de 1 930 m². La modularité de la propriété convient aussi bien à la vie intergénérationnelle qu'à l’intégration d’espaces professionnels, s’exprimant à travers deux salons, une bibliothèque et plusieurs zones de travail.

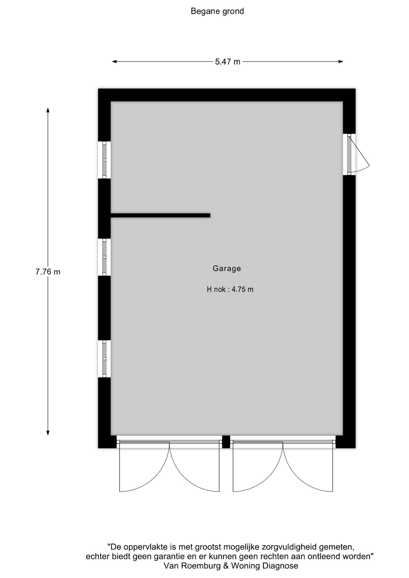
L’accès par portail à commande à distance révèle un jardin privé et paysagé ainsi qu’un garage double isolé de 42 m², pouvant accueillir plusieurs véhicules. L’entrée principale donne sur un séjour lumineux, tourné vers le jardin, où le plafond à poutres de près de trois mètres de hauteur et les fenêtres basses à volets intérieurs expriment une élégance discrète. Le chauffage au sol, une cheminée en pierre naturelle et un carrelage artisanal sur mesure enrichissent le standing du lieu.

La cuisine contemporaine, dotée de plans de travail en granit, d’un îlot central luxueux et d’équipements électroménagers récents haut de gamme, s’ouvre sur une terrasse estivale ombragée par de grands platanes. La suite parentale du rez-de-chaussée dispose de portes-fenêtres donnant sur le jardin, de nombreux rangements ainsi que d’une salle de bains équipée d'une douche à l’italienne, de deux vasques et d'un bidet. L’ensemble est complété par trois autres chambres polyvalentes, une buanderie et deux salles de bains supplémentaires. À l’étage, une bibliothèque baignée de lumière, un espace atelier flexible et d’autres chambres épousent la philosophie du confort et de l’intimité propre à la maison.

L’approche durable est assurée grâce à 46 panneaux solaires, des vitrages haute performance, une isolation complète et une pompe à chaleur Nefit. Système d’alarme et serrures sécurisées garantissent la sérénité. Située au calme d’une impasse, la Woonboerderij Haaften se trouve à deux pas des sentiers naturels en bord de Waal et des réserves avoisinantes, tout en offrant un accès aisé à Utrecht et à l’aéroport d’Eindhoven. Une propriété de qualité intemporelle, dotée d’une rare assurance tranquille.

Découvrez Haaften avec Baerz, votre conseiller et chasseur immobilier personnel de confiance

Faire appel à un spécialiste donne accès à un marché rare et confidentiel. Les conseillers locaux ouvrent l’accès aux offres privées, orientent avec connaissance du terrain les négociations et supervisent la vérification des biens patrimoniaux. Leur savoir-faire est précieux pour les acheteurs internationaux et les introductions dans les réseaux fermés de la région.

Évitez les pièges courants

Les acheteurs internationaux perdent souvent un temps précieux à naviguer entre des annonces en ligne dupliquées, obsolètes ou trompeuses, d’autant que près de 30% des propriétés de luxe ne sont jamais mises sur le marché.
Les agents du vendeur représentent les intérêts du vendeur, pas les vôtres, et une simple demande d’information peut entraîner votre inscription comme “client” auprès d’une agence sans votre consentement.
Avec Baerz Property Finders & Advisors, vous évitez totalement ces écueils.
Nous agissons exclusivement en votre nom, en vous offrant une représentation indépendante, des conseils transparents et un accès à toutes les propriétés disponibles, y compris les opportunités privées et off-market que les autres ne voient jamais.

Curieux de savoir comment obtenir votre propre Conseiller Immobilier Personnel ? Contactez-nous pour découvrir comment nous pouvons défendre vos intérêts et vous ouvrir l’accès à l’ensemble du marché.

Caractéristiques

Panneaux solaires
Alarm system
Transfert de propriété
Prix demandé
€ 1.500.000 k.k.
Statut
beschikbaar
Acceptation
in overleg
Construction
Type de maison
Woonboerderij
Type de bâtiment
vrijstaande woning
Période de construction
2002
Classe énergétique
A++
Type de toit
samengesteld dak
Chambres
6
Salles de bains
3
Surfaces et volumes
Surface habitable
437 m2
Autre espace intérieur
55 m2
Espace extérieur attenant au bâtiment
29 m2
Volume en mètres cubes
1700 m3
Superficie du terrain
1930 m2
Équipements
Mechanische ventilatie
Alarminstallatie
Rookkanaal
Dakraam
Glasvezel kabel
Zonnepanelen
Natuurlijke ventilatie
Aan rustige weg
Beschutte ligging
Baerz & Co Property Brochure

Brochure

Vidéos

Panoramas 360

360°
360 Panorama - Steenweg 2
360°
360 Panorama - Steenweg 2
360°
360 Panorama - Steenweg 2
360°
360 Panorama - Steenweg 2
360°
360 Panorama - Steenweg 2
360°
360 Panorama - Steenweg 2
360°
360 Panorama - Steenweg 2

Bijzonder Wonen Makelaardij

Heilige Geeststraat, 11
5301CP Zaltbommel

info@bijzonderwonen.com
+31 41 868 00 50

www.bijzonderwonen.com

Demande d'information / de visite

Jeanette van Haaften profile image
Jeanette van Haaften
Real Estate Agent