Ons kantoor is lid van Baerz & Co Luxury Homes; een internationaal platform dat exclusieve woningmakelaars met elkaar verbindt. Neem contact op met ons secretariaat voor meer informatie over het landelijke aanbod, waarvan u hieronder een selectie kunt bekijken.

ROTTERDAM
Plasoord 5 - 3054 LJ
Les Pays-Bas

Joris van Oosten profile image
Joris van Oosten
Real estate agent
€1,595,000 k.k.
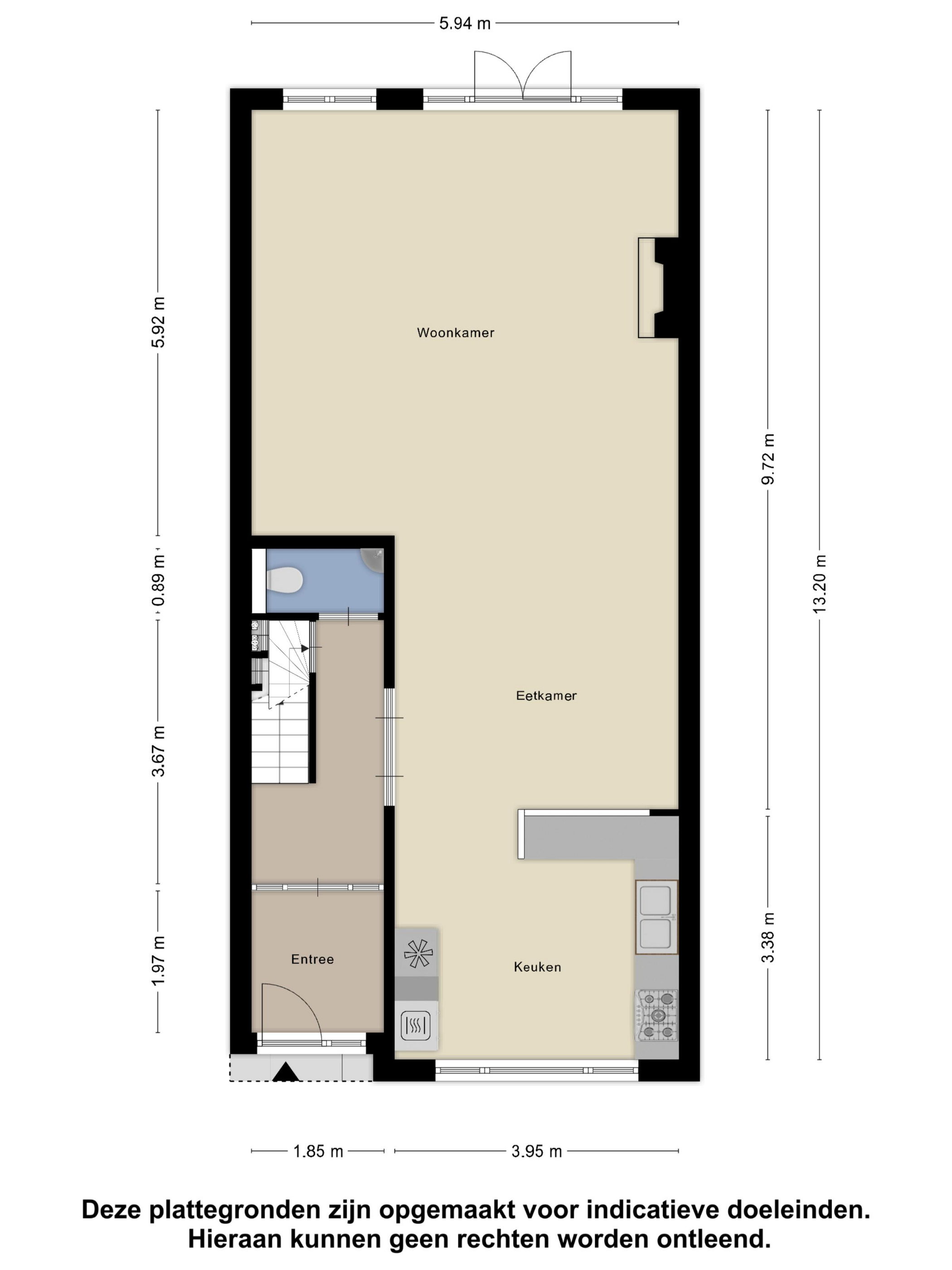
Surface habitable
234m2
Superficie du terrain
197m2
Chambres
6

Description

Le Herenhuis Rotterdam se dresse là où l’eau rencontre la ville, offrant une expérience immersive au bord de l’eau, le monde à vos pieds. Cette résidence de 234 m², édifiée en 1927, occupe un terrain privé de 197 m² en première ligne sur le Bergse Voorplas, avec un amarrage pour votre sloop à seulement quelques pas de la terrasse. L’orientation nord-est de la propriété et un jardin de plus de 20 mètres de profondeur garantissent de longues heures d’ensoleillement et des vues paisibles, à quelques instants du centre du village de Hillegersberg et à seulement 20 minutes à vélo de la vie culturelle de Rotterdam.

L'intérieur se déploie sur quatre niveaux. Le rez-de-chaussée accueille par des soubassements en marbre, des sols en granit, des vitraux et un séjour s’étendant sur près de 6 mètres de largeur. Deux conduits solaires baignent la pièce à vivre prolongée de lumière naturelle, menant jusqu’à la terrasse du jardin en bord d’eau. La cuisine ouverte à l’avant facilite les réceptions, tandis que la cheminée à gaz offre chaleur et convivialité. À l’étage, la suite parentale surplombe la terrasse et les eaux, accompagnée de deux chambres côté rue et d’une salle de bain exclusive. Le deuxième étage propose des chambres mansardées avec lucarnes et une seconde salle de bain, tandis que le sous-sol à plafond haut offre un espace polyvalent dédié à la vie, au travail ou aux loisirs, avec également une troisième salle de bain.

Les éléments de durabilité incluent 14 panneaux solaires, des menuiseries en bois dur à double vitrage et une certification énergétique de classe B. Un système moderne de chauffage et d’eau chaude, ainsi que le renforcement des fondations effectué entre 2013 et 2014, ajoutent à la sérénité du lieu. Cette villa de luxe à vendre à Rotterdam est une demeure discrète pour un art de vivre au bord de l’eau, reliée à la culture et ancrée dans une intimité intemporelle.

Découvrez Rotterdam avec Baerz, votre conseiller et chasseur immobilier personnel de confiance

Se repérer sur le marché dynamique de Rotterdam requiert des conseillers chevronnés alliant expertise locale et service international. Un accès discret aux biens confidentiels, des stratégies de négociation ciblées et une maîtrise réglementaire approfondie permettent aux acquéreurs et vendeurs exigeants de prendre des décisions avisées. Ce savoir-faire optimise le potentiel d’investissement et préserve vos intérêts à chaque étape.

Évitez les pièges courants

Les acheteurs internationaux perdent souvent un temps précieux à naviguer entre des annonces en ligne dupliquées, obsolètes ou trompeuses, d’autant que près de 30% des propriétés de luxe ne sont jamais mises sur le marché.
Les agents du vendeur représentent les intérêts du vendeur, pas les vôtres, et une simple demande d’information peut entraîner votre inscription comme “client” auprès d’une agence sans votre consentement.
Avec Baerz Property Finders & Advisors, vous évitez totalement ces écueils.
Nous agissons exclusivement en votre nom, en vous offrant une représentation indépendante, des conseils transparents et un accès à toutes les propriétés disponibles, y compris les opportunités privées et off-market que les autres ne voient jamais.

Curieux de savoir comment obtenir votre propre Conseiller Immobilier Personnel ? Contactez-nous pour découvrir comment nous pouvons défendre vos intérêts et vous ouvrir l’accès à l’ensemble du marché.

Caractéristiques

Transfert de propriété
Prix demandé
€ 1.595.000 k.k.
Statut
beschikbaar
Acceptation
in overleg
Construction
Type de maison
Herenhuis
Type de bâtiment
tussenwoning
Période de construction
1927
Classe énergétique
B
Type de toit
zadeldak
Chambres
6
Salles de bains
3
Surfaces et volumes
Surface habitable
234 m2
Autre espace intérieur
0 m2
Espace extérieur attenant au bâtiment
18 m2
Volume en mètres cubes
829 m3
Superficie du terrain
197 m2
Équipements
Mechanische ventilatie
Tv kabel
Buitenzonwering
Natuurlijke ventilatie
Aan water
Aan rustige weg
In woonwijk
Vrij uitzicht
Aan vaarwater
Baerz & Co Property Brochure

Brochure

Vidéos

J.J. Van Oosten Makelaardij BV

Straatweg 225
3054 AG Rotterdam

info@vanoostenmakelaardij.nl
+31 10 422 11 00

www.vanoostenmakelaardij.nl

Demande d'information / de visite

Joris van Oosten profile image
Joris van Oosten
Real estate agent