Baerz & Co is een landelijk samenwerkingsverband van zorgvuldig geselecteerde boutique luxury makelaars. Samen vormen wij één netwerk, met één gedeeld aanbod. De woningen die u op onze website ziet, zijn afkomstig van alle aangesloten kantoren binnen Baerz & Co. Daardoor is niet ieder object rechtstreeks door ons kantoor in verkoop, maar door een gespecialiseerde collega binnen ons netwerk. Heeft u een woning gevonden die u aanspreekt en wilt u meer informatie? Dan brengen wij u graag persoonlijk in contact met de betreffende verkoopmakelaar, zodat u direct en zorgvuldig wordt begeleid.

AMSTERDAM
Blauwburgwal 18 H - 1015 AT
Nederland

Dirk Gerwig profile image
Dirk Gerwig
Real Estate Agent
€3.950.000 k.k.
Woonoppervlakte
239m2
Perceeloppervlakte
90m2
Slaapkamers
3

Omschrijving

Blauwburgwal 18, 1015 AT Amsterdam

Op een van de mooiste en rustigste plekken in het hart van Amsterdam ligt dit bijzonder stijlvolle grachtenpand van ca. 239m², verdeeld over vijf verdiepingen en met een zeldzame combinatie van charme, comfort en functionaliteit. Met drie ruime slaapkamers, een multifunctionele bedrijfsruimte op de begane grond en een spectaculaire master suite met eigen wellnessbadkamer biedt deze woning een unieke woonbeleving. Hoogwaardige afwerking (volledig verbouwd in 2020), historische details, een Japans minimalistische uitstraling en een doordachte indeling maken dit pand tot een uitzonderlijk geheel – ideaal voor wie centraal wilt wonen zonder concessies te doen aan rust, luxe en leefruimte.

Bereikbaarheid

Deze prachtige woning bevindt zich op een toplocatie in het centrum van Amsterdam, tussen de karakteristieke Herengracht en het Singel. Dit gedeelte van de grachtengordel is opvallend rustig en charmant, met relatief weinig kantoorpanden en nauwelijks doorgaand verkeer. Hierdoor ervaart u hier het echte stadse wonen, maar dan met een aangenaam gevoel van rust en ruimte. Voor de dagelijkse boodschappen en leuke winkels kunt u terecht in de levendige Haarlemmerstraat en op de Haarlemmerdijk – bekend om hun mix van supermarkten, ambachtelijke speciaalzaken, trendy boetieks en unieke conceptstores. Ook foodliefhebbers kunnen hun hart ophalen: in de buurt bevinden zich talloze hoogwaardige restaurants, gezellige cafés, ambachtelijke koffiezaken en uitnodigende terrassen, die bijdragen aan de levendige sfeer van de wijk. Voor ontspanning en recreatie ligt het populaire Westerpark op loopafstand. Dit veelzijdige stadspark biedt ruimte voor hardlopers, wandelaars, picknickers en cultuurliefhebbers, met regelmatig evenementen, markten en culturele activiteiten. Ook aan gezinnen is gedacht: in de nabije omgeving bevinden zich meerdere goed aangeschreven basisscholen, kinderopvanglocaties en speelplekken, waardoor deze buurt ook zeer geschikt is voor jonge gezinnen. De bereikbaarheid is uitstekend te noemen. Het Centraal Station ligt op slechts vijf minuten loopafstand en biedt aansluiting op het volledige openbaar vervoer-netwerk, met metro’s, trams, treinen, bussen en pontjes naar alle delen van de stad en daarbuiten. Met de auto bereikt u via de Haarlemmerweg eenvoudig de ringweg A10, waardoor ook andere delen van de stad en de regio snel bereikbaar zijn.

Indeling

De entree van het pand biedt toegang tot zowel de woning als de multifunctionele bedrijfsruimte op de begane grond. Deze ruimte is met oog voor detail afgewerkt en ademt karakter dankzij de houten elementen, zichtbare plafondbalken en hoogwaardige materialen. Grote openslaande deuren aan de voorzijde maken het mogelijk om de volledige gevel te openen, wat zorgt voor een uitnodigende uitstraling en veel natuurlijk licht. Binnen is de ruimte praktisch en stijlvol ingedeeld. Een compacte maar luxe uitgevoerde kitchenette, een keurig toilet en een aparte was- en technische ruimte maken deze verdieping compleet. Een groot dakraam aan de achterzijde laat overvloedig daglicht binnen en geeft de ruimte een open en lichte sfeer. U heeft aan de achterzijde tevens toegang tot een buitenruimte. Daarnaast is er een tweede toegangsdeur vanaf de straatzijde, wat extra flexibiliteit biedt voor gebruik als praktijkruimte, atelier of kantoor aan huis.

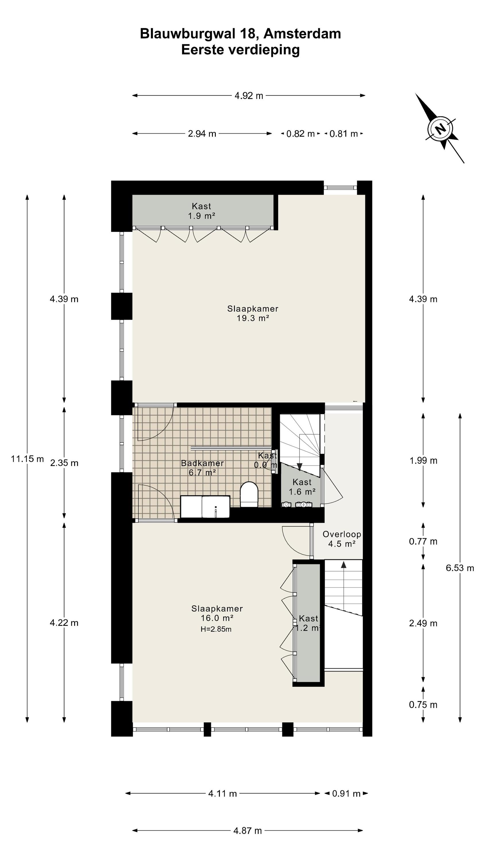
Eerste verdieping

Via een nette overloop met ingebouwde opbergruimte bereikt u de beide slaapkamers. Deze verdieping is afgewerkt met een prachtige houten vloer en hoogwaardige materialen. Aan de voorzijde bevindt zich een royale slaapkamer met een maatwerk kastenwand die naadloos is geïntegreerd in het ontwerp. Grote raampartijen zorgen hier voor een overvloed aan natuurlijk licht en bieden een prachtig uitzicht op de gracht en de historische gevels van de stad. De tweede ruime slaapkamer, gelegen aan de achterzijde van de woning, beschikt eveneens over een ingebouwde kastenwand. Centraal op deze verdieping bevindt zich de modern uitgevoerde badkamer. Deze is uitgerust met een ruime inloopdouche, een strak wastafelmeubel en een stijlvol toilet, allemaal in een luxe en tijdloze afwerking. Wat deze verdieping extra bijzonder maakt, zijn de elegante stalen deuren waarmee beide slaapkamers stijlvol kunnen worden afgesloten – een combinatie van design en functionaliteit die perfect aansluit bij de rest van het interieur.

Tweede verdieping

De tweede verdieping van het pand is volledig ingericht als royale leefruimte, met een prachtige balans tussen comfort, luxe en karakter. Aan de achterzijde bevindt zich de modern uitgevoerde woonkeuken, waar koken en samenkomen centraal staan. De keuken is uitgerust met hoogwaardige inbouwapparatuur: een koelkast, vriezer, combi-oven en magnetron, een spoelbak met Quooker-kraan en een strakke inductiekookplaat met geïntegreerd afzuigsysteem. De vele opbergmogelijkheden zorgen voor een opgeruimde, minimalistische uitstraling. Blikvanger is het centraal geplaatste kookeiland met een gezellig bargedeelte. Aan de voorzijde van de verdieping vindt u het zitgedeelte, waar de grote raampartijen zorgen voor een weids uitzicht over de gracht. De overvloed aan daglicht in combinatie met de warme houten vloer en de rustige afwerking creëren een aangename, uitnodigende sfeer. Via openslaande deuren bereikt u de hal waar zich een separaat toilet bevindt. Vanuit deze hal leidt een vaste trap naar de derde verdieping.

Derde verdieping

De bovenste verdieping van het pand is volledig ingericht als exclusieve master bedroom – een stijlvolle oase van rust, ruimte en comfort. Centraal op deze etage bevindt zich een ruime walk-in closet, voorzien van op maat gemaakte kasten die niet alleen praktisch zijn, maar ook bijdragen aan de serene uitstraling van de ruimte. Aan de voorzijde vindt u de sfeervolle slaapkamer, waar authentieke plafondbalken en een indrukwekkende nokhoogte direct in het oog springen. Hoge ramen tot in de nok zorgen voor een overvloed aan natuurlijk licht en versterken het gevoel van openheid en ruimte. Ook hier zorgen ingebouwde kastenwanden voor een strak en opgeruimd geheel. Aan de achterzijde ligt de luxueus uitgevoerde badkamer, een ware wellnessruimte in eigen huis. Hier treft u een elegant vrijstaand Agape Spoon Woodline ligbad als eye-catcher, een dubbele wastafel met stijlvol meubel, een bijzonder royale inloopdouche, stoomcabine én een ingebouwd ligbed voor ultieme ontspanning. De ruimte is afgewerkt met warme materialen en doordachte details, waaronder ingebouwde verlichting die een gevoel van hotel-luxe oproept. Prachtige houten schuifpanelen dienen zowel als zonwering als sfeervol designelement en zorgen voor privacy zonder het daglicht buiten te sluiten. Het toilet is separaat gesitueerd.

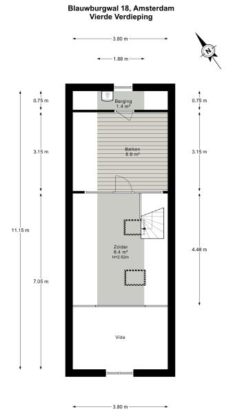
Vierde verdieping

De vierde verdieping, gelegen in de nok van het pand, is momenteel in gebruik als gym. Dankzij de vide is er een directe verbinding met de master bedroom op de verdieping eronder, wat een prettig gevoel van openheid en ruimtelijkheid creëert. De kapconstructie met de schuine daklijnen geeft deze ruimte karakter, terwijl het royale plafond en de grote raampartijen zorgen voor een lichte en aangename sfeer. Dit is een multifunctionele ruimte die eenvoudig aan te passen is naar wens – denk aan een werkplek, hobbyruimte, extra slaapkamer of ontspanningsruimte. Aan de achterzijde bieden openslaande deuren toegang tot een rustig gelegen balkon. Hier geniet u van volledige privacy, een fraai uitzicht en de zon, een ideale plek voor een moment van rust in het hart van de stad.

De gehele woning is voorzien van een prachtige eiken houten vloer en massief houten trappen die voor een bijzonder luxe uitstraling zorgen.

Bijzonderheden

- Gebruiksoppervlakte 239m² (gemeten conform NEN2580 meetinstructie)
- Volledig en hoogwaardig verbouwd in 2020
- Rijksmonument
- BAG: 18 H (winkel/bedrijfsruimte) en 18 I (woning)
- Drie slaapkamers
- Twee badkamers
- Luxe afwerking
- Volledig voorzien van vloerverwarming
- Balkon gelegen op de vierde verdieping
- Energielabel A+++
- Oplevering in overleg

Deze informatie is door ons met de nodige zorgvuldigheid samengesteld. Onzerzijds wordt echter geen enkele aansprakelijkheid aanvaard voor enige onvolledigheid, onjuistheid of anderszins, dan wel de gevolgen daarvan. Alle opgegeven maten en oppervlakten zijn indicatief. Koper heeft zijn eigen onderzoeksplicht naar alle zaken die voor hem of haar van belang zijn. Met betrekking tot deze woning is de makelaar adviseur van verkoper. Wij adviseren u een deskundige (NVM-)makelaar in te schakelen die u begeleidt bij het aankoopproces. Indien u specifieke wensen heeft omtrent de woning, adviseren wij u deze tijdig kenbaar te maken aan uw aankopend makelaar en hiernaar zelfstandig onderzoek te (laten) doen. Indien u geen deskundige vertegenwoordiger in-schakelt, acht u zich volgens de wet deskundige genoeg om alle zaken die van belang zijn te kun-nen overzien. Van toepassing zijn de NVM voorwaarden.

Kenmerken

Overdracht
Vraagprijs
€ 3.950.000 k.k.
Status
beschikbaar
Aanvaarding
in overleg
Bouw
Soort woonhuis
Grachtenpand
Soort bouw
tussenwoning
Bouwjaar
1761
Energieklasse
A+++
Soort dak
zadeldak
Slaapkamers
3
Badkamers
2
Oppervlakten en inhoud
Woonoppervlakte
239 m2
Overige inpandige ruimte
0 m2
Gebouwgebonden buitenruimte
9 m2
Externe bergruimte
2 m2
Inhoud
939 m3
Perceeloppervlakte
90 m2
faciliteiten
Mechanische ventilatie
Tv kabel
Dakraam
Aan water
In centrum
Vrij uitzicht
Baerz & Co Property Brochure

Brochure

Video’s

Gerwig Makelaardij

Dannestraat 7
3621 AE Breukelen

info@gerwig.nl
+31 346 26 25 43

www.gerwig.nl

Informatie / bezichtigingsaanvraag

Dirk Gerwig profile image
Dirk Gerwig
Real Estate Agent

Een luxe woning kopen in Amsterdam

Amsterdam biedt een kosmopolitische levensstijl, gekenmerkt door erfgoed, verbondenheid en discrete luxe. Bewoners profiteren van een sterke internationale gemeenschap, hoogwaardige dienstverlening en een bruisende cultuur. De blijvende aantrekkingskracht van de stad schuilt in de combinatie van geschiedenis, verfijning en een vooruitstrevende geest.