Ons kantoor is lid van Baerz & Co Luxury Homes; een internationaal platform dat exclusieve woningmakelaars met elkaar verbindt. Neem contact op met ons secretariaat voor meer informatie over het landelijke aanbod, waarvan u hieronder een selectie kunt bekijken.

CAPELLE AAN DEN IJSSEL
Solisplein 61 - 2909 SC
Nederland

Xandra Bek profile image
Xandra Bek
Register makelaar - taxateur
€1.145.000 k.k.
Woonoppervlakte
251m2
Perceeloppervlakte
N/A
Slaapkamers
2

Omschrijving

EXCLUSIEF DUBBEL PENTHOUSE MET SKYLINEVIEW
Wonen op niveau krijgt hier een heel nieuwe betekenis. Dit dubbel penthouse op de 8e en 9e verdieping biedt een woonoppervlakte van maar liefst 251 m² en is daarmee een zeldzaam ruim stadsappartement. Alles aan dit huis ademt comfort, luxe en privacy. Dankzij het ontbreken van directe buren geniet je hier van rust, stilte en volledige vrijheid. De panoramische raampartijen zorgen voor een spectaculair uitzicht op de skyline van Rotterdam, de Brienenoord en de lichten van de Kuip – dat verveelt werkelijk nooit. En dat uitzicht loopt naadloos door in de buitenruimte: verspreid over twee niveaus beschik je over in totaal 98 m² aan dakterrassen, ideaal op het zuidoosten én zuidwesten. Dat betekent: ochtendzon én avondzon met prachtige zonsondergangen.

VERKOPER AAN HET WOORD
“Wonen in dit heerlijke penthouse is een genot. De enorme ruimte en volledige privacy vanwege het ontbreken van buren brengt complete rust. De twee zeer groot bemeten buiten-terrassen betrekken de buitenwereld en de skyline van Rotterdam in je huis. Prettiger, luxueuzer, ruimer en aangenamer zal je het niet snel vinden.”

DESIGN, RUIMTE EN AFWERKING OP NIVEAU
Dit is geen standaard appartement, maar een doordachte loft-achtige woonomgeving met een speelse indeling, enorme plafondhoogte en een indrukwekkende hoeveelheid lichtinval. De stijlvolle Italiaans hardstenen vloer met vloerverwarming loopt door over de hele woonlaag. In de living is het zicht naar buiten fenomenaal, en binnen zijn sfeer en comfort perfect in balans. De half-open keuken is strak, compleet en geschikt voor zowel snelle maaltijden als uitgebreid tafelen. Met twee volwaardige slaapkamers en een riante werkkamer is het huis geschikt voor diverse leefstijlen: van stellen tot thuiswerkende professionals. De werkkamer kan desgewenst ook als logeerkamer of hobbyruimte worden ingericht. Ook extra slaapkamers zijn te realiseren.

PRIVÉPARKEERPLAATSEN EN TOPVEILIGHEID
Bij dit penthouse horen twee eigen parkeerplaatsen in de afgesloten ondergelegen parkeerkelder – geen gedoe met zoeken of betalen. Verder beschik je over een eigen berging in de onderbouw. Veiligheid is hier serieus genomen: het complex is voorzien van een alarminstallatie, videobewaking in entree, bergingsgang en parkeergarage, én draagt het Politiekeurmerk ‘Veilig Wonen’. Je woont hier dus met een gerust hart. De actieve en gezonde VvE zorgt voor goed onderhoud en een representatief geheel. De bijdrage bedraagt € 751,- per maand, inclusief o.a. reserveringen voor groot onderhoud en opstalverzekering.

FIJN WONEN IN MODERNE WIJK FASCINATIO
Het penthouse ligt in Fascinatio, een jonge en ruim opgezette wijk in Capelle aan den IJssel, direct tegen Rotterdam aan. Deze wijk is in korte tijd uitgegroeid tot een geliefde plek voor mensen die op zoek zijn naar comfort, rust en goede bereikbaarheid. De opzet is modern en overzichtelijk, met veel groen, brede lanen en een mix van wonen, werken en ontspannen.

Fascinatio staat bekend om de stijlvolle architectuur, en dat zie je terug in het appartementencomplex waarin dit penthouse zich bevindt: gebouw ‘Cascade’, een markant ontwerp van het gerenommeerde bureau Kraaijvanger Urbis Architecten. Het complex straalt kwaliteit uit, is keurig onderhouden en vormt een visueel baken in de wijk.

Voor de dagelijkse boodschappen hoef je de wijk niet uit: er is een supermarkt om de hoek, net als een basisschool en kinderopvang. Ook de verbinding met de stad is ideaal. Met de auto zit je zó op de A16 of A20, en ook de metrohalte ligt op loopafstand. Daardoor ben je binnen no-time in hartje Rotterdam, op het Centraal Station of zelfs richting Den Haag of Utrecht.

De wijk trekt bewoners aan die waarde hechten aan een rustige woonomgeving zonder in te leveren op stedelijke voorzieningen. Denk aan jonge professionals, expats, stellen en senioren met een actieve levensstijl. Voor wie graag woont in een architectonische omgeving met aandacht voor veiligheid, ruimte en rust, is Fascinatio een uitstekende keuze. En in dit penthouse – op het hoogste punt van de wijk – geniet je daar in alle privacy optimaal van.

INDELING:
Begane grond:
De afgesloten entree, ruime hal met lift, videofoon en toegang naar de berging en parkeerkelder.

8e verdieping:
In de centrale hal van bevinden zich de 2 toegangsdeuren tot het penthouse, de meterkast en vaste bergkasten.
Dit penthouse beslaat de gehele 8e en 9e verdieping van het appartementencomplex.

Entree met garderobe en toilet, zeer riante living van maar liefst 85m² heeft een fantastische lichtinval door de grote glaspartij van maar liefst 7 meter hoog en een fraaie vide met stoere balustrade. De gehele verdieping is voorzien van een fraaie Italiaans hardstenen vloer met vloerverwarming. Aan beide kanten van de living bevindt zich een riant dakterras met een ligging op respectievelijk het zuidwesten c,q. het zuidoosten. Het totale oppervlakte van de dakterrassen is 98 m2. U kunt hier de gehele dag in de zon van het fraaie uitzicht genieten. De skyline van Rotterdam is vanaf het dakterras bijna aan te raken.

De luxe half-open keuken van 14 m² is in een U-opstelling geplaatst, heeft een composiet werkblad en is voorzien van hoogwaardige (Miele) inbouwapparatuur; te weten een inductiekookplaat, afzuiging (geïntegreerd in het werkblad), 2 combi-magnetrons, vaatwasser, koelkast en vriezer. Het nieuwe raam zorgt voor licht en uitzicht.

De masterbedroom heeft een inloopkast en luxe badkamer en-suite (met grote inloopdouche, badkamermeubel met hardstenen wastafel, 2e toilet en fraaie tegels).

Een tussenhal geeft toegang tot 2e slaapkamer met eigen badkamer en-suite (met inloopdouche, 3e toilet, wastafelmeubel en designradiator). Hier bevindt zich ook de tweede hoofdentree tot het penthouse.

Open trap met toegang tot de 9e verdieping.

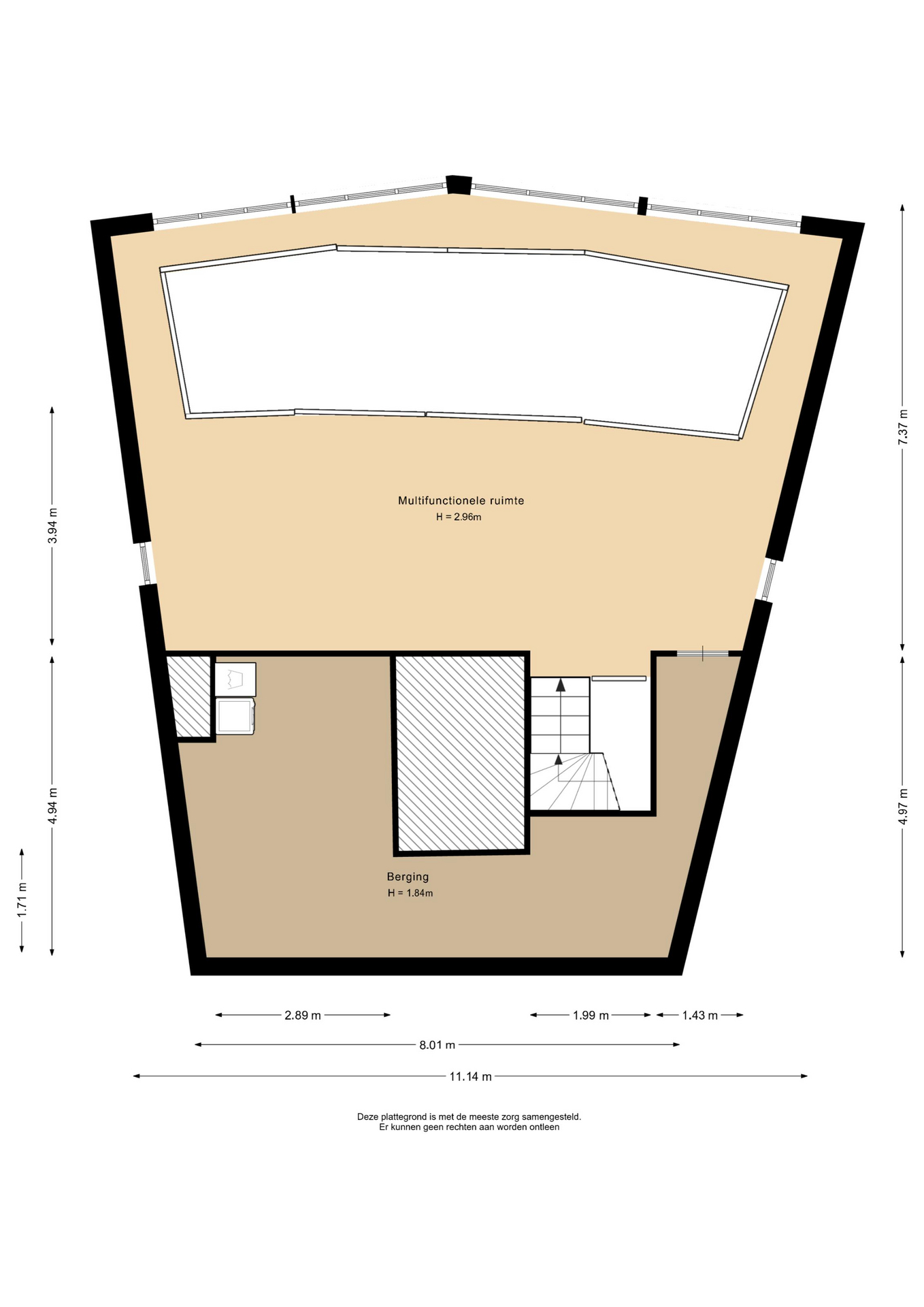
9e verdieping:
Fraaie open werkruimte met weids uitzicht, een spectaculaire vide die rondom voorzien is van een stoere balustrade, waardoor de New York Loft stijl extra geaccentueerd wordt en toegang tot de riante berging met aansluiting wasmachine en droger.
Het is zeer goed mogelijk om op deze verdieping nog extra slaapkamers te realiseren.

KENMERKEN:
-Gelegen op de 8e en 9e verdieping (dubbel penthouse)
-Terrassen op zuidoosten en zuidwesten, totaal 98 m²
-Woonoppervlakte: 251 m²
-Woonkamer + keuken 100 m²
-Bouwjaar: 2010
-Volledig gasloos en energielabel A
-2 slaapkamers en een riante werkkamer (extra slaapkamers mogelijk)
-2 badkamers
-2 eigen parkeerplaatsen + berging
-Politiekeurmerk Veilig Wonen & videobewaking
-VvE-bijdrage: € 751,- per maand

Oplevering: in overleg

Kenmerken

Overdracht
Vraagprijs
€ 1.145.000 k.k.
Status
beschikbaar
Aanvaarding
in overleg
Bouw
Soort woonhuis
Penthouse
Soort bouw
appartement
Bouwjaar
2010
Energieklasse
A
Soort dak
plat dak
Slaapkamers
2
Badkamers
2
Oppervlakten en inhoud
Woonoppervlakte
251 m2
Overige inpandige ruimte
0 m2
Gebouwgebonden buitenruimte
98 m2
Externe bergruimte
8 m2
Inhoud
1014 m3
faciliteiten
Mechanische ventilatie
Lift
In woonwijk
Vrij uitzicht
Baerz & Co Property Brochure

Brochure

Video’s

Plattegronden

Van Herk Makelaars Excellent

Oudehoofdplein 4
3011 TM Rotterdam

xbek@vanherk.nl
+31 102581855

www.vanherk.nl/excellent/

Informatie / bezichtigingsaanvraag

Xandra Bek profile image
Xandra Bek
Register makelaar - taxateur