Wonen in stijl, midden in de splinternieuwe woonwijk van Mijdrecht!
Ontdek deze prachtige, vrijstaande villa (tuinmuurvilla), gelegen aan sierlijk water met een uniek uitzicht op de iconische Kompastoren. Om de hoek ligt het karakteristieke Spoorhuis en u woont in de jongste en populaire woonwijk het Spoorpark. Hier geniet u van een perfecte combinatie van rust, ruimte en bereikbaarheid. Het bruisende centrum van Mijdrecht, met winkels, restaurants, gezondheidscentrum, de gezellige weekmarkt en evenementen zoals de jaarlijkse braderie, ligt op loopafstand. Dankzij de uitstekende openbaarvervoerverbindingen en de nabijheid van grote steden als Amsterdam, Utrecht en Hilversum, bent u overal in een mum van tijd. Ook Schiphol en de Vinkeveense Plassen liggen praktisch om de hoek. Een toplocatie waar het beste van stad en natuur samenkomen. De tuinmuurvilla is recent gebouwd, geheel duurzaam opgezet en heeft een eigentijdse architectuur, het platte dak en het strakke lijnenspel zorgen voor een comfortabel huis, mét hoogwaardige bouwkwaliteit.
De indeling van de woning is als volgt:
BEGANE GROND – ruimte, licht en comfort
Via de royale oprit van antraciet grind, met plaats voor twee auto’s en een eigen laadpaal, bereikt u de stijlvolle entree van deze villa. Al bij binnenkomst in de ruime en representatieve hal valt het grote hoekraam naast de voordeur op waardoor het daglicht rijkelijk binnenstroomt. Vanuit de hal heeft u toegang tot diverse vertrekken én de vaste trapopgang naar de eerste verdieping. Links van de voordeur bevindt zich een veelzijdige ruimte die nu dienst doet als werkkamer, maar ook ideaal is als inpandige berging of hobbykamer. Deze ruimte heeft bovendien een eigen ingang vanaf de voorzijde. Naast gelegen vindt u de meterkast met glasvezelaansluiting, gevolgd door het modern afgewerkte toilet in grijs-wit tinten met fontein. Onder de trap is een praktische opbergkast en er is ruim plek voor een garderobe.
Aan het einde van de hal betreedt u via een paneeldeur met melkglas en extra zijraam de royale woonkamer met open keuken. Grote ramen rondom, voorzien van handmatig en elektrisch bedienbare zonneschermen, zorgen voor een prachtig lichtspel en een weids uitzicht. De moderne keuken in antracietgrijs heeft een stijlvol kunststof werkblad, een ruim eiland met lades en een gezellige zitbar. Hoogwaardige Siemens-inbouwapparatuur – waaronder vaatwasser, inductiekookplaat met geïntegreerde afzuiging, combi-stoomoven en koel-/vriescombinatie – maken koken hier een genot. De woonkamer is ruim opgezet en biedt de mogelijkheid om diverse zithoeken te creëren of af en toe de zithoek te veranderen van opzet. Via openslaande deuren in de keuken stapt u de achtertuin in, waar een elektrisch zonnescherm voor schaduw zorgt op zonnige dagen. De eetkamer sluit naadloos aan op de keuken, met daarachter de sfeervolle zithoek. Ook vanuit hier leiden openslaande deuren naar de zonnige zijtuin op het zuiden. De gehele begane grond is voorzien van een onderhoudsvriendelijke pvc-vloer in warme houtlook met comfortabele vloerverwarming. Alle ramen en buitendeuren zijn uitgerust met horren – een detail dat bijdraagt aan het wooncomfort.
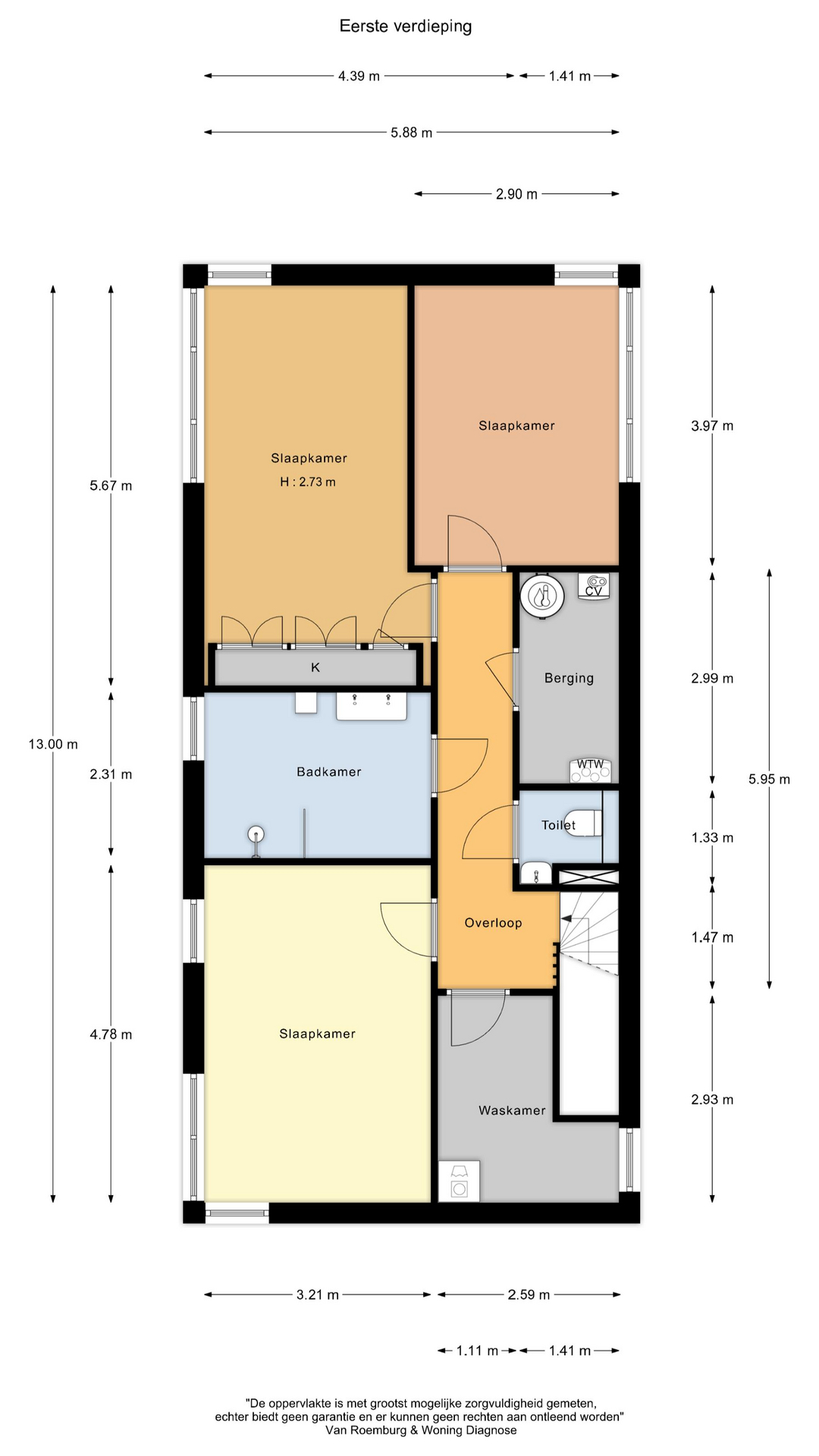
EERSTE VERDIEPING – comfort en ruimte voor het hele gezin
Via de vaste trap bereikt u de royale overloop, die toegang biedt tot alle vertrekken op deze verdieping. Direct links bevindt zich een praktische wasruimte met raam, voorzien van aansluitingen voor de wasmachine en de wasdroger, én genoeg ruimte voor extra opslag. Naast deze ruimte ligt een grote slaapkamer of logeerkamer, heerlijk licht dankzij het hoekraam en een extra raam. Aan de overzijde van de overloop vindt u een modern afgewerkt, separaat toilet met fontein in stijlvolle grijs-witte tinten. Daartegenover ligt de riante badkamer met raam, inloopdouche voorzien van stortdouche en handdouche, een dubbele wastafel met lades, spiegel met verlichting en een extra wandmeubel. De ruimte biedt bovendien voldoende mogelijkheden voor het plaatsen van een ligbad in de toekomst. Verder herbergt deze verdieping een technische ruimte met warmtepomp, boiler, WTW-installatie en de omvormer voor de 14 eigen zonnepanelen – met daarnaast nog volop bergruimte. Aan het einde van de gang bevinden zich weer twee royale slaapkamers: links de hoofdslaapkamer met groot hoekraam, rechts een ruime kamer met hoekraam, momenteel in gebruik als werkkamer. Over de gehele verdieping ligt dezelfde onderhoudsvriendelijke pvc-vloer in warme houtlook als beneden, compleet met vloerverwarming. Alle ramen zijn voorzien van horren en elektrische screens, die worden gevoed door de zonnepanelen – een combinatie van luxe, comfort en duurzaamheid.
TUIN – genieten van zon, uitzicht en privacy
De buitenruimte van deze villa is een verlengstuk van het woongenot. Via de royale oprit met antraciet grind – met plaats voor twee auto’s en een eigen laadpaal op eigen terrein – bereikt u de houten schuur, compleet met elektriciteit, verlichting en een praktische overkapping. Langs de achterzijde van de woning voert een charmant grindpad, geflankeerd door een sierlijke border met beplanting, u naar het eerste terras. Dit terras, uitgevoerd in onderhoudsarme composiet planken, ligt direct achter de keuken en grenst aan het sierwater. Hier, op het oosten, start u de dag in alle rust met de ochtendzon en een vers kopje koffie. Het pad slingert verder langs het water, omgeven door groen, naar het zonnige hart van de tuin op het zuiden. Hier vindt u een ruim terras bij de woonkamer, momenteel voorzien van een zonnescherm, maar met volop mogelijkheden om een stijlvolle overkapping te realiseren. Aansluitend strekt zich een verzorgd gazon uit, omrand door beplanting en een strakke beukenhaag. Of u nu wilt ontspannen, tuinieren, of gasten ontvangen – deze tuin biedt het allemaal, met als extra pluspunt het prachtige uitzicht over het sierwater.
Maak van deze moderne villa uw nieuwe thuis! Deze vrijstaande villa biedt alles wat u zoekt: 158 m² woonoppervlak, een moderne afwerking, energiezuinige voorzieningen, een doordachte indeling, een zonnige tuin aan het water en een toplocatie in het hart van Mijdrecht. Hier woont u in alle rust, maar met alle voorzieningen én de grote steden binnen handbereik. Dit soort huizen komen maar zelden op de markt. Ervaar zelf hoe het voelt om hier te wonen en laat u verrassen door de ruimte, het licht en het uitzicht. Plan vandaag nog een bezichtiging en ontdek uw toekomstige droomwoning!
Mijdrecht is de dynamische kern van de gemeente De Ronde Venen en ligt geografisch in het centrum van het Groene Hart. Een perfecte ligging in Nederland. Er is een winkelboulevard rondom het gemeentehuis, met een perfecte mix van landelijk bekende winkelketens en gezellige lokale winkels. Het Straattheaterfestival en De Culinaire Venen zijn beroemd in de wijde omtrek. Dankzij de Provincialeweg N201 (Zandvoort-Haarlem-Hilversum) zijn er snelle verbindingen naar onder meer Amstelveen, Schiphol, Amsterdam, Hilversum en Utrecht. De ligging ten opzichte van vele voorzieningen is uitstekend te noemen. De woning is op korte afstand gelegen van basisscholen, voortgezet onderwijs, de bibliotheek, diverse sportverenigingen en het openbaar vervoer. Binnen tien minuten staat u op hole 1 van de gerenommeerde Golfclub Veldzijde. In het weekend kunt u heerlijk fietsen door het Groene Hart of varen op de Vinkeveense Plassen. Het is rustig wonen in deze waterrijke en groene omgeving vlakbij Amsterdam. De bungalow is verder omgeven door een diversiteit aan natuurgebieden zoals de Vinkeveense Plassen, stiltegebied Botshol en de rivier De Kromme Mijdrecht in De Hoef. Een heerlijke plek om na een drukke werkdag tot rust te komen. Zo mooi kan het leven zijn met Amsterdam en Utrecht binnen handbereik.