Welkom in deze schitterende villa gelegen op een ruim perceel van maar liefst 1130m² in het mooie Sassenheim. Deze villa biedt ultiem wooncomfort, privacy en laat u zich vooral verrassen door de vele mogelijkheden.
- Grotendeels onderkelderd
- Boeidelen zijn vervangen na foto's (2024)
- 2 Badkamers
- 2 Garages
- 2 oprijlanen
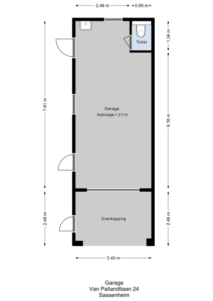
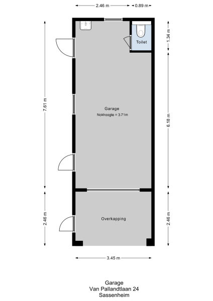
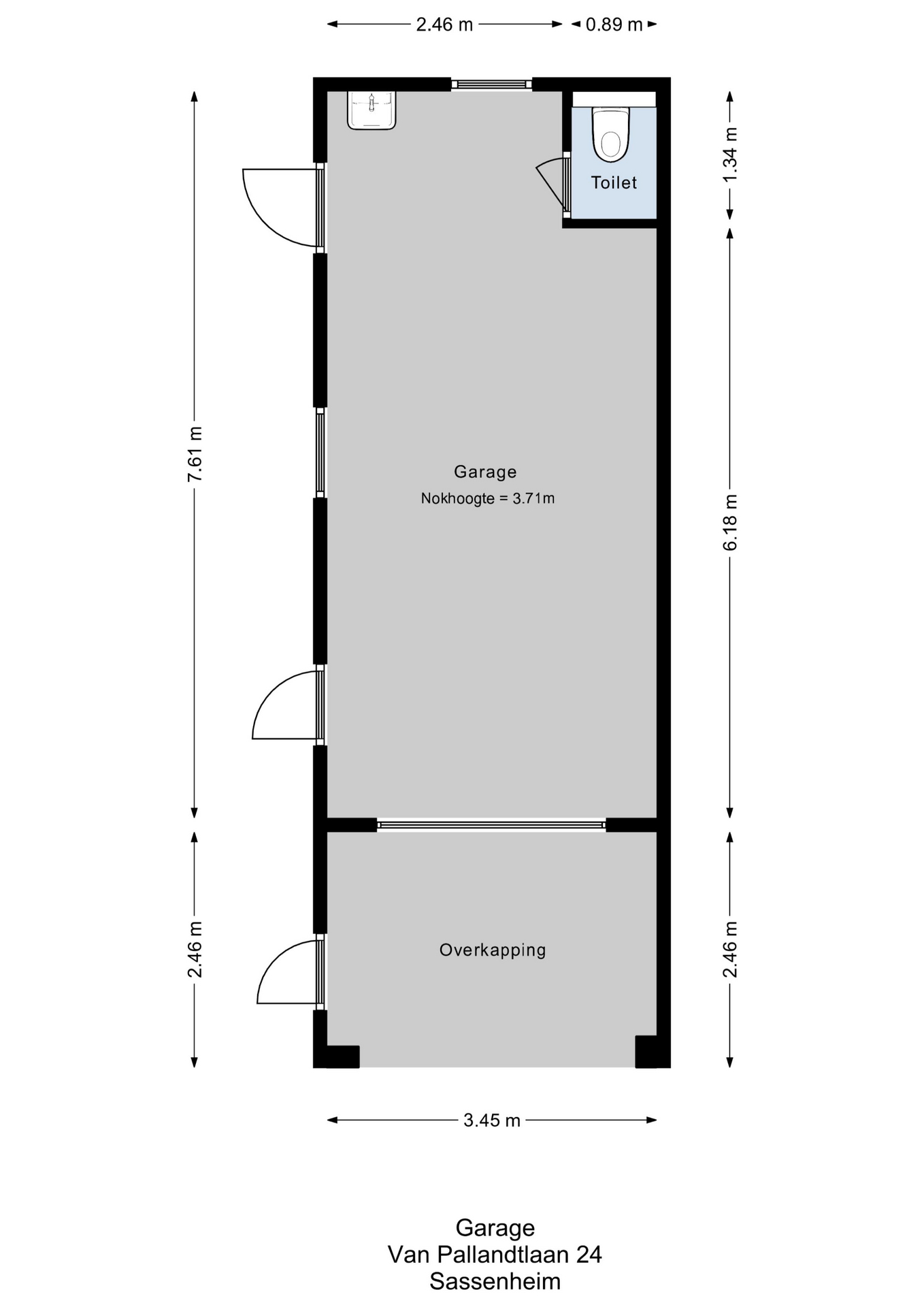
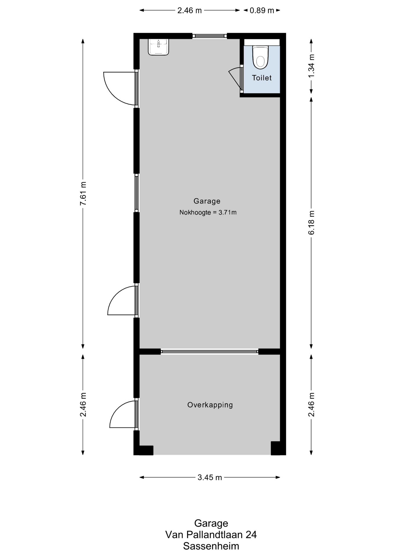
Bouwjaar: 1951, woonoppervlakte: 199m², perceel: 1130m², garage 1: 26m², garage 2: 16m²
Bij aankomst valt direct de royale oprit op, die plaats biedt aan meerdere auto's. Daarnaast beschikt de villa over een ruime garage, perfect voor het stallen van uw voertuigen en extra opslagruimte. Het perceel strekt zich uit tot aan de achterliggende laan, de Willem Warnaarlaan, waar u ook een handige tweede oprit vindt met garage. Hierdoor heeft u altijd voldoende parkeergelegenheid en toegangsmogelijkheden.
We nemen u mee door de woning.
Begane grond:
Entree in zeer ruime hal, sfeervolle glas in lood ramen, toilet en verdiepte garderobe. De woonkamer is opgesteld in L-vorm, heeft veel lichtinval, sfeervolle gashaard en is voorzien van een prachtige houten parketvloer. De serre en tweede woonkamer zijn later aangebouwd waardoor er veel extra ruimte is gecreëerd welke meerdere mogelijkheden geven. De serre en tweede woonkamer zijn voorzien van een nette tegelvloer met vloerverwarming. De keuken is gelegen aan de voorzijde van de woning welke tevens toegang biedt tot de ruime bijkeuken.
1e Etage:
Ruime overloop met 2 slaapkamers gelegen aan de achterzijde, beide slaapkamers zijn ca 15m². De hoofdslaapkamer beschikt over een badkamer ensuite, welke is voorzien van een douche, toilet en wastafelmeubel. De andere slaapkamer beschikt over een heerlijk balkon gelegen op het zuidwesten. De tweede badkamer is toegankelijk vanuit de overloop en is voorzien van een ligbad, toilet, wastafelmeubel en douche. De vliering is bereikbaar door middel van een vlizotrap. Vanwege de nokhoogte van 2,3m zijn er mogelijkheden om in de toekomst hier een extra slaapkamers te creëren.
Kelder:
De woning is bijna in zijn geheel onderkelderd en de kelder is zowel toegankelijk vanuit de hal als de bijkeuken. Momenteel wordt deze ruimte gebruikt als waskamer en verder biedt de kelder juist veel mogelijkheden, zoals bijvoorbeeld het creëren van een; fitnessruimte, sauna, bioscoop of hobbykamer. Deze ruimtes kunnen op verschillende manieren worden aangepast om te voldoen aan uw specifieke wensen.
Tuin:
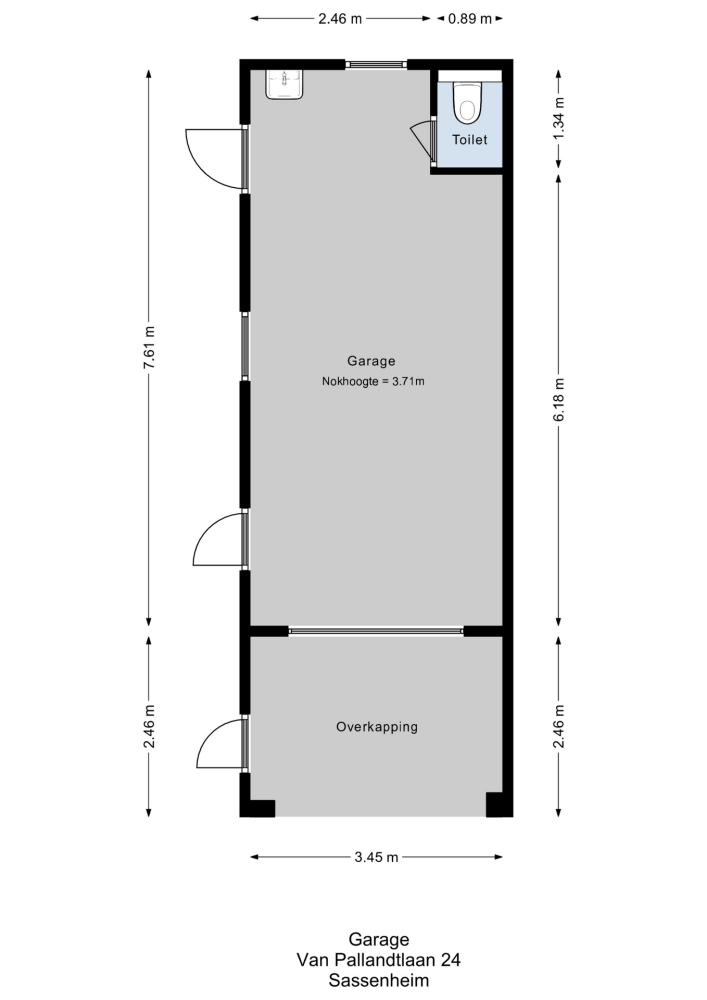
Fraai aangelegde tuin met twee oprijlanen, meerdere terrassen en biedt aan zee aan speelruimte voor de kinderen. De garage heeft een apart toilet en biedt genoeg ruimte voor de auto. Daarnaast is er nog een extra garage aan de achterzijde gelegen, welke een oppervlakte heeft van ca 16m².
Ligging:
Op slechts enkele minuten afstand vindt u het gezellige centrum van Sassenheim met veel winkels, scholen en restaurants. Bovendien zijn de belangrijke uitvalswegen zoals de A44 en N206 snel bereikbaar, wat zorgt voor een uitstekende verbinding met steden als Leiden, Amsterdam, Haarlem en Den Haag. Tevens is het openbaar vervoer in Sassenheim uitstekend geregeld, met snelle trein- en busverbindingen.
- Prachtig ruim perceel
- Glas in lood ramen
- Loopafstand centrum Sassenheim
- Veel mogelijkheden
Pim leidt je graag rond door de woning. Bel ons voor een afspraak!