Ons kantoor is lid van Baerz & Co Luxury Homes; een internationaal platform dat exclusieve woningmakelaars met elkaar verbindt. Neem contact op met ons secretariaat voor meer informatie over het landelijke aanbod, waarvan u hieronder een selectie kunt bekijken.

VALKENSWAARD
Maastrichterweg 200 - 5556 VA
Nederland

Dirk van Santvoort profile image
Dirk van Santvoort
Dirk van Santvoort
€1.325.000 k.k.
Woonoppervlakte
215m2
Perceeloppervlakte
17250m2
Slaapkamers
4

Omschrijving

Deze vrijstaande woning biedt volop leefruimte en mogelijkheden. Op de begane grond ingericht met een woonkamer, een leefkeuken en een slaapkamer met eigen badkamer. Ook is er een inpandige garage aanwezig. Buiten vindt u een royale, verzorgde tuin met een groot gazon, volwassen bomen, natuurlijke hagen en twee terrassen. Bovendien bieden het bijgebouw en de tuinbouwkas extra mogelijkheden, terwijl het aangrenzende weiland en de schuur ideaal zijn voor het
bijvoorbeeld het hobbymatig houden van paarden.

Ontdek deze charmante vrijstaande woning die u volop leefruimte en mogelijkheden biedt! Op de begane grond
vindt u een ruime en lichte woonkamer, een sfeervolle leefkeuken én een comfortabele slaapkamer met
badkamer-en-suite. Daarnaast is er een praktische bijkeuken en een inpandige garage aanwezig. Buiten wacht een royale, verzorgde tuin op u: met o.a. een groot gazon, volwassen bomen die karakter toevoegen, natuurlijke hagen, een terras aan de achtergevel en een overdekt terras. De vrijstaande schuur en de naastgelegen tuinbouwkas bieden volop mogelijkheden voor het vestigen van een (agrarisch) bedrijf. Daarnaast kan ook het aangrenzende perceel cultuurgrond bedrjifsmatig worden ingezet, maar dit is uiteraard ook uitermate geschikt voor het hobbymatig houden van paarden.

WOONHUIS
Begane grond:
De ruime entreehal biedt toegang tot de woonkamer, toiletruimte, garderobe en de meterkast. Een fraaie houten
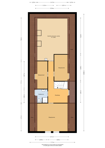
trap biedt toegang tot de 1e verdieping. De royale woonkamer is een heerlijke ruimte. De grote raampartijen en een schuifpui bieden een prachtig vrij uitzicht op de tuin. Het houten balken plafond en de schouw met gaskachel zorgen voor extra sfeer in de ruimte. Ook is er airconditioning aanwezig. De keukeninrichting in de leefkeuken is in een hoekopstelling geplaatst en uitgerust met een vaatwasser, spoelbak, keramische kookplaat, oven, magnetron en een koelkast. Vanuit de keuken bieden raampartijen ook zicht op de tuin. De bijkeuken is deels betegeld en uitgerust met de aansluitingen voor de wasapparatuur. Een loopdeur zorgt voor toegang tot de achtertuin. De badkamer is geheel betegeld en ingericht met een ligbad, een dubbele wastafel met meubel en een designradiator. Aangrenzend aan de badkamer is de slaapkamer gelegen.

1e Verdieping:
De eerste verdieping biedt ruimte aan drie slaapkamers, een badkamer en een zolderruimte. Alle slaapkamers en de zolderruimte zijn voorzien van vloerbedekking. Raampartijen zorgen voor natuurlijke lichtinval en ventilatie. Onder de dakschuinte is er bergruimte gecreëerd. De zolderruimte is uitgerust met de opstelling voor de CV-ketel (Vaillant) en een stofzuigsysteem. Een luik zorgt voor toegang tot de vliering.

Garage
De aanpandige garage is uitgerust met een gootsteen en een vaste kastenwand met schuifdeuren. In deze kast is
de unit voor de vloerverwarming gesitueerd. Een loopdeur biedt toegang tot de achtertuin. Openslaande deuren
aan de voorzijde zorgen voor toegang tot de oprit.

TUIN, ERF EN BIJGEBOUWEN

Tuin
De rondom de woning gelegen tuin is sfeervol ingericht met volop groen, een groot gazon en diverse volwassen
bomen en struiken. De tuin is omheind met een beukenhaag. Het terras grenzend aan de achtergevel en het
naastgelegen sfeervolle overdekte terras bieden een fijne plek om te ontspannen of te genieten van het
buitenleven. Unieke elementen zoals de authentieke waterput en de charmante, overdekte hooiberg op het gras
accentueren de landelijke charme.

Bijgebouw
De royale, vrijstaande schuur is opgetrokken uit damwand gevels met stalen spanten en het geïsoleerde dak is
bedekt met asbestvrije golfplaten. Er is een groepenkast met krachtstroom en een gootsteen aanwezig. Een
roldeur in de voorgevel en openslaande deuren in de achtergevel zorgen voor toegang tot het erf.
De schuur is ingericht met meerdere bergingen en een praktische entresol daarboven voor extra opslagruimte.
Eén berging is uitgerust met een keukenblok. Tevens is er een toiletruimte aanwezig.
Met zijn royale afmetingen biedt de schuur talloze mogelijkheden voor het vestigen van een bedrijf, het (deels):
inrichtien van een hobbyruimte of een werkplaats, efficiënte opslagruimte of de perfecte basis voor het
realiseren van een aantal paardenboxen. De schuur is geheel in te richten naar uw persoonlijke wensen en
behoeften.

Tuinbouwkas
In de ruime, vrijstaande tuinbouwkas is elektra en krachtstroom aanwezig.

Weiland
Het naastgelegen perceel cultuurgrond is ingericht als grasland/weiland. Het weiland is omheind met een haag
en aan de voorzijde met een hekwerk.

Bijzonderheden:
• Het geheel is aangesloten op gas, water, elektra, riolering.
• Volledig geïsoleerd.
• De begane grond, met uitzondering van de slaapkamer, is voorzien van vloerverwarming.
• In de woonkamer is airconditioning aanwezig.
• Er is een stofzuigsysteem aanwezig.
• De raampartijen zijn voorzien van rolluiken.
Op het geheel rust een agrarische bestemming. Er is een principeverzoek ingediend om de mogelijkheden te
onderzoeken voor het wijzigen van de bestemming naar "Wonen".

Kenmerken

Air conditioning
Overdracht
Vraagprijs
€ 1.325.000 k.k.
Status
beschikbaar
Aanvaarding
in overleg
Bouw
Soort woonhuis
Eengezinswoning
Soort bouw
vrijstaande woning
Bouwjaar
1997
Energieklasse
C
Soort dak
schilddak
Slaapkamers
4
Badkamers
2
Oppervlakten en inhoud
Woonoppervlakte
215 m2
Overige inpandige ruimte
48 m2
Externe bergruimte
949 m2
Inhoud
970 m3
Perceeloppervlakte
17250 m2
faciliteiten
Airconditioning
Schuifpui
Dakraam
Natuurlijke ventilatie
Baerz & Co Property Brochure

Brochure

Video’s

Plattegronden

Van Santvoort Makelaars

Torenallee 65
5617 BB Eindhoven

dirk@vansantvoort.nl
+31 40 269 25 30

www.vansantvoort.nl

Informatie / bezichtigingsaanvraag

Dirk van Santvoort profile image
Dirk van Santvoort
Dirk van Santvoort