Ons kantoor is lid van Baerz & Co Luxury Homes; een internationaal platform dat exclusieve woningmakelaars met elkaar verbindt. Neem contact op met ons secretariaat voor meer informatie over het landelijke aanbod, waarvan u hieronder een selectie kunt bekijken.

AMSTERDAM
Govert Flinckstraat 264 H - 1073 CE
Нидерланды

Eran Hausel profile image
Eran Hausel
Real estate agent
€1,100,000 k.k.
Жилая площадь
175m2
Размер участка
108m2
Спальни
5

Описание

Апартаменты Amsterdam расположены на улице Govert Flinckstraat, в оживленном районе De Pijp, и представляют собой редкое сочетание двух самостоятельных резиденций, каждая с отдельным входом и собственным номером. Этот универсальный объект площадью 175 м² на четырех этажах обладает высоким потенциалом как для семей, так и для инвесторов, ищущих аутентичный колорит в центре Амстердама. Неразделенный статус и полное право собственности на землю предоставляют гибкость для дальнейшей адаптации: можно создать просторный семейный дом или преобразовать помещение в две квартиры, при условии получения необходимых разрешений.

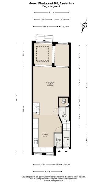
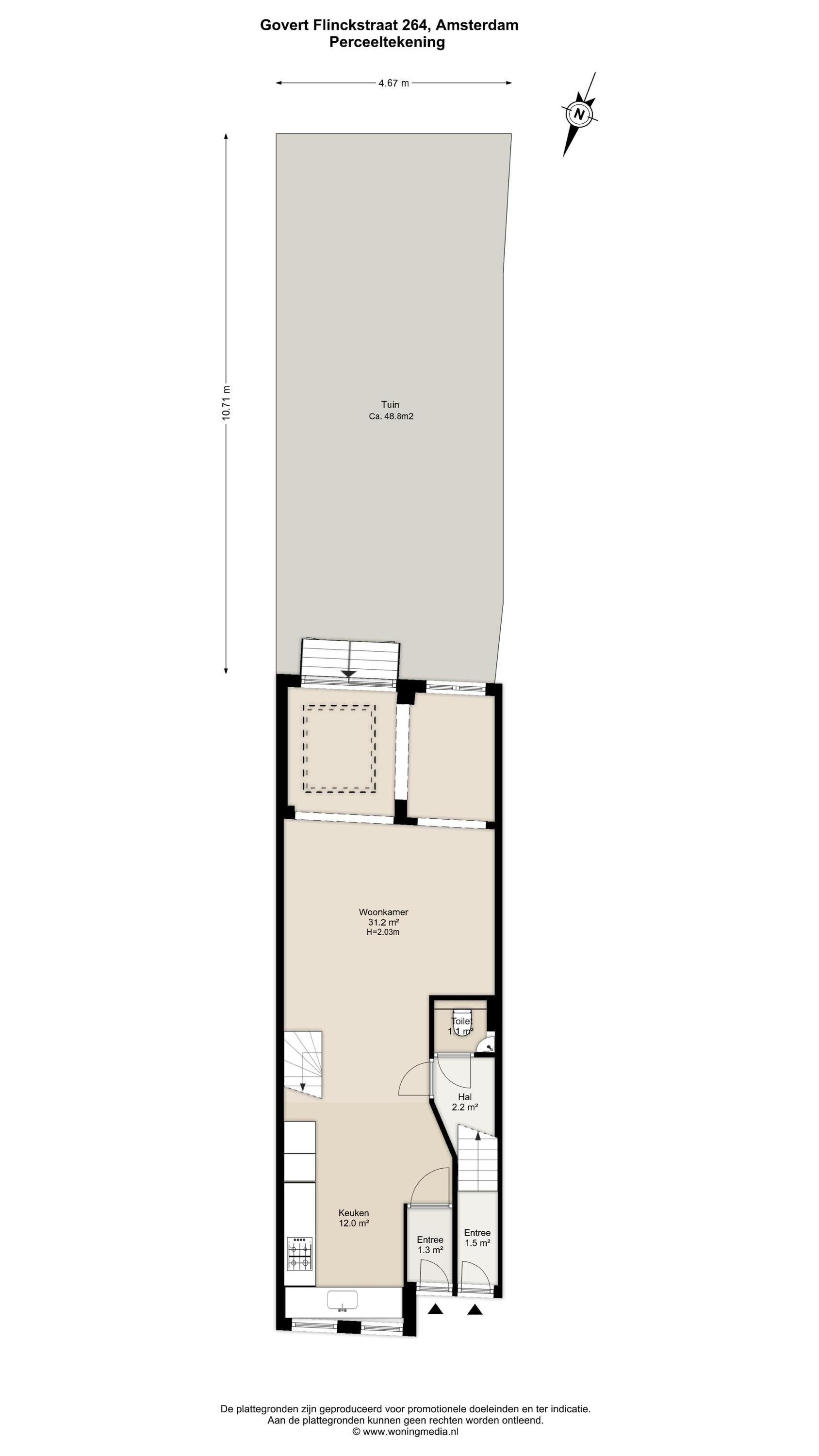
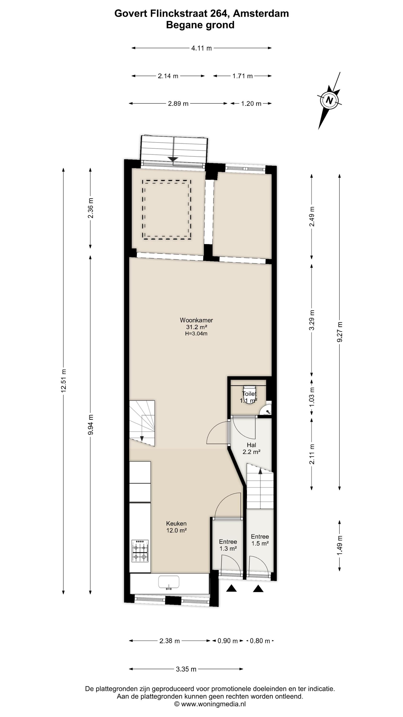
На первом этаже просторная гостиная впечатляет высотой потолков более трех метров, мансардным окном и французскими дверями, ведущими в сад площадью около 49 м² на южную сторону. Открытая кухня с выходом на улицу оснащена оборудованием, включая трехфункциональный смеситель Howat с кипятком, плиту с пятью конфорками и удобными системами хранения. На втором этаже — три спальни, полноценная ванная комната с ванной и душевой кабиной walk-in, а также отдельная прачечная зона.

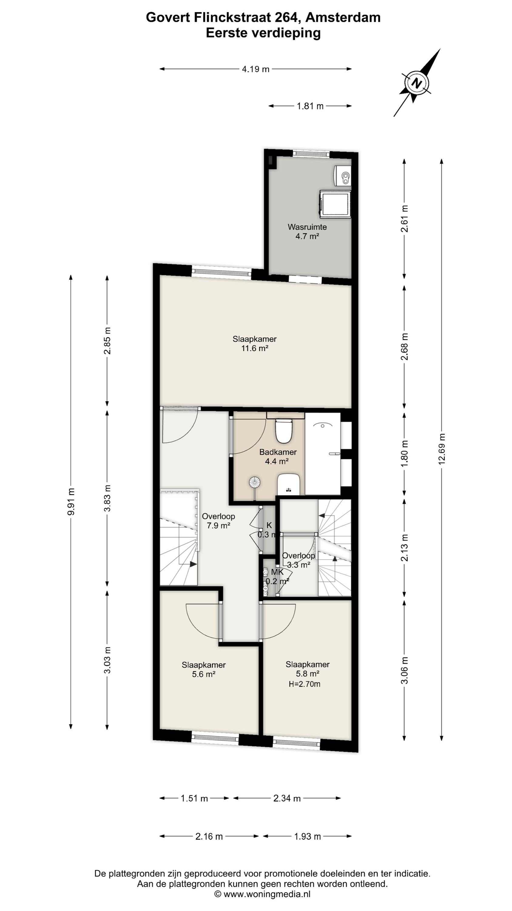
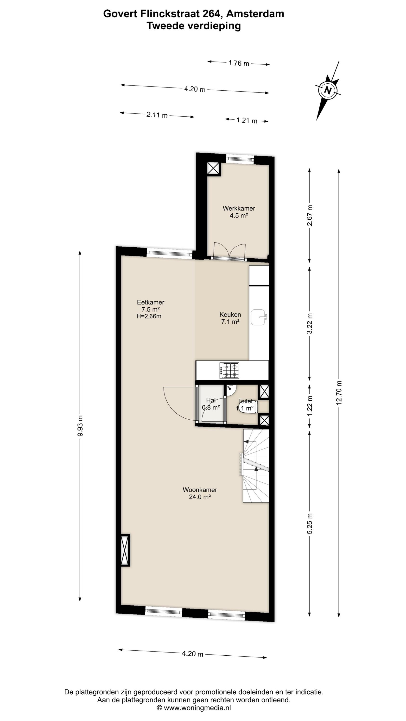
Второй этаж полностью автономен, имеет отдельный вход, а жилые и обеденные пространства организованы для максимального попадания света. Уровень дополняют отдельная кухня и кабинет или домашний офис. Третий этаж отличается характерной мансардной крышей, слуховыми окнами и мансардными окнами, здесь расположены две просторные спальни и ванная комната, при этом из главной спальни есть выход на балкон площадью примерно 5 м² с южной стороны.

Апартаменты находятся в нескольких шагах от рынка Альберт Кёйп и парка Сарфатипарк, в окружении кафе, бутиков и ежедневных удобств, предлагая немедленный доступ к культурному и гастрономическому ритму города. Ключевые транспортные связи, включая линию метро Noord/Zuid, а также трамвайные и автобусные маршруты, расположены поблизости, а аэропорт Схипхол можно достичь на автомобиле всего за 15 минут. Класс энергоэффективности D, центральное отопление и возможность получить два разрешения на парковку дополняют современные условия проживания. Квартира обещает утонченное уединение в динамичной городской среде.

Исследуйте Amsterdam вместе с Baerz — вашим надежным советником и личным поисковиком недвижимости

Работа на рынке элитной недвижимости в Амстердаме невозможна без глубоких знаний локальных особенностей, деликатности и мастерства ведения переговоров. Лучшие советники обеспечивают доступ к приватным предложениям, поясняют нюансы права собственности, находят скрытую ценность там, где объекты редко выходят на широкий рынок. Команды экспертов ведут тщательную проверку активов и профессиональное представление клиента, усиливая его позиции на переговорах, обеспечивая прозрачность сделки и полную конфиденциальность.

Избегайте распространённых ошибок

Международные покупатели часто тратят ценное время на изучение дублирующихся, устаревших или вводящих в заблуждение онлайн-объявлений, особенно учитывая, что почти 30% объектов элитной недвижимости вообще не появляются на открытом рынке.
Агенты продавца представляют интересы продавца, а не ваши, и даже простой запрос о недвижимости может привести к тому, что агентство зарегистрирует вас как своего “клиента” без вашего согласия.
С Baerz Property Finders & Advisors вы полностью избегаете этих подводных камней.
Мы действуем исключительно в ваших интересах, предоставляя независимое представительство, прозрачные рекомендации и доступ ко всем доступным объектам, включая частные и вне-рыночные предложения, которых другие никогда не увидят.

Хотите узнать, как получить собственного персонального консультанта по недвижимости? Свяжитесь с нами, чтобы узнать, как мы можем представлять ваши интересы и открыть вам весь рынок.

Особенности

Передача права собственности
Запрашиваемая цена
€ 1.100.000 k.k.
Статус
verkocht onder voorbehoud
Принятие
in overleg
Строительство
Тип дома
Eengezinswoning
Тип здания
tussenwoning
Период строительства
1885
Энергетический рейтинг
D
Тип крыши
mansarde dak
Спальни
5
Ванные комнаты
2
Площадь и объем
Жилая площадь
175 m2
Другое внутреннее пространство
0 m2
Внешнее пространство, прикрепленное к зданию
5 m2
Объем в кубических метрах
611 m3
Размер участка
108 m2
Удобства
Tv kabel
Natuurlijke ventilatie
In centrum
In woonwijk
Baerz & Co Property Brochure

Брошюра

Видео

Планы этажей

Heeren Makelaars

Stadionweg 75
1077 SE Amsterdam

info@heerenmakelaars.nl
+31 204702255

www.heerenmakelaars.nl

Информация / Запрос на просмотр

Eran Hausel profile image
Eran Hausel
Real estate agent