Ons kantoor is lid van Baerz & Co Luxury Homes; een internationaal platform dat exclusieve woningmakelaars met elkaar verbindt. Neem contact op met ons secretariaat voor meer informatie over het landelijke aanbod, waarvan u hieronder een selectie kunt bekijken.

BERGEN (NH)
Buerweg 15 - 1861 CG
荷兰

Angeline Croonen profile image
Angeline Croonen
Real Estate Agent
€2,995,000 k.k.
生活区
344m2
地块大小
2684m2
卧室
4

描述

Bergen别墅坐落于静谧独特的位置,环抱无垠草地景观,私密性极高,入口处设有富有艺术感的铁艺大门。此物业静静融合了历史与现代。2,684 m²地块前方是一处十八世纪中叶茅草屋顶农舍,2014年经过精心翻修,为庄园赋予尊贵气息。此附属建筑配备齐全,可作为家庭办公、艺术工作室或非正式护理空间,灵活性与其悠久历史相得益彰。

主住宅为344 m²的建筑师设计别墅,于1984年建成,全屋流露沉静现代之美。宽敞的起居室采光充沛,享有开阔草地景致,壁炉为夜晚添一抹温暖。厨房设有岛台,方便家人聚会并享受绿意景观;法式双开门与带顶、可加热露台模糊了室内外界限。厨房设备包括即热水龙头、带铁板烧和油炸锅的专业炉灶、蒸烤箱、红酒柜等。毗邻的辅助空间进一步提升实用性。

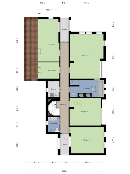
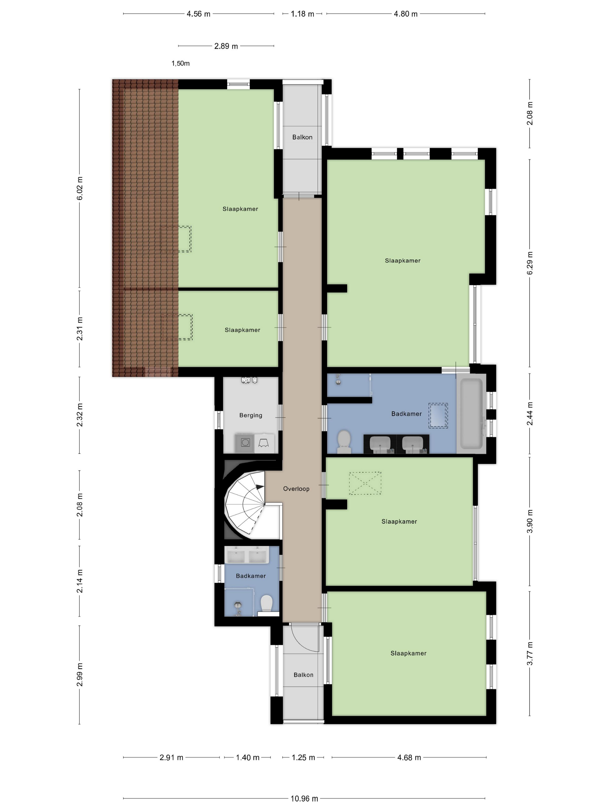
别墅设有四间卧室,五间楼上房间(包括专用洗衣房),两间浴室,主卧带双台盆步入式淋浴间。阁楼保留拓展潜力。全屋设有可持续节能设备,如热泵、部分地暖及太阳能板,达成A类能效等级。其他设施包括机械及自然通风、安防系统以及贴心的健康养生预设。

木结构车棚可容纳多辆汽车,并延伸至已预留健康设施的工作间。后院景观花园为静谧或好友聚会提供理想之所,多个露台精心布局,以享受阳光与草场美景。于此,距离繁华的Bergen市中心与海岸仅数分钟路程,恒久建筑与自然和谐共振,成就极为稀有的臻品。

特点

太阳能面板
Alarm system
所有权转让
要价
€ 2.995.000 k.k.
状态
beschikbaar
接受
in overleg
建筑
房屋类型
Villa
建筑类型
vrijstaande woning
建筑时期
1984
能源评级
A
卧室
4
浴室
2
表面积和体积
生活区
344 m2
其他室内空间
41 m2
附属于建筑的外部空间
27 m2
外部储存空间
93 m2
体积(立方米)
1428 m3
地块大小
2684 m2
设施
Mechanische ventilatie
Alarminstallatie
Rookkanaal
Dakraam
Zonnepanelen
Natuurlijke ventilatie
Aan rustige weg
Vrij uitzicht
Beschutte ligging
In bosrijke omgeving
Baerz & Co Property Brochure

宣传册

视频

Croon Makelaars

Breelaan 41
1861 GD Bergen

info@croonmakelaars.nl
+31 (0)72 743 32 44

www.croonmakelaars.nl

信息/查看请求

Angeline Croonen profile image
Angeline Croonen
Real Estate Agent